St. Nicholas House, Front Street, Hetton, DH5

GBP 300000 For Sale

Property Details

Property Type

Land

Description

Property Details: • Type: Land • Tenure: N/A • Floor Area: N/A

Key Features: • Planning Passed For a Residential Care Facility • Located In Hetton Le Hole Close To A Wide Range Of Shops & Stores • Excellent Opportunity

Location: • Nearest Station: Seaham Station • Distance to Station: 4.6 miles

Agent Information: • Address: 5 Ashfield Terrace Chester Le Street DH3 3PD

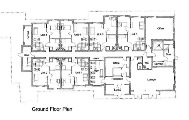
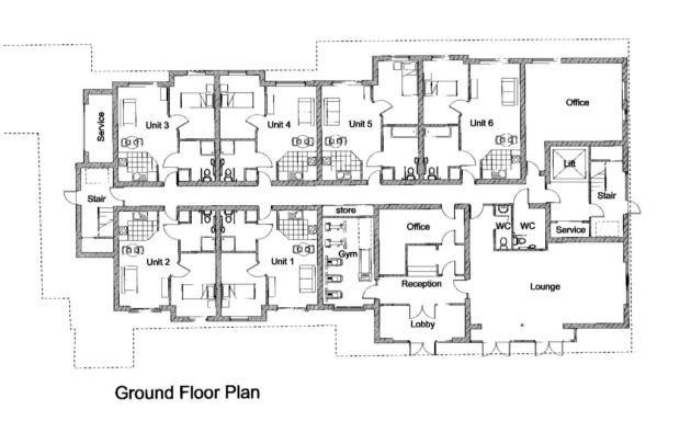
Full Description: Land for sale with planning permission already approved to construct a 30+ 1 bed apartments, to include office, reception, lobby, lounge area and gym and has outline planning consent for EMI use.. This is a unique opportunity, and will suit a variety of purchasers, from self-builders to those in the care industry. There is the option of developing the site in several other ways, subject to planning permission being approved for any application submitted. * A covenant on the land is also required to be paid *

Location

Address

St. Nicholas House, Front Street, Hetton, DH5

City

Hetton

Features and Finishes

Planning Passed For a Residential Care Facility, Located In Hetton Le Hole Close To A Wide Range Of Shops & Stores, Excellent Opportunity

Legal Notice

Our comprehensive database is populated by our meticulous research and analysis of public data. MirrorRealEstate strives for accuracy and we make every effort to verify the information. However, MirrorRealEstate is not liable for the use or misuse of the site's information. The information displayed on MirrorRealEstate.com is for reference only.

Real Estate Broker
Copeland Residential, Chester Le Street
Brokerage
Copeland Residential, Chester Le Street
Top Tags
to include office Unique opportunity self-builders care industry
Likes

0

Views

38

This website uses cookies to ensure you get the best experience. Learn more