Stanley Road, Poole

GBP 375000 For Sale

Property Details

Bedrooms

3

Bathrooms

2

Property Type

Terraced

Description

Property Details: • Type: Terraced • Tenure: N/A • Floor Area: N/A

Key Features: • Presented in excellent condition • Stones throw from Poole Quay and amenities of Poole town centre • Bright and airy accommodation • Three bedrooms • Low maintenance rear garden • Planning permission granted to extend the first floor accommodation • Stunning views of Poole Harbour • Underfloor heating in kitchen and bathroom

Location: • Nearest Station: N/A • Distance to Station: N/A

Agent Information: • Address: 24 Station Road, Swanage, BH19 1AF

Full Description: Presented in EXCELLENT order throughout this 3 bedroom terraced home is just a stones throw from Poole Quay and its varied shopping facilities, eateries and attractions.

The accommodation is BRIGHT and airy with a low maintenance rear garden and access to the rear.

The property is ideal as an investment property, main residence or second home.

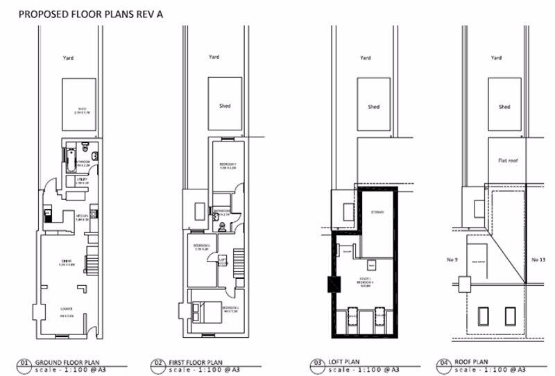
Planning permission has been granted to extend the first floor accommodation and to create a dormer window.HallwaySitting Room10' 4'' x 10' 1'' (3.15m x 3.07m)Dining Room13' 1'' x 12' 3'' (3.98m x 3.73m)Kitchen12' 6'' x 9' 6'' (3.81m x 2.89m)Utility7' 6'' x 3' 0'' (2.28m x 0.91m)Bathroom7' 6'' x 6' 11'' (2.28m x 2.11m)Bedroom 113' 1'' x 10' 4'' (3.98m x 3.15m)Bedroom 29' 6'' x 7' 5'' (2.89m x 2.26m)Bedroom 37' 2'' x 6' 9'' (2.18m x 2.06m)Shower RoomBrochuresProperty BrochureFull Details

Location

Address

Stanley Road, Poole

City

Stanley Road

Features and Finishes

Presented in excellent condition, Stones throw from Poole Quay and amenities of Poole town centre, Bright and airy accommodation, Three bedrooms, Low maintenance rear garden, Planning permission granted to extend the first floor accommodation, Stunning views of Poole Harbour, Underfloor heating in kitchen and bathroom

Legal Notice

Our comprehensive database is populated by our meticulous research and analysis of public data. MirrorRealEstate strives for accuracy and we make every effort to verify the information. However, MirrorRealEstate is not liable for the use or misuse of the site's information. The information displayed on MirrorRealEstate.com is for reference only.

Real Estate Broker
Albury & Hall, Swanage
Brokerage
Albury & Hall, Swanage
Top Tags
Likes

0

Views

93

This website uses cookies to ensure you get the best experience. Learn more