Stanmer Villas, Brighton
Property Details
Terraced
Description
Property Details: • Type: Terraced • Tenure: N/A • Floor Area: N/A
Key Features:
Location: • Nearest Station: N/A • Distance to Station: N/A
Agent Information: • Address: 132-135 Lewes Road, Brighton, BN2 3LG
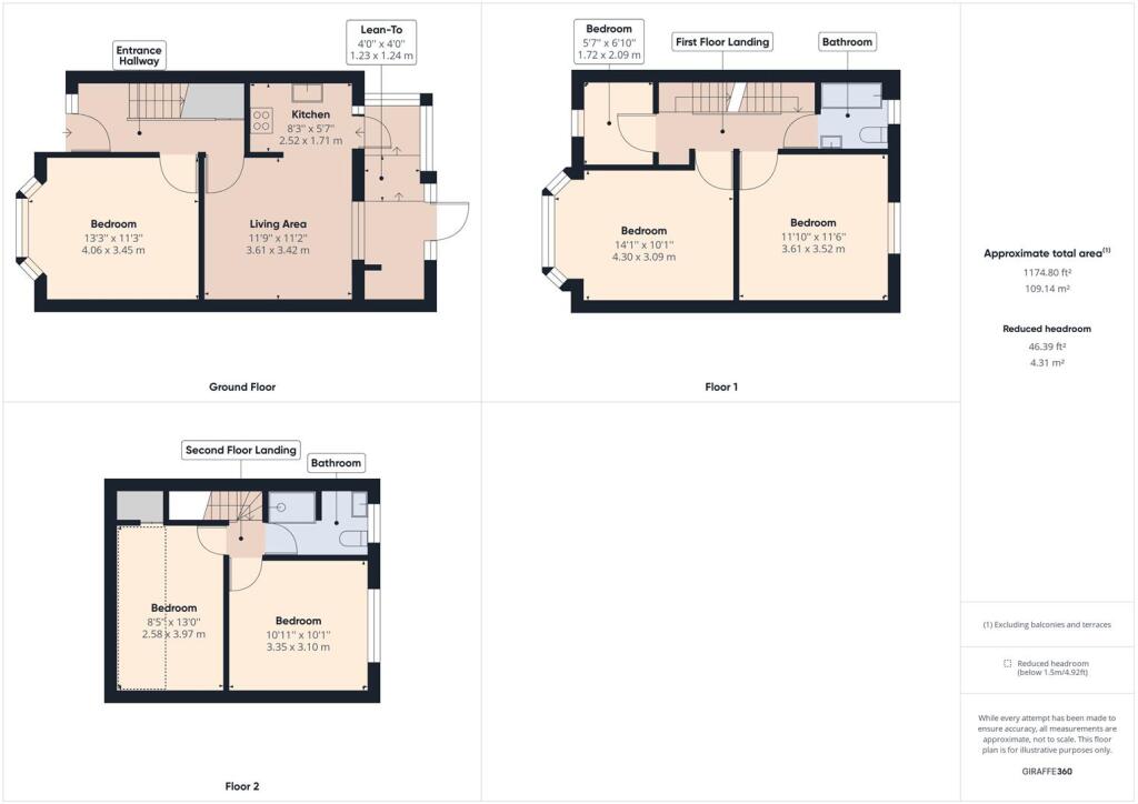
Full Description: •5 double bedroom STUDENT PROPERTY •£137 per person per week•Available 20 August 2025•Modern neutral décor•Furnished•Open plan living room and kitchen•Bathroom and separate shower room •Large garden (garden maintenance included within the rent)•Popular location•Free on street parking •Council tax band C•12-month tenancy•A holding deposit of £685 will be required to secure the Property which is equivalent to 1 weeks rent. Once referencing is complete the Holding Deposit will go towards the first month's rent•The above details are intended for information purposes only and do not constitute an offer or form part of a contract. A tenancy will be granted subject to referencing and contracts•Please note that rent is shown as per person per week based on 52 weeks of the year. The rental amount as advertised is due monthlyBrochuresStanmer Villas, Brighton
Location
Address
Stanmer Villas, Brighton
City
Brighton and Hove
Features and Finishes
None
Legal Notice
Our comprehensive database is populated by our meticulous research and analysis of public data. MirrorRealEstate strives for accuracy and we make every effort to verify the information. However, MirrorRealEstate is not liable for the use or misuse of the site's information. The information displayed on MirrorRealEstate.com is for reference only.