Station Brae, Macduff, AB44
Property Details
Land
Description
Property Details: • Type: Land • Tenure: FREEHOLD • Floor Area: 21780 sqft
Key Features:
Location: • Nearest Station: Huntly Station • Distance to Station: 18.4985191815631 miles
Agent Information: • Address: Holmlea Fyvie Turriff Aberdeenshire AB53 8JP
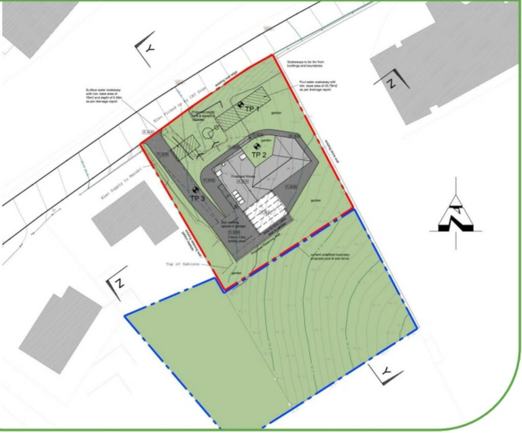
Full Description: EXCEPTIONAL PLOT SAT ON 0.5ACRES<br />FULL PLANNING PERMISSION TO BUILD A 266.25 M2 HOME!<br /><br />Low and Partners is delighted to bring to the market this exceptional plot in Macduff, offering unparalleled views across the bay towards Banff and its picturesque harbor. Boasting an expansive 0.5-acre parcel of land, this prime location is nestled between the renowned Meraki hair & beauty salon and the historic Macduff Parish Church.<br /><br />Uniquely designed by the esteemed Baxter’s Design, this plot comes with full planning permission for a distinctive two-level, three-bedroom custom-built home that harmoniously integrates with the natural landscape of the sloped terrain. Each bedroom is thoughtfully positioned to capture breathtaking sea views, while luxurious walk-in wardrobes provide ample storage space. The master bedroom features a vaulted ceiling and floor-to-ceiling glass panels that extend out to a peak, creating a seamless indoor-outdoor connection. Additionally, a two-car garage with a charming pergola area, accessible from the kitchen, enhances the property's functionality and aesthetic appeal.<br /><br />The heart of this home lies in its expansive living room and kitchen area, characterized by a soaring vaulted roof that amplifies the sense of space and grandeur. The view from the living room is superimposed into the windows With three well-appointed bathrooms, a convenient utility room, and a spacious entrance foyer, every detail has been meticulously planned to offer comfort and sophistication in equal measure. The generously proportioned rooms throughout the house ensure a luxurious living experience.<br /><br />For prospective buyers seeking a one-of-a-kind property that combines architectural distinction with breathtaking surroundings, this site is incomparable. <br /><br />Full planning permission details are readily accessible on the Aberdeenshire Council website under the reference number APP/2023/1831, reflecting the meticulous planning and approval process that has gone into crafting this truly exceptional residence. <br /><br /> <br /><br />Don't miss the opportunity to own an extraordinary plot with unparalleled views and endless possibilities.<br /><br />Location<br />Macduff is a charming seaside town located on the Moray Firth, close to where the River Deveron meets the sea. The town features various local shops, library services, and top-notch educational and recreational amenities, such as golf courses in Macduff and nearby Banff, just over a mile away. Additionally, Macduff boasts a harbor and a marine aquarium. Aberdeen is around 45 miles away from Macduff.<br /><br />DISCLAIMER<br />These particulars do not constitute any part of an offer or contract. All statements contained therein, while believed to be correct, are not guaranteed. All measurements are approximate. Intending purchasers must satisfy themselves by inspection or otherwise, as to the accuracy of each of the statements contained in these particulars.
Location
Address
Station Brae, Macduff, AB44
City
Macduff
Features and Finishes
None
Legal Notice
Our comprehensive database is populated by our meticulous research and analysis of public data. MirrorRealEstate strives for accuracy and we make every effort to verify the information. However, MirrorRealEstate is not liable for the use or misuse of the site's information. The information displayed on MirrorRealEstate.com is for reference only.