Station Road , Castle Cary , BA7

GBP 295000 For Sale

Property Details

Bedrooms

3

Bathrooms

1

Property Type

Terraced

Description

Property Details: • Type: Terraced • Tenure: Freehold • Floor Area: N/A

Key Features:

Location: • Nearest Station: N/A • Distance to Station: N/A

Agent Information: • Address: Regent House Fore Street, Castle Cary, BA7 7BG

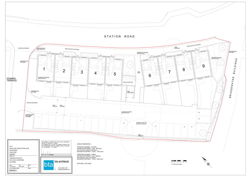
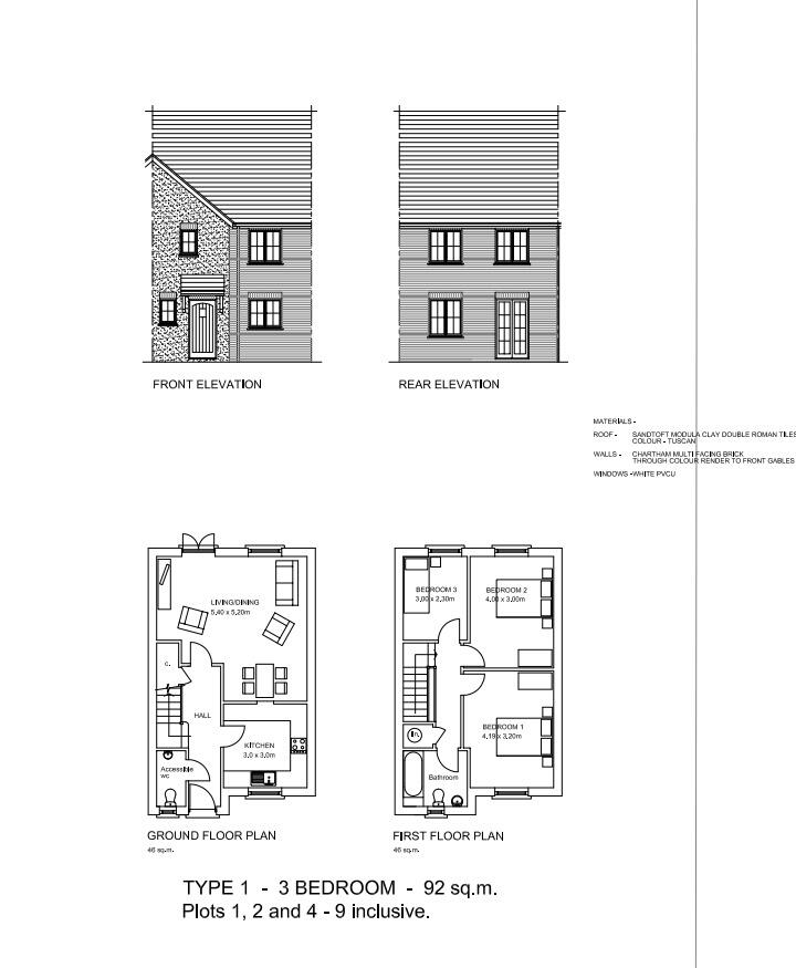
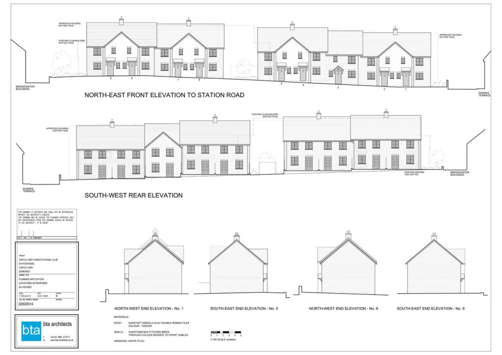
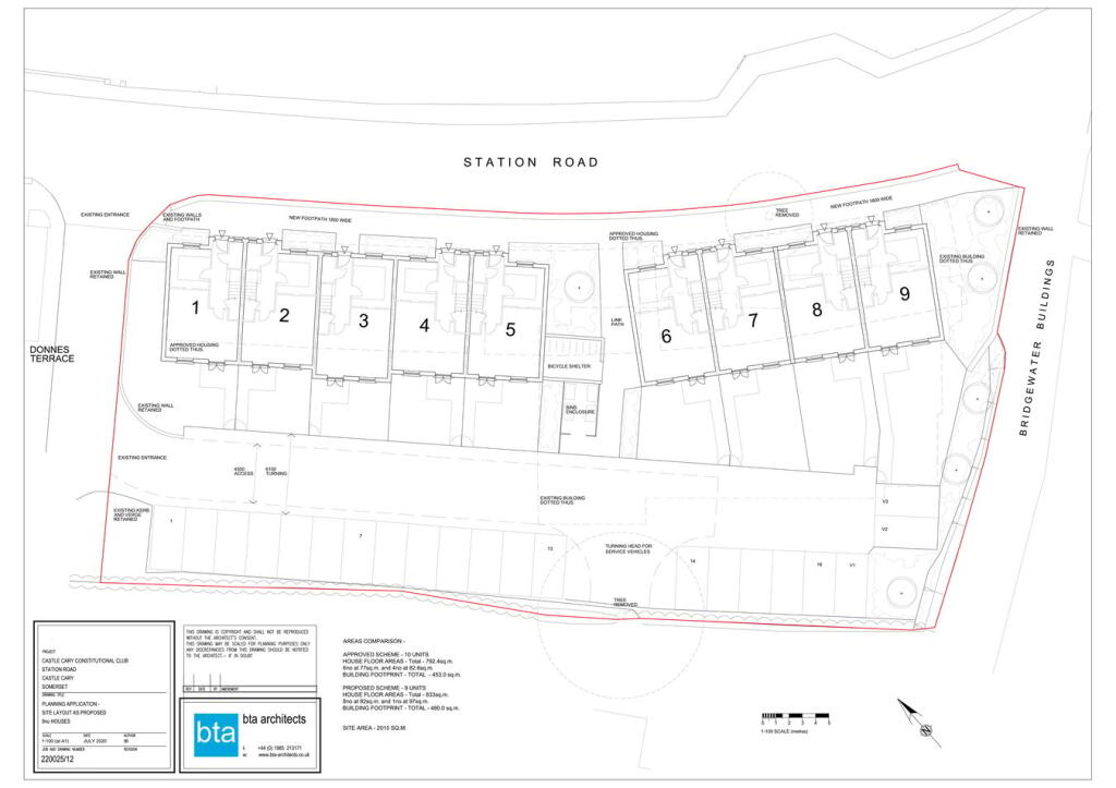
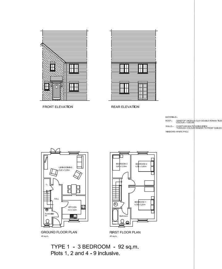
Full Description: We are proud to announce a stunning new-build development in what used to be the Constitutional Club in Castle Cary. The site is being marketed off plan, with completion for the build estimated to be early autumn. The site will feature nine, three bedroom properties all with rear gardens, allocated parking and coming with a full 10 Year NHBC warranty.Description We are proud to announce a stunning new-build development in what used to be the Constitutional Club in Castle Cary. The site is being marketed off plan, with completion for the build estimated to be early autumn 2025. This plot is a three-bedroom mid-terrace home, situated on Station Road near the heart of town. With thoughtfully designed interiors, modern energy-efficient features being targeted and a high-quality finish throughout, this home presents a fantastic opportunity for first-time buyers, young professionals, and families alike. All plots have three spacious bedrooms. Each bedroom in this mid-terrace home is designed to maximise both space and natural light that is on offer, helping to create a welcoming and comfortable home. The master bedroom, located on the first floor, is generously sized with enough space for built-in wardrobes or additional furnishings, while the two additional bedrooms will be well-suited for family use, a guest room, or a home office....Location Station Road offers the best of both worlds: an established residential area with all the convenience of being close to town amenities. You can enjoy easy access to local shops, cafes, hairdressers all within a short walk, and a nearby train station making it ideal for commuting or weekend trips to London.Tenure FreeholdEPC Targeted EPC Ratings For All Plots Are "A".Council Tax Band B

Location

Address

Station Road , Castle Cary , BA7

Legal Notice

Our comprehensive database is populated by our meticulous research and analysis of public data. MirrorRealEstate strives for accuracy and we make every effort to verify the information. However, MirrorRealEstate is not liable for the use or misuse of the site's information. The information displayed on MirrorRealEstate.com is for reference only.

Real Estate Broker
Cooper & Tanner, Castle Cary
Brokerage
Cooper & Tanner, Castle Cary
Likes

0

Views

10

This website uses cookies to ensure you get the best experience. Learn more