Station Road, Castle Cary, BA7

GBP 325000 For Sale

Property Details

Property Type

End of Terrace

Description

Property Details: • Type: End of Terrace • Tenure: N/A • Floor Area: N/A

Key Features: • Three Bedroom End Of Terrace Home • Two Allocated Parking Spaces • Rear Garden • Brand New NHBC Warranty Upon Completed Build • No Onward Chain • Walking Distance From The Town Centre • Local To Castle Cary Train Station • Visitor parking • Choice Of Flooring Available To Those Who Reserve At No Additional Cost • Reserve Your Plot For £1,000

Location: • Nearest Station: N/A • Distance to Station: N/A

Agent Information: • Address: Regent House Fore Street, Castle Cary, BA7 7BG

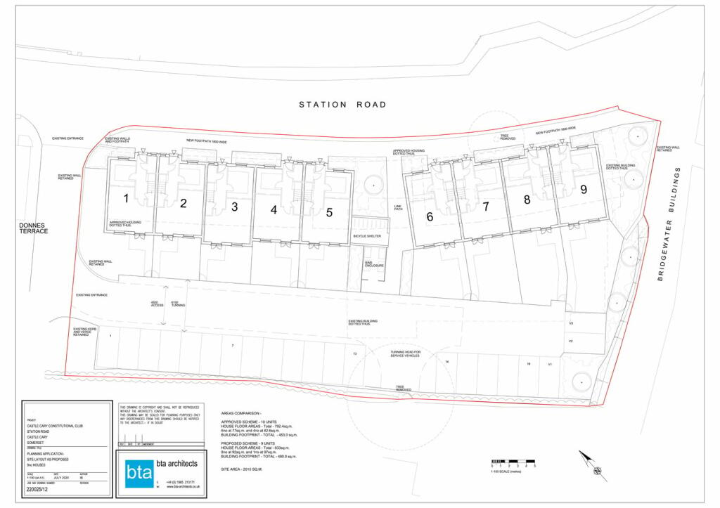
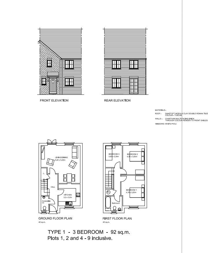
Full Description: We are proud to announce a new-build development in what used to be the Constitutional Club in Castle Cary. The site is being marketed off plan, with completion for the build estimated to be April/May 2025.This plot is a three-bedroom end-terrace home, situated on Station Road near the heart of town. With thoughtfully designed interiors, modern energy-efficient features being targeted and a high-quality finish throughout, this home presents a fantastic opportunity for first-time buyers, young professionals, and families alike. All plots have three spacious bedrooms. Each bedroom in this mid-terrace home is designed to maximise both space and natural light that is on offer, helping to create a welcoming and comfortable home. The master bedroom, located on the first floor, is generously sized with enough space for built-in wardrobes or additional furnishings, while the two additional bedrooms will be well-suited for family use, a guest room, or a home office.The ground floor will feature a stylish open-plan living space, the dining and living room will be perfect for entertaining guests or spending cosy evenings with family. Prospective purchase flooring is available to be selected once reserved and will be present upon completion of your desired plot. Each plot will also feature energy-efficient lighting and double glazed windows to help achieve a targeted EPC rating of A.Adjacent to the living room with be a contemporary kitchen, the kitchen will be fully fitted with sleek, modern cabinetry with integrated appliances and possess ample storage and counter space to ensure a functional and organised layout.Throughout the property, it will have gas-based central heating with thermostatic control to suit your lifestyle. Coupled with good quality insulation, this heating system supports both comfort and energy savings.This property will have a private and enclosed rear garden which is a rare find in a mid-terrace home this close to the town centre and perfect for those seeking outdoor space without the maintenance demands of larger plots. The garden will be spacious enough to be ideal for summer barbecues, a play area for children. New turf and patio area provide an ideal setup for outdoor furniture and the space can be personalised with planters or additional landscaping features.Further beyond the rear garden there will be both allocated and guest parking: This home includes an allocated parking space for two vehicles, conveniently located for easy access. In addition, there is designated guest parking, a thoughtful inclusion for friends and family visits.Location Station Road offers the best of both worlds: an established residential area with all the convenience of being close to town amenities. You can enjoy easy access to local shops, cafes, hairdressers all within a short walk, and a nearby train station making it ideal for commuting or weekend trips to London.Tenure FreeholdEPCTargeted EPC rating of "A"Council Tax Band BBrochuresBrochure 1Brochure 2Brochure 3

Location

Address

Station Road, Castle Cary, BA7

Features and Finishes

Three Bedroom End Of Terrace Home, Two Allocated Parking Spaces, Rear Garden, Brand New NHBC Warranty Upon Completed Build, No Onward Chain, Walking Distance From The Town Centre, Local To Castle Cary Train Station, Visitor parking, Choice Of Flooring Available To Those Who Reserve At No Additional Cost, Reserve Your Plot For £1,000

Legal Notice

Our comprehensive database is populated by our meticulous research and analysis of public data. MirrorRealEstate strives for accuracy and we make every effort to verify the information. However, MirrorRealEstate is not liable for the use or misuse of the site's information. The information displayed on MirrorRealEstate.com is for reference only.

Real Estate Broker
Cooper & Tanner, Castle Cary
Brokerage
Cooper & Tanner, Castle Cary
Top Tags
Rear Garden No Onward Chain
Likes

0

Views

14

This website uses cookies to ensure you get the best experience. Learn more