Station Road Maldon
Property Details
Land
Description
Property Details: • Type: Land • Tenure: N/A • Floor Area: N/A
Key Features:
Location: • Nearest Station: Hatfield Peverel Station • Distance to Station: 5.0 miles
Agent Information: • Address: 51 Newland Street, Witham, CM8 2BD
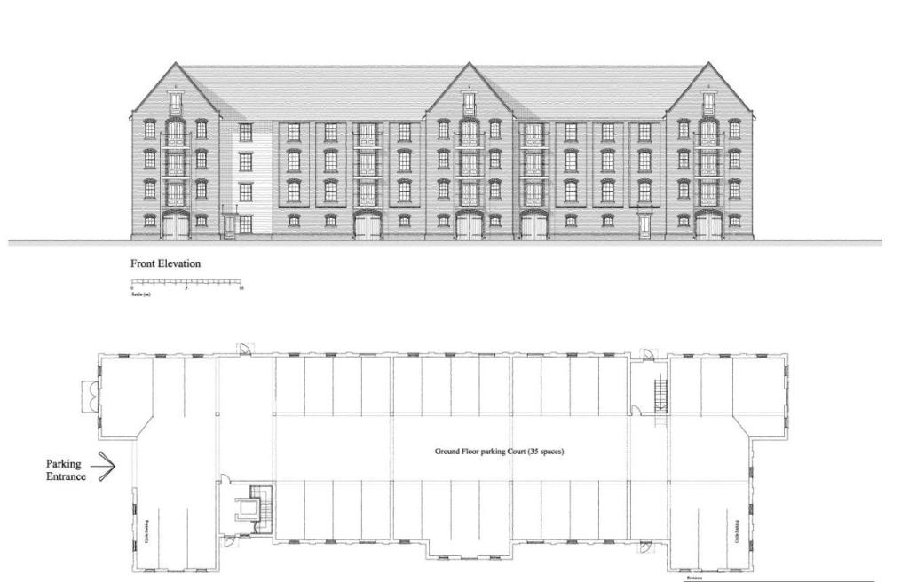
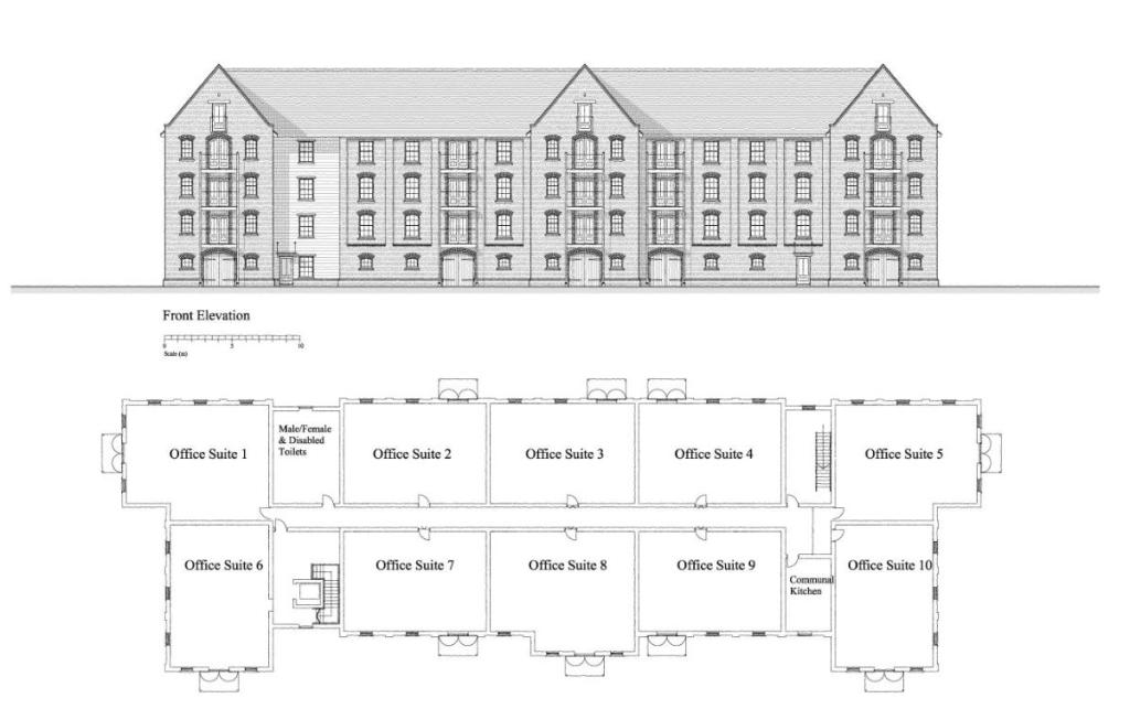
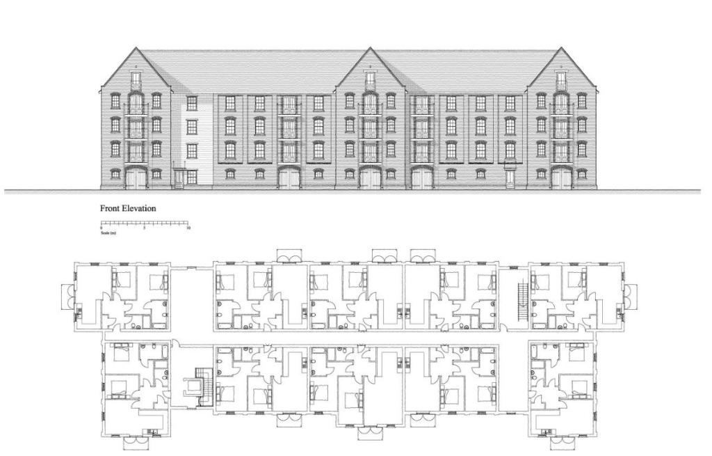
Full Description: We are extremely pleased to offer for sale this rare opportunity to purchase a plot of land located within Maldon. We understand from the seller that permission has been granted for 20 two bedroom two bathroom apartments and 10 offices suites. We believe this represents a fantastic investment opportunity as building plots are very rare to the local housing market.
Location
Address
Station Road Maldon
City
None
Features and Finishes
None
Legal Notice
Our comprehensive database is populated by our meticulous research and analysis of public data. MirrorRealEstate strives for accuracy and we make every effort to verify the information. However, MirrorRealEstate is not liable for the use or misuse of the site's information. The information displayed on MirrorRealEstate.com is for reference only.