Station Road, New Milton, BH25 6HR
Property Details
Land
Description
Property Details: • Type: Land • Tenure: N/A • Floor Area: N/A
Key Features:
Location: • Nearest Station: N/A • Distance to Station: N/A
Agent Information: • Address: 302 Lymington Road, Highcliffe, Christchurch, BH23 5ET
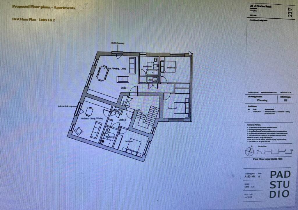
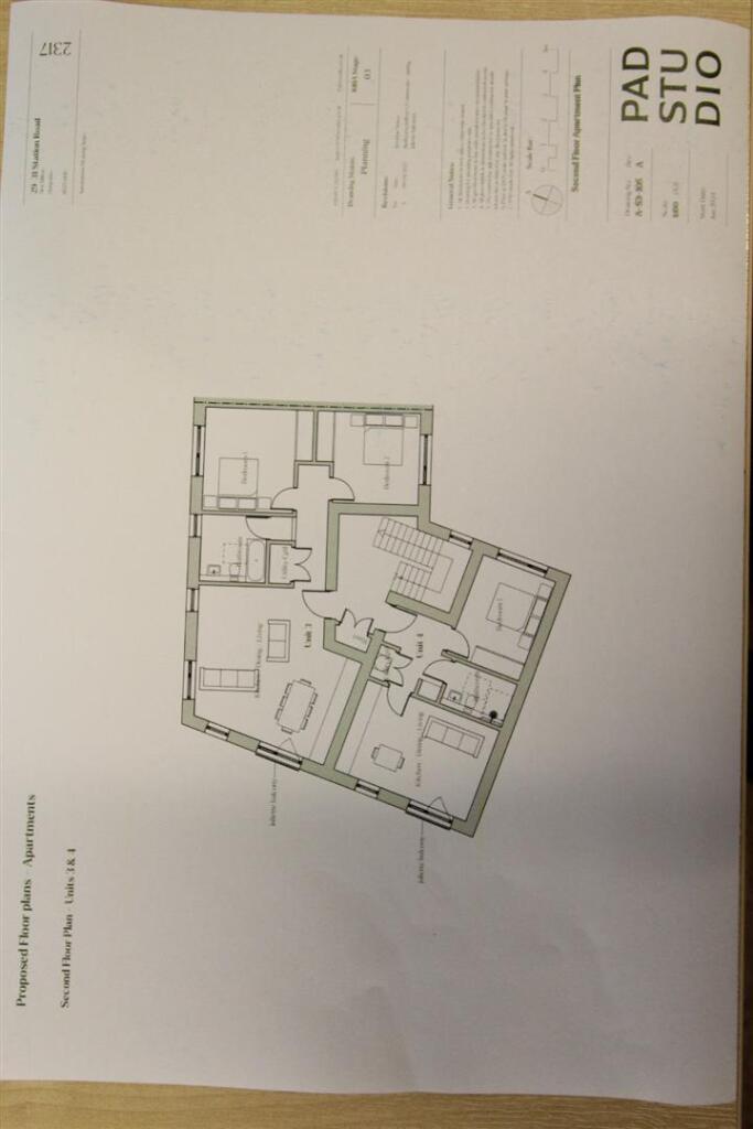
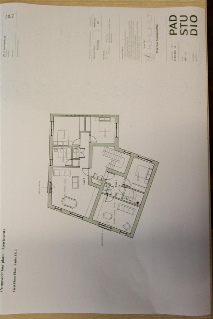
Full Description: A rare opportunity to purchase a Freehold Development site, for sale by way of Informal Tender. Tenders to be submitted by Friday 27th July 2025, to the offices of Hunters of Highcliffe, by 12.00 Noon in a sealed envelope, marked, Station Road Site.The site currently comprises of no 29/31 Station Road, New Milton, along with 1&2 Oxford House Yard, Osbourn Road, New Milton, Hampshire. The site will be sold with the benefit of planning Permission granted for One Class Commercial (Office/Retail) Unit on the ground floor, fronting Station Road, along with four one and two bedroom apartments above, with separate access from Station Road, along with three, three story Luxury Mews Houses to the rear, with access from Osbourne Road, with associated Landscaping works. Full plans may be inspected at the offices of Hunters in Highcliffe or can be inspected on the New Forest District Council’s planning portal.*******************************Location The site is located in the heart of New Milton, to the Northen end of the bustling Station Road, close to New Milton’s Main Line Railway Station and all amenities, along with excellent Schools, leisure facilities and within easy access to the beautiful 92 thousand acres of open New Forest, with its pretty Hamlets and Villages.**********************************To request a tender form please contact Hunters Highcliffe- 302 Lymington Road, Highcliffe, BH235ET or email Sophie. Vendors have expressed that offers will be considered prior to the tender date.BrochuresStation Road, New Milton, BH25 6HRNFDC planning application
Location
Address
Station Road, New Milton, BH25 6HR
City
New Milton
Features and Finishes
None
Legal Notice
Our comprehensive database is populated by our meticulous research and analysis of public data. MirrorRealEstate strives for accuracy and we make every effort to verify the information. However, MirrorRealEstate is not liable for the use or misuse of the site's information. The information displayed on MirrorRealEstate.com is for reference only.