Station Road, St. Margarets-At-Cliffe, CT15

GBP 750000 For Sale

Property Details

Bedrooms

4

Bathrooms

3

Property Type

Detached

Description

Property Details: • Type: Detached • Tenure: N/A • Floor Area: N/A

Key Features: • Four Bedrooms • Detached House • Downstairs WC • Open Pan Kitchen/Dining Room • Utility Room • Master Bedroom With A Walk In Dressing Room • Contemporary En-Suite • Luxuriously Appointed Family Bathroom • Parking For Multiple Cars • Front & Rear Garden

Location: • Nearest Station: N/A • Distance to Station: N/A

Agent Information: • Address: 60 Castle Street, Dover, CT16 1PJ

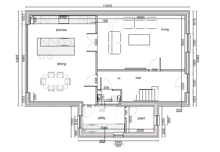
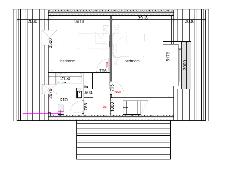
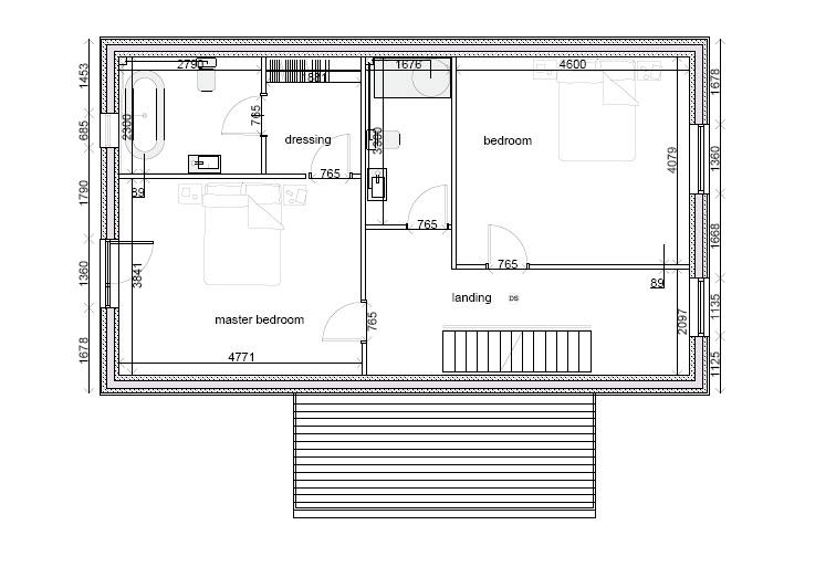
Full Description: Stunning newly built four bedroom, three bathroom detached house in sought after St Margaret's Bay. This stand out property is packed with modern technology and energy efficient features. To the right of the spacious hallway is a great-sized living room, which is perfect for relaxing during the day or evening, with access straight through into the contemporary kitchen/dining room, along with a downstairs WC under the stairs. At the end of the hallway is a fabulous open plan kitchen/dining room, perfect for hosting, with a set of bi folding doors for plenty of natural light and for access the attractively landscaped garden. The kitchen is by far the heart of this floor with its top of the range appliances and modern finish. The centre piece of the room is a stunning island that's positioned perfectly within the space, along with seating for five on one side. There is also a utility room and downstairs plant room tucked away to the side of the ground floor, with access from the Kitching/dining room.Onto the first floor, you will find the master bedroom with a walk in dressing room, contemporary En-Suite with immaculate finishes and great views from the bedroom. Further to the first floor, there is three piece shower room and spacious double bedroom with views out the front of the property.On the second floor you are welcomed with a landing area with fitted storage space, along with two double bedrooms and a luxuriously appointed family bathroom.The rear garden is laid to lawn, a lovely patio finish, which wraps round the property affording access to the front, where there is more attractive planting, and a drive for multiple cars.St Margaret's Bay is situated between Deal and Dover in an area of Outstanding Natural Beauty. There is good access to the Channel ports, Canterbury, the Channel Tunnel Terminal and the motorway network. Martin Mill station, which is 3 miles distant, provides frequent London services including hi-speed services to St Pancras. The village itself has a thriving community with an excellent village shop, post office, library and several gastro pubs and cafes as well as a number of clubs and societies.

Location

Address

Station Road, St. Margarets-At-Cliffe, CT15

Features and Finishes

Four Bedrooms, Detached House, Downstairs WC, Open Pan Kitchen/Dining Room, Utility Room, Master Bedroom With A Walk In Dressing Room, Contemporary En-Suite, Luxuriously Appointed Family Bathroom, Parking For Multiple Cars, Front & Rear Garden

Legal Notice

Our comprehensive database is populated by our meticulous research and analysis of public data. MirrorRealEstate strives for accuracy and we make every effort to verify the information. However, MirrorRealEstate is not liable for the use or misuse of the site's information. The information displayed on MirrorRealEstate.com is for reference only.

Real Estate Broker
Thomas & Partners, Dover
Brokerage
Thomas & Partners, Dover
Top Tags
Likes

0

Views

47

This website uses cookies to ensure you get the best experience. Learn more