Steading at 88 Main Street, Aberchirder, Huntly, Aberdeenshire AB54 7TD
Property Details
3
1
Plot
Description
Property Details: • Type: Plot • Tenure: FREEHOLD • Floor Area: N/A
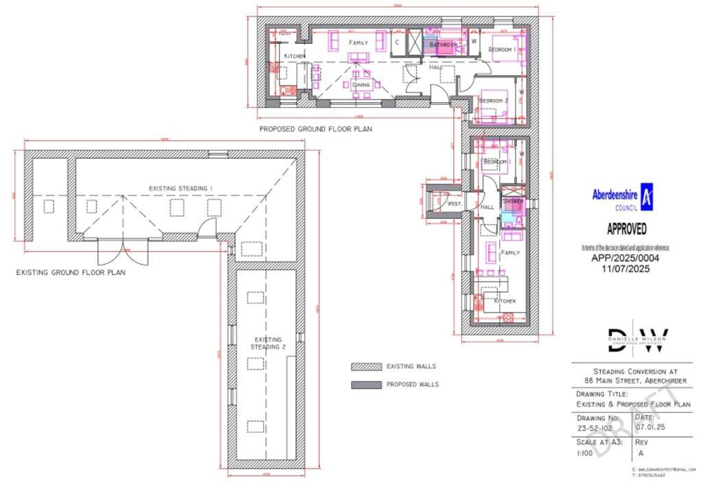
Key Features: • Fantastic Steading with Full Planning Permission • Large Garden • Situated in a Lovely, Quiet Rural Village
Location: • Nearest Station: Huntly Station • Distance to Station: 9.812504884245273 miles
Agent Information: • Address: Willow House, Kestrel View, Strathclyde Business Park Bellshill ML4 3PB
Full Description: <p>Holly Burton of REMAX Evolution is pleased to present this fantastic L-shaped steading with full planning permission for change of use and alterations to form two homes. Planning could potentially be adapted for conversion into one home if preferred. This attractive building has recently had a new roof with skylights, and with a large garden and services available nearby - the property offers a wonderful opportunity to create a stunning development. </p><p>Application Reference: APP/2025/0004</p><p><strong>What3Words Location; </strong>///necklaces.alone.bombshell</p><p>Location;<br />Aberchirder is a pleasant village surrounded by beautiful countryside. The village has amenities including a shop, chemist, pub restaurant and takeaways. A wider variety of shops can be found in the nearby towns of Turriff (approx 8 miles) and Huntly (approx 12 miles). Primary schooling is provided within the village with secondary at Banff Academy. The coast is located 9 miles away. The property is within commuting distance to Elgin (approx 30 miles) and Aberdeen (approx 40 miles).</p><br />EPC Rating: D
Location
Address
Steading at 88 Main Street, Aberchirder, Huntly, Aberdeenshire AB54 7TD
City
Huntly
Features and Finishes
Fantastic Steading with Full Planning Permission, Large Garden, Situated in a Lovely, Quiet Rural Village
Legal Notice
Our comprehensive database is populated by our meticulous research and analysis of public data. MirrorRealEstate strives for accuracy and we make every effort to verify the information. However, MirrorRealEstate is not liable for the use or misuse of the site's information. The information displayed on MirrorRealEstate.com is for reference only.