Steading at 88 Main Street, Aberchirder, Huntly, Aberdeenshire AB54 7TD
Property Details
3
1
Plot
Description
Property Details: • Type: Plot • Tenure: N/A • Floor Area: N/A
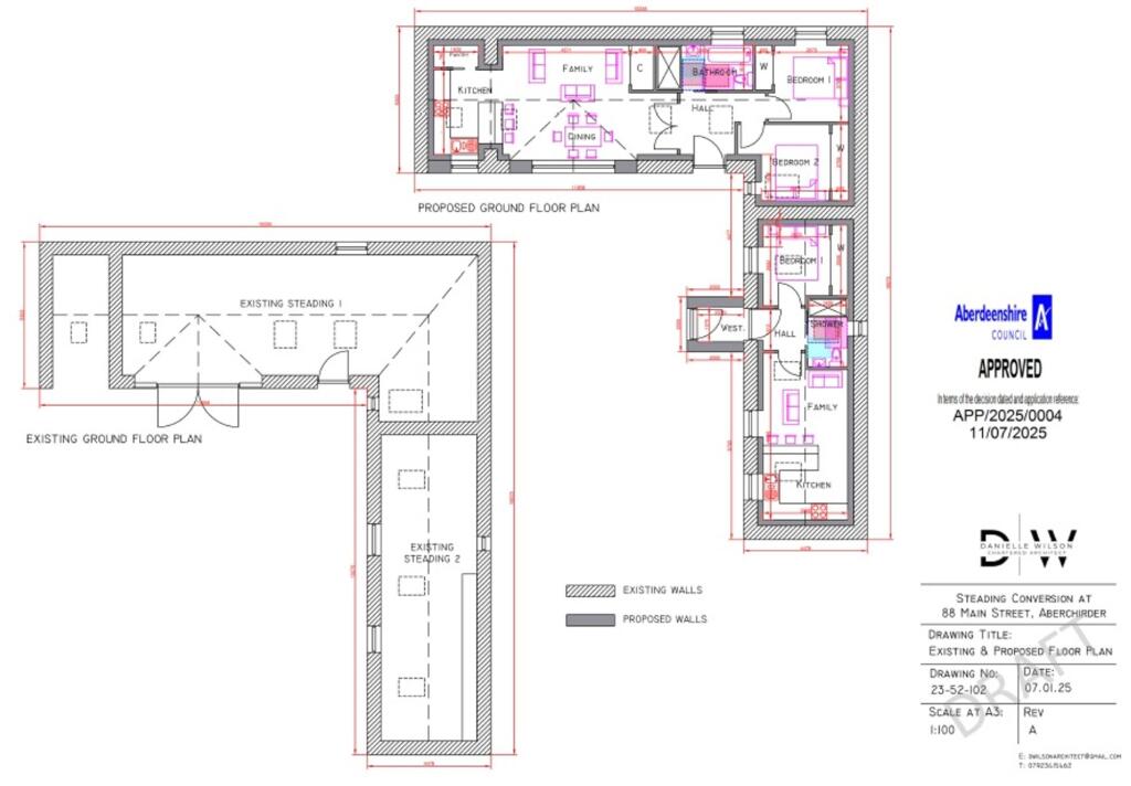
Key Features: • Fantastic Steading with Full Planning Permission • Large Garden • Situated in a Lovely, Quiet Rural Village
Location: • Nearest Station: N/A • Distance to Station: N/A
Agent Information: • Address: Willow House, Kestrel View, Strathclyde Business Park Bellshill ML4 3PB
Full Description: Holly Burton of REMAX Evolution is pleased to present this fantastic L-shaped steading with full planning permission for change of use and alterations to form two homes. Planning could potentially be adapted for conversion into one home if preferred. This attractive building has recently had a new roof with skylights, and with a large garden and services available nearby - the property offers a wonderful opportunity to create a stunning development. Application Reference: APP/2025/0004What3Words Location; ///necklaces.alone.bombshellLocation;Aberchirder is a pleasant village surrounded by beautiful countryside. The village has amenities including a shop, chemist, pub restaurant and takeaways. A wider variety of shops can be found in the nearby towns of Turriff (approx 8 miles) and Huntly (approx 12 miles). Primary schooling is provided within the village with secondary at Banff Academy. The coast is located 9 miles away. The property is within commuting distance to Elgin (approx 30 miles) and Aberdeen (approx 40 miles).EPC Rating: DSteading - internalThis fantastic L-shaped steading is currently divided into two. Full planning permission is in place to convert into two properties (one 1 bed, one 2 bed) but easily has potential to convert into one dwelling (subject to planning). The roof has recently been replaced, with the addition of Velux windows. Services are available nearby.GardenThere is an excellent large garden, enclosed by a wall and offering huge potential for landscaping into a beautiful garden with potential driveway. There is also further space within the yard to create more garden area.
Location
Address
Steading at 88 Main Street, Aberchirder, Huntly, Aberdeenshire AB54 7TD
City
Aberdeenshire
Features and Finishes
Fantastic Steading with Full Planning Permission, Large Garden, Situated in a Lovely, Quiet Rural Village
Legal Notice
Our comprehensive database is populated by our meticulous research and analysis of public data. MirrorRealEstate strives for accuracy and we make every effort to verify the information. However, MirrorRealEstate is not liable for the use or misuse of the site's information. The information displayed on MirrorRealEstate.com is for reference only.