Stebbing Road, Felsted, Essex, CM6

GBP 995000 For Sale

Property Details

Bedrooms

4

Bathrooms

2

Property Type

House

Description

Property Details: • Type: House • Tenure: N/A • Floor Area: N/A

Key Features: • Sought After Village Location • Approximately Two Acre Plot • Far Reaching Countryside Views • Equestrian Facilities • Planning Permission For Detached Annexe • Council Tax Band D • EPC Rating E

Location: • Nearest Station: N/A • Distance to Station: N/A

Agent Information: • Address: Barclay House, 1-3 High Street, Dunmow, CM6 1UU

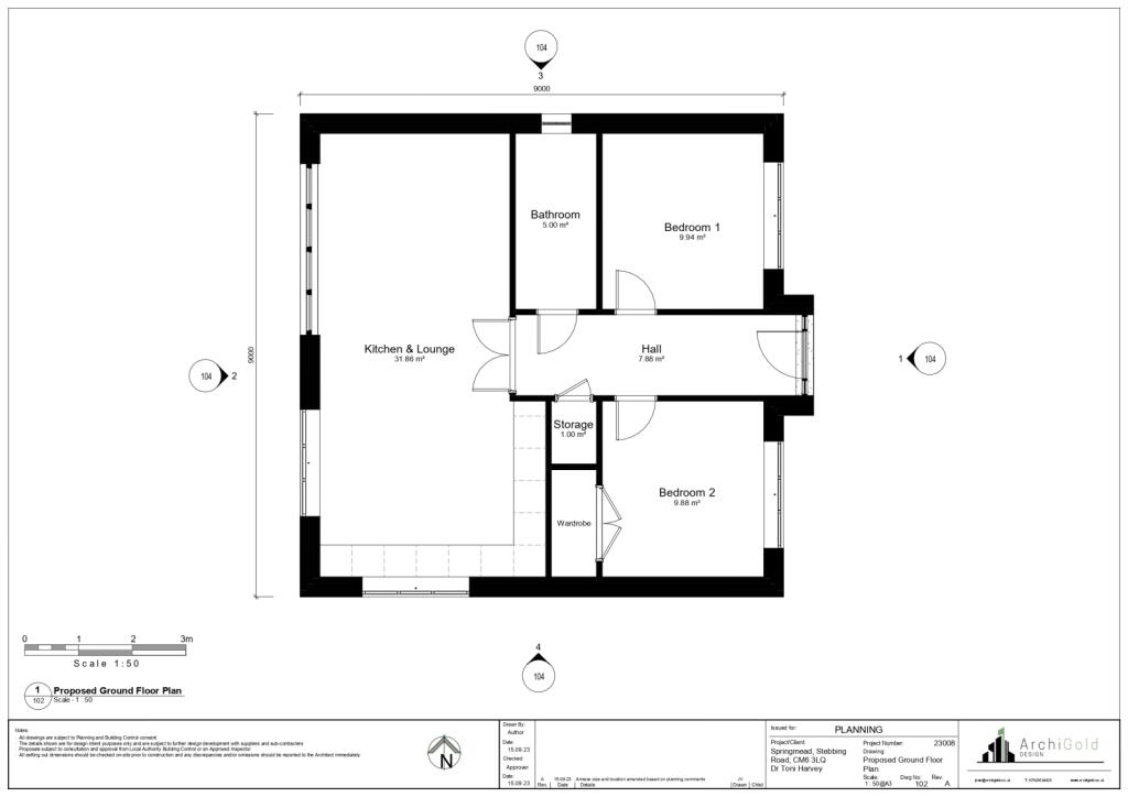
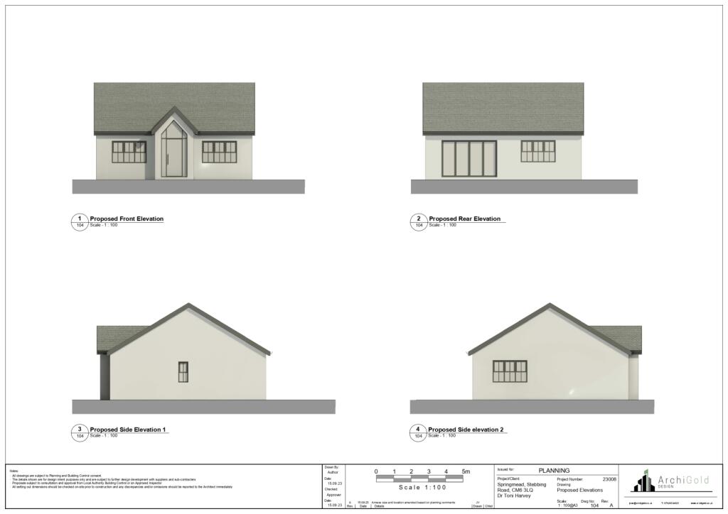
Full Description: Springmead is a well-established and extended family home set on approximately two acres (subject to survey), enclosed by post and rail fencing. The Westerly-facing gardens and land are elevated, offering stunning, expansive views over the surrounding farmland. The property has planning approval for a detached annexe, featuring a single-storey design with an open-plan kitchen/living room, two bedrooms, and a bathroom, covering an area of around 875 sq/ft (Planning Ref: UTT/23/2759/HFF).Additional outbuildings on the plot present further development opportunities, subject to planning consent. One outbuilding is timber-built with a pitched roof and skylight. The property also includes a post and rail fenced paddock, a stable yard with three loose boxes, an attached barn, and an electrical supply.The main residence has been thoughtfully extended and reconfigured. The ground floor boasts a contemporary kitchen/diner that opens into a spacious living room with dual bi-folding doors that lead to the rear gardens and a large deck perfect for entertaining. Additional ground floor features include a utility room and a shower room. The first floor offers four bedrooms and a generous four-piece family bathroom suite.Stebbing Road in Felsted is a charming location nestled in the Essex countryside. Known for its picturesque surroundings, this area offers a peaceful rural setting while still being close to essential amenities. Felsted is renowned for its historic buildings, local shops, and excellent schools, including the prestigious Felsted School. Stebbing Road provides easy access to nearby towns such as Great Dunmow and Braintree, offering a range of shopping, dining, and recreational options. The area benefits from good transport links, with the A120 and M11 nearby, making it convenient for commuting to London, Stansted Airport, and other regional destinations.Overall, Stebbing Road in Felsted is an attractive location that combines the serenity of countryside living with the convenience of nearby urban amenities.Council Tax Band D. EPC Rating E. IMPORTANT NOTE TO POTENTIAL PURCHASERS & TENANTS: We endeavour to make our particulars accurate and reliable, however, they do not constitute or form part of an offer or any contract and none is to be relied upon as statements of representation or fact. The services, systems and appliances listed in this specification have not been tested by us and no guarantee as to their operating ability or efficiency is given. All photographs and measurements have been taken as a guide only and are not precise. Floor plans where included are not to scale and accuracy is not guaranteed. If you require clarification or further information on any points, please contact us, especially if you are travelling some distance to view. POTENTIAL PURCHASERS: Fixtures and fittings other than those mentioned are to be agreed with the seller. POTENTIAL TENANTS: All properties are available for a minimum of six months, with the exception of short term accommodation. A security deposit of at least one month’s rent is required. Rent is to be paid one month in advance. It is the tenant’s responsibility to insure any personal possessions.BUYERS INFORMATIONTo conform with government Money Laundering Regulations 2019, we are required to confirm the identity of all prospective buyers. We use the services of a third party, Lifetime Legal, who will contact you directly at an agreed time to do this. They will need the full name, date of birth and current address of all buyers. There is a nominal charge of £60 plus VAT for this (for the transaction not per person), payable direct to Lifetime Legal. Please note, we are unable to issue a memorandum of sale until the checks are complete.REFERRAL FEESWe may refer you to recommended providers of ancillary services such as Conveyancing, Financial Services, Insurance and Surveying. We may receive a commission payment fee or other benefit (known as a referral fee) for recommending their services. You are not under any obligation to use the services of the recommended provider. The ancillary service provider may be an associated company of Intercounty.' IGD210150/5BrochuresWeb DetailsFull Brochure PDF

Location

Address

Stebbing Road, Felsted, Essex, CM6

City

Felsted

Features and Finishes

Sought After Village Location, Approximately Two Acre Plot, Far Reaching Countryside Views, Equestrian Facilities, Planning Permission For Detached Annexe, Council Tax Band D, EPC Rating E

Legal Notice

Our comprehensive database is populated by our meticulous research and analysis of public data. MirrorRealEstate strives for accuracy and we make every effort to verify the information. However, MirrorRealEstate is not liable for the use or misuse of the site's information. The information displayed on MirrorRealEstate.com is for reference only.

Real Estate Broker
Intercounty, Great Dunmow
Brokerage
Intercounty, Great Dunmow
Top Tags
Likes

0

Views

48

This website uses cookies to ensure you get the best experience. Learn more