Stone House, Midford Lane, Limpley Stoke, Bath, Somerset, BA2

GBP 1575000 For Sale

Property Details

Bedrooms

5

Bathrooms

3

Property Type

Detached

Description

Property Details: • Type: Detached • Tenure: Freehold • Floor Area: N/A

Key Features: • 5 bedrooms • 2 reception rooms • 3 bathrooms • Detached • New Build • Private Parking • Home office • Vehicle electric charging points

Location: • Nearest Station: N/A • Distance to Station: N/A

Agent Information: • Address: 4 Wood Street Bath BA1 2JQ

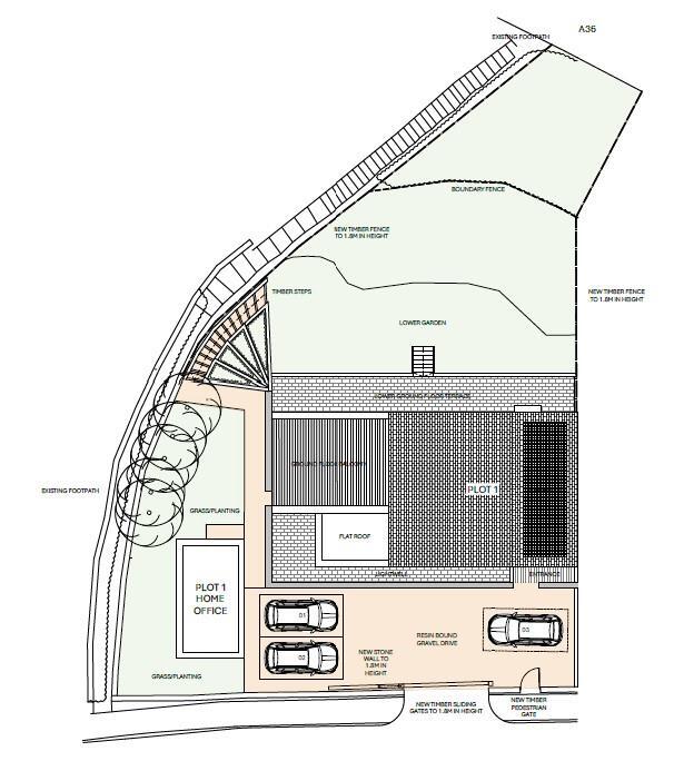
Full Description: Stone House is an exceptional new home in a private, gated setting on the southern edge of Bath. One of just two individually designed houses, it offers generous living space, superb energy efficiency, and stunning views across the Winsley and Freshford valley.The house includes five double bedrooms, three bathrooms (plus a cloakroom), and a striking open-plan kitchen/dining/living room with direct access to a large roof terrace. There's also a separate utility room and a fully fitted home office in the garden.Interior finishes are of the highest quality, including a handmade Shaker & May kitchen, Miele appliances, quartz worktops, Mandarin Stone tiling, and British-made sanitaryware. The master en-suite features marble tiles and brushed brass finishes, while the remaining bathrooms are finished in brushed steel.Designed with sustainability in mind, Stone House includes underfloor heating, an air source heat pump, solar PV panels with battery storage, EV charging point, and a pressurised hot water system.Outside, the landscaped garden includes patios, soft planting, lawn area, and wildflower verges. Parking is provided for three cars on a Cotswold gravel driveway.NB IMAGES ARE ALL CGIStone House, 18 Midford Lane is located in the sought-after village of Limpley Stoke, a designated area of outstanding natural beauty at the foot of the Cotswolds, to the south of Bath.The village of Freshford is only a few minutes' walk, with a great community run shop and cafe, in addition to a good pub. Nearby are the highly regarded Hartley Farm Shop & Kitchen and Farleigh Road Farm Shop; whilst Bradford on Avon and Bath have a wealth of shops, restaurants and activities. The iconic Bath Two Tunnels circuit is nearby, providing a fantastic 13 mile walking and cycling link between Central Bath, Midford, Monkton Combe and beyond.There are very good primary schools in Freshford and Winsley. Bath provides an excellent select ion of both state and private schools to include Monkton Combe, Prior Park, King Edwards and Beechen Cliff.Bradford-on-Avon 4 miles, Bath 4.5 miles, Frome 10 miles, M4 (J17) 19 miles (all distances are approximate).BrochuresMore DetailsBrochure, DPS, Stone

Location

Address

Stone House, Midford Lane, Limpley Stoke, Bath, Somerset, BA2

Features and Finishes

5 bedrooms, 2 reception rooms, 3 bathrooms, Detached, New Build, Private Parking, Home office, Vehicle electric charging points

Legal Notice

Our comprehensive database is populated by our meticulous research and analysis of public data. MirrorRealEstate strives for accuracy and we make every effort to verify the information. However, MirrorRealEstate is not liable for the use or misuse of the site's information. The information displayed on MirrorRealEstate.com is for reference only.

Real Estate Broker
Knight Frank, Bath
Brokerage
Knight Frank, Bath
Top Tags
Private Parking New Build Detached Home office
Likes

0

Views

32

This website uses cookies to ensure you get the best experience. Learn more