Stourbridge Road, Bromsgrove, Worcestershire, B61

GBP 90000 For Sale

Property Details

Bedrooms

2

Property Type

Plot

Description

Property Details: • Type: Plot • Tenure: N/A • Floor Area: N/A

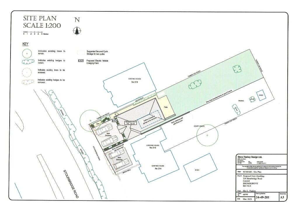
Key Features: • BUILDING PLOT IN AN ESTABLISHED AREA • PLANNING PERMISSION GRANTED FOR THE ERECTION OF A TWO BEDROOM DETACHED BUNGALOW • LOVELY LONG GARDEN TO THE REAR • SEE ATTACHED PLANS • FULL DETAILS OF PLANNING PERMISSION CAN BE VIEWED UNDER APPLICATION 25/00668/TDC

Location: • Nearest Station: N/A • Distance to Station: N/A

Agent Information: • Address: 6 New Road, Bromsgrove, B60 2JD

Full Description: BUILDING PLOT WITH PLANNING PERMISSION GRANTED FOR A TWO BEDROOM DETACHED BUNGALOW ADJACENT TO 316 STOURBRIDGE ROAD CATSHILL BROMSGROVE B61 9LH.

Full details can be viewed on Bromsgrove District Council planning portal under Application number 25/00668/TDC.

The bungalow would have;

PARKING TO FRONT FOR TWO VEHICLES CANOPY PORCH RECEPTION HALL OPEN PLAN KITCHEN / LIVING / DINING AREA MASTER BEDROOM WITH EN-SUITE FAMILY BATHROOM LONG GARDEN TO THE REAR

NOTE; The sale of the plot cannot be legal completed until the property has been registered at H M Land Registry (application currently in for first registration of both 316 Stourbridge Road & this plot).

316 Stourbridge Road is also being marketed separately by our agency.

Consumer Protection from Unfair Trading Regulations 2008. The agents have not tested any apparatus, equipment, fixture, fitting or appliances and therefore cannot verify that they are in working order or fit for their purpose. The Purchaser's solicitors/surveyors should obtain verification. All measurements, text, plans, site areas, service charges, lease details and photographs are presented in good faith as a general guide and therefore should not be relied upon as statements or representations of fact and should not constitute part of an offer or contract. Items shown in the photographs are not necessarily included in the sale of the property. All measurements contained in these sale particulars should be assumed to be approximate and should be checked by the purchasers if of particular importance to them. Whilst we try to make our sale particulars as accurate as possible they may be subject to errors and/or omissions and therefore prospective purchasers must satisfy themselves by inspection or otherwise as to their correctness. If there are any queries of particular importance to prospective purchasers please contact us and we will be pleased to check the information. Buyers must check the availability of any property & make an appointment to view before embarking on any journey to see a property.

Location

Address

Stourbridge Road, Bromsgrove, Worcestershire, B61

City

Worcestershire

Features and Finishes

BUILDING PLOT IN AN ESTABLISHED AREA, PLANNING PERMISSION GRANTED FOR THE ERECTION OF A TWO BEDROOM DETACHED BUNGALOW, LOVELY LONG GARDEN TO THE REAR, SEE ATTACHED PLANS, FULL DETAILS OF PLANNING PERMISSION CAN BE VIEWED UNDER APPLICATION 25/00668/TDC

Legal Notice

Our comprehensive database is populated by our meticulous research and analysis of public data. MirrorRealEstate strives for accuracy and we make every effort to verify the information. However, MirrorRealEstate is not liable for the use or misuse of the site's information. The information displayed on MirrorRealEstate.com is for reference only.

Real Estate Broker
Hansons, Bromsgrove
Brokerage
Hansons, Bromsgrove
Top Tags
Likes

0

Views

36

This website uses cookies to ensure you get the best experience. Learn more