Studio Flat, Aulton Place, SE11, N1 7GU
Property Details
1
1
Flat
Description
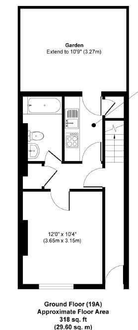
Quiet pedestrianised streetGround floor of a terraced houseSmall GardenWooden floorsFitted wardrobeNO AGENTS PLEASE.Studio flat on the ground floor of a period terraced house. Best for a single person. One studio room. Fitted wardrobe. There is a separate fitted kitchen with washing machine. Good sized bathroom. Patio garden to the rear. Really wonderful location.Rent INCLUDES Central Heating. Hot water and electricity in addition. Pedestrianised street. 7 minutes walk to Kennington Tube Station. Very convenient for City or West End. Local shops within a few minutes walk.Council tax is Lambeth band A.NB: Photographs were taken mostly when the flat was empty.
--- Property Details --- Type: Flat Bedrooms: 1 Bathrooms: 1 Rent: £1,495 per month Deposit: £1,725 Furnished: Unfurnished EPC Rating: C Available From: 15 April, 2026 Minimum Tenancy: 12 Months Bills Included: Broadband View Offers Postcode: N1 7GU Listed By: OpenRent Landlord
Location
Address
Studio Flat, Aulton Place, SE11, N1 7GU
City
N1 7GU
Features and Finishes
Unfurnished, EPC: C, Available: 15 April, 2026, Min tenancy: 12 Months, Bills: Broadband View Offers
Legal Notice
Our comprehensive database is populated by our meticulous research and analysis of public data. MirrorRealEstate strives for accuracy and we make every effort to verify the information. However, MirrorRealEstate is not liable for the use or misuse of the site's information. The information displayed on MirrorRealEstate.com is for reference only.