Suffolk Place, Porthcawl, Bridgend County. CF36 3EB

GBP 250000 For Sale

Property Details

Property Type

Land

Description

Property Details: • Type: Land • Tenure: N/A • Floor Area: N/A

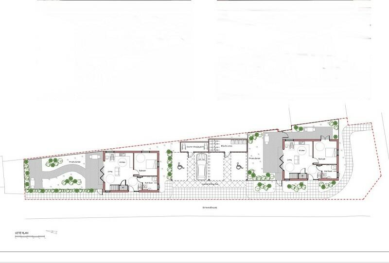
Key Features: • Freehold building land to the rear of Suffolk Place and Fenton Place • Full planning permission for 2 dormer bungalows for occupation by persons needing assisted living • 'A' rated energy efficiency, solar energy panels and electric heat pumps • Approximately 4 miles from the M4 at Junction 37 • Highly convenient for Town centre amenities and public transport links • Approximately 1/4 from Porthcawl seafront • Full planning permission and supporting documents are available for viewing • Bridgend County Borough Council under planning number P/22/232/FUL

Location: • Nearest Station: Pyle Station • Distance to Station: 3.1 miles

Agent Information: • Address: 16 Dunraven Place, Bridgend, CF31 1JD

Full Description: FREEHOLD BUILDING PLOT WITH FULL PLANNING PERMISSION FOR 2 DETACHED DORMER BUNGALOWS FOR OCCUPATION BY PERSONS NEEDING ASSISTED LIVING AND/ OR FULL TIME PERMANENT HEALTH CARE.

Situated on a flat plot at the rear of Suffolk Place and Fenton Place. Approximately 1/4 from Porthcawl seafront and highly convenient for Town centre amenities and public transport links. Approximately 4 miles from the M4 at Junction 37. The properties are 'A' rated for energy consumption and are designed to include the benefit of solar energy and electric heat pumps.

Full planning permission and supporting documents are available for viewing on Bridgend County Borough Council under planning number P/22/232/FUL.Energy Performance CertificatesEPC Graph

Location

Address

Suffolk Place, Porthcawl, Bridgend County. CF36 3EB

City

Porthcawl

Features and Finishes

Freehold building land to the rear of Suffolk Place and Fenton Place, Full planning permission for 2 dormer bungalows for occupation by persons needing assisted living, 'A' rated energy efficiency, solar energy panels and electric heat pumps, Approximately 4 miles from the M4 at Junction 37, Highly convenient for Town centre amenities and public transport links, Approximately 1/4 from Porthcawl seafront, Full planning permission and supporting documents are available for viewing, Bridgend County Borough Council under planning number P/22/232/FUL

Legal Notice

Our comprehensive database is populated by our meticulous research and analysis of public data. MirrorRealEstate strives for accuracy and we make every effort to verify the information. However, MirrorRealEstate is not liable for the use or misuse of the site's information. The information displayed on MirrorRealEstate.com is for reference only.

Real Estate Broker
Peter Morgan, Bridgend
Brokerage
Peter Morgan, Bridgend
Top Tags
Likes

0

Views

90

This website uses cookies to ensure you get the best experience. Learn more