Sutton Street , ,

GBP 867 For Rent

Property Details

Property Type

House

Description

Property Details: • Type: House • Tenure: N/A • Floor Area: N/A

Key Features:

Location: • Nearest Station: N/A • Distance to Station: N/A

Agent Information: • Address: 85 New Elvet, Durham, DH1 3AQ

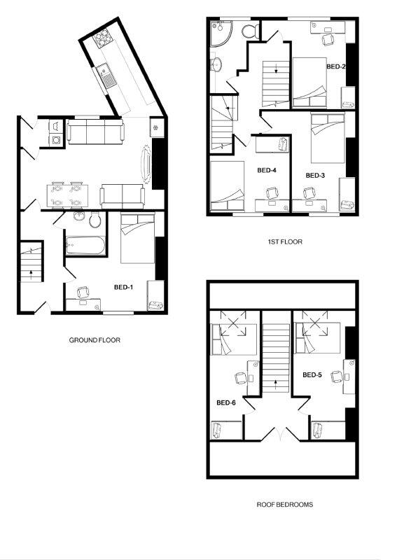
Full Description: This lovely 6 bed student house is in the heart of the popular Viaduct area, close to both the University campus and the city centre. Each of the 6 bedrooms has a double bed and a desk with a chair and the spacious living room also has a dining area. There is broadband WiFi, apple TV on the flat screen television in the lounge and three bathrooms. An 18 minute bus ride will take you to Durham University, meanwhile a 5 minute walk will take you to Durham Station, perfect if you and your mates want to catch the train to Newcastle (it’s only 15 minutes!). Sainsbury’s (5 minutes) and Tesco (9 minutes) are easily accessible so you’ll never go hungry. Speaking of hungry, ever gotten tired of waiting over half an hour for a pizza, with Domino’s on your doorstep, you can just collect it!Once you cross the Framwellgate Bridge in 7 minutes, you’ll find yourself at Durham’s popular shopping distract where you can grab a bite to eat at a Bella Italia, Zizzi, Bill’s or have a cheeky Nando’s, because we all love a Nandos. Head out to Loveshack in just 9 minutes and enjoy one of Durham’s most popular nights out.BrochuresProperty Brochure

Location

Address

Sutton Street , ,

City

Dudley

Legal Notice

Our comprehensive database is populated by our meticulous research and analysis of public data. MirrorRealEstate strives for accuracy and we make every effort to verify the information. However, MirrorRealEstate is not liable for the use or misuse of the site's information. The information displayed on MirrorRealEstate.com is for reference only.

Real Estate Broker
loc8me, Durham
Brokerage
loc8me, Durham
Top Tags
Likes

0

Views

86

This website uses cookies to ensure you get the best experience. Learn more