T02/147 Beach Street, Port Melbourne VIC 3207
Property Details
2
2
Apartment / Unit / Flat
Description
Property Details: • Type: Apartment / Unit / Flat
• Bedrooms: 2 • Bathrooms: 2
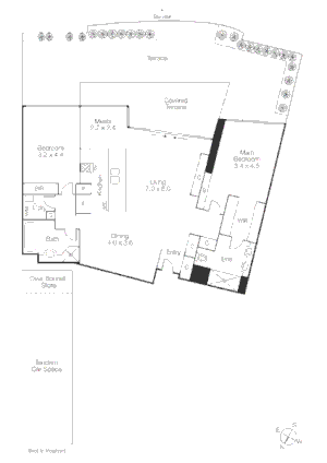
Description: Luxury at its very best with gorgeous bay views and wonderful spacious entertaining. Comprises 2 large bedrooms both with built in robes, main with ensuite and 2nd central bathroom with bath, fabulous water views from all main rooms, open plan living/dining leading to large terrace, fully-appointed kitchen with stainless steel appliances including dishwasher, gas cook top, integrated fridge, stone bench tops, and separate laundry. Extra features include floor to ceiling windows, ducted heating/cooling, video intercom & security swipe access, secure undercover parking for 2 cars + storage, resort style heated outdoor pool, well-manicured gardens and resident building manager. Opposite Port Melbourne's best maintained beach, walk the waterfront promenade to Station Pier, 109 city light rail & restaurants. Contact: Miranda Hughes - 0420 976 972
Location
Address
T02/147 Beach Street, Port Melbourne VIC 3207
City
Port Melbourne
Legal Notice
Our comprehensive database is populated by our meticulous research and analysis of public data. MirrorRealEstate strives for accuracy and we make every effort to verify the information. However, MirrorRealEstate is not liable for the use or misuse of the site's information. The information displayed on MirrorRealEstate.com is for reference only.