Tamatsukuri, Tamayu-cho, Matsue City, Shimane Prefecture
Property Details
House
Description
Construction Year: 1991
Prefecture: shimane
Views: 48
Likes: 2
First Seen: Fri, 15 Nov 2024 01:00:35 GMT
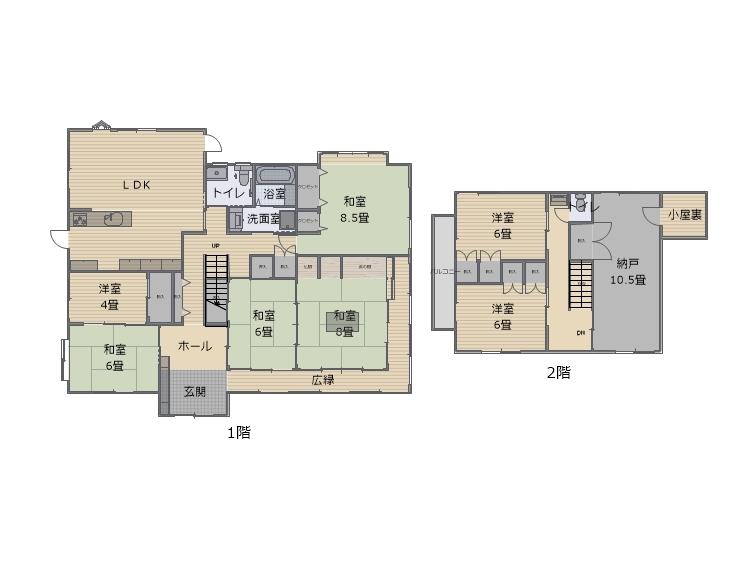
Building Area: 219.78 m²
Land Area: 810.17 m²
Property Type: House
Station: Tamatsukuri Onsen
Station Distance: 2332m
Parking: Available
[Preview available! ! ] ■Tamayu Gakuen 32 minutes walk ■Supermarket A Coop Tamayu 33 minutes walk ■7SLDK Multiple parking spaces available
Person in charge: Yamazaki, Parking lot: Car space
This 31-year-old, 7-bedroom, 2-story wooden house is a 31-minute walk from Tamatsukuri Station on the JR Sanin Main Line and a 33-minute walk from the A Coop Supermarket. The house has a large lot and can accommodate multiple cars.
Nestled in the heart of Tamatsukuri, Tamayu-cho, Matsue City, Shimane Prefecture, this property offers a tranquil retreat surrounded by natural beauty. Immerse yourself in the charm of this historic town, renowned for its picturesque streets and traditional architecture. Explore the nearby Tamatsukuri Onsen, a renowned hot spring destination, and soak in the rejuvenating waters. Discover the rich cultural heritage of the area at the Matsue Castle, a magnificent feudal fortress, and the Adachi Museum of Art, showcasing stunning Japanese gardens.
Location
Address
Tamatsukuri, Tamayu-cho, Matsue City, Shimane Prefecture
City
shimane
Legal Notice
Our comprehensive database is populated by our meticulous research and analysis of public data. MirrorRealEstate strives for accuracy and we make every effort to verify the information. However, MirrorRealEstate is not liable for the use or misuse of the site's information. The information displayed on MirrorRealEstate.com is for reference only.