Ten Mile Bank, Littleport, Ely, Cambridgeshire, CB6
Property Details
Detached
Description
Property Details: • Type: Detached • Tenure: N/A • Floor Area: N/A
Key Features:
Location: • Nearest Station: N/A • Distance to Station: N/A
Agent Information: • Address: 16/18 Market Place, Ely, CB7 4NT
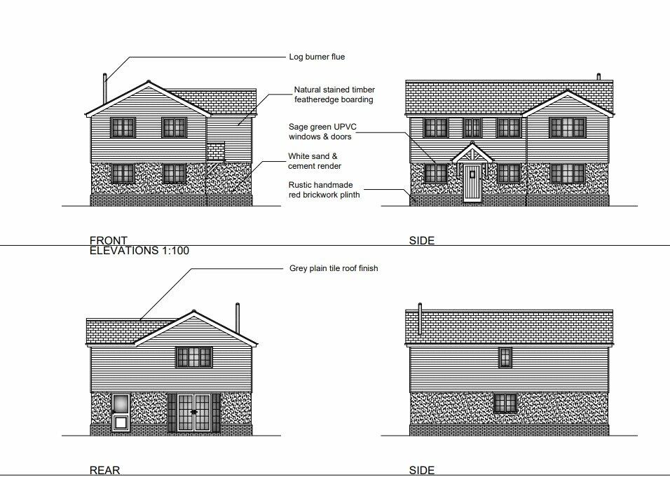
Full Description: Offered is this parcel with current existing derelict dwelling to front which will be removed and make way for an impressive family home with plenty of space andattractive surroundings. You will also benefit with purchasing this a well-built 'workers home' which has open planned living and plenty of space to live while you build out the unit.Planning details can be found on East Cambridge Planning and searching:20/00384/FULSituated with fields to rear, this non-estate parcel is ideal for someone looking to be out of the envelope of the town and still be within striking distance of the links and amenities. Viewing of current structures available but purely by appointment only.Please call the office to arrange your 1:1 site visit.
Location
Address
Ten Mile Bank, Littleport, Ely, Cambridgeshire, CB6
City
Littleport
Features and Finishes
None
Legal Notice
Our comprehensive database is populated by our meticulous research and analysis of public data. MirrorRealEstate strives for accuracy and we make every effort to verify the information. However, MirrorRealEstate is not liable for the use or misuse of the site's information. The information displayed on MirrorRealEstate.com is for reference only.