The Barn at Oldford with full planning, Oldford, Frome, BA11
Property Details
Plot
Description
Property Details: • Type: Plot • Tenure: FREEHOLD • Floor Area: N/A
Key Features: • Barn conversion • Four bedroom link-detached new build • Rural location • Outskirts of popular town of Frome • Full Planning • Reference number 2025/2138/FUL
Location: • Nearest Station: Frome Station • Distance to Station: 1.5873156111603952 miles
Agent Information: • Address: 6 The Bridge, Frome, BA11 1AR
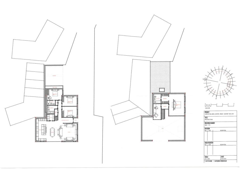
Full Description: <p>Description - The Barn at Oldford benefits from prior approval under Q class permitted development, Barn Conversion to a four bed detached dwelling.</p><p>Access to the site is off the B3090 via a shared drive. The site currently comprises the main agricultural barn and hardstand area. The site also benefits from an area of grassland which equates to approximately 5.4 acres.</p><p>The site has been cleared of all agricultural machinery and any associated materials. The potential purchaser will need to be aware that any alterations outside of those permitted under the Class Q approval will require additional planning consent.</p><p>The Development Potential Guide Price is approximately between £950,000 and £1,000,000.</p><p>Parties must satisfy themselves in respect of potential scheme end values.</p><p>This is an ideal opportunity for a buyer to purchase and create a unique development of excellent quality.</p><p>Planning - Further details regarding the planning consent can be found via the Somerset (Mendip) Council online Planning Portal using reference 2023/1854/PAA. Interested parties must satisfy their own planning investigations. All planning information can be found online.</p><p>Agents Note: The parcel of land adjoining the road not included within the red line boundary on page 1 of the sales details has now been submitted for planning for three dwellings please see planning reference number 2024/0497/PIP.</p><p>Location - Oldford is situated on the outskirts of the popular town of Frome. Frome is a historic market town with many notable buildings and features the highest number of listed buildings in Somerset. Frome offers a range of shopping facilities, a sports centre, several cafés, a choice of pubs, local junior, middle and senior schools, several theatres and a cinema. Private schools are to be found in Wells, Bath, Warminster, Cranmore, Beckington, Glastonbury and Street. Bath and Bristol are within commuting distance, and the local railway station connects at Westbury for London, Paddington.</p><p>Plot Description - A link-detached two storey barn for conversion with proposed accommodation comprising large open plan kitchen and living area on the ground floor open to the eaves and with full height glazed doors providing a super naturally lit space. In addition, there is a utility room, family bathroom and three bedrooms, one with en suite facilities. First floor is home to a large master bedroom with dressing room and en-suite along with an office. A double car port is situated on the side of the building.</p><p>Services - Prospective purchasers must satisfy themselves as to the location and capacity of any services.</p><p>Method of Sale - Private Treaty.</p><p>Viewings - Strictly by prior appointment with Cooper and Tanner.</p><p>Tel. . Please note this is a former barn and suitable precautions and care should be taken during viewings.</p><p>development-property</p><p></p>
Location
Address
The Barn at Oldford with full planning, Oldford, Frome, BA11
City
Frome
Features and Finishes
Barn conversion, Four bedroom link-detached new build, Rural location, Outskirts of popular town of Frome, Full Planning, Reference number 2025/2138/FUL
Legal Notice
Our comprehensive database is populated by our meticulous research and analysis of public data. MirrorRealEstate strives for accuracy and we make every effort to verify the information. However, MirrorRealEstate is not liable for the use or misuse of the site's information. The information displayed on MirrorRealEstate.com is for reference only.