The Brow, Friston, Eastbourne, East Sussex, BN20
Property Details
4
4
Detached
Description
Property Details: • Type: Detached • Tenure: Freehold • Floor Area: N/A
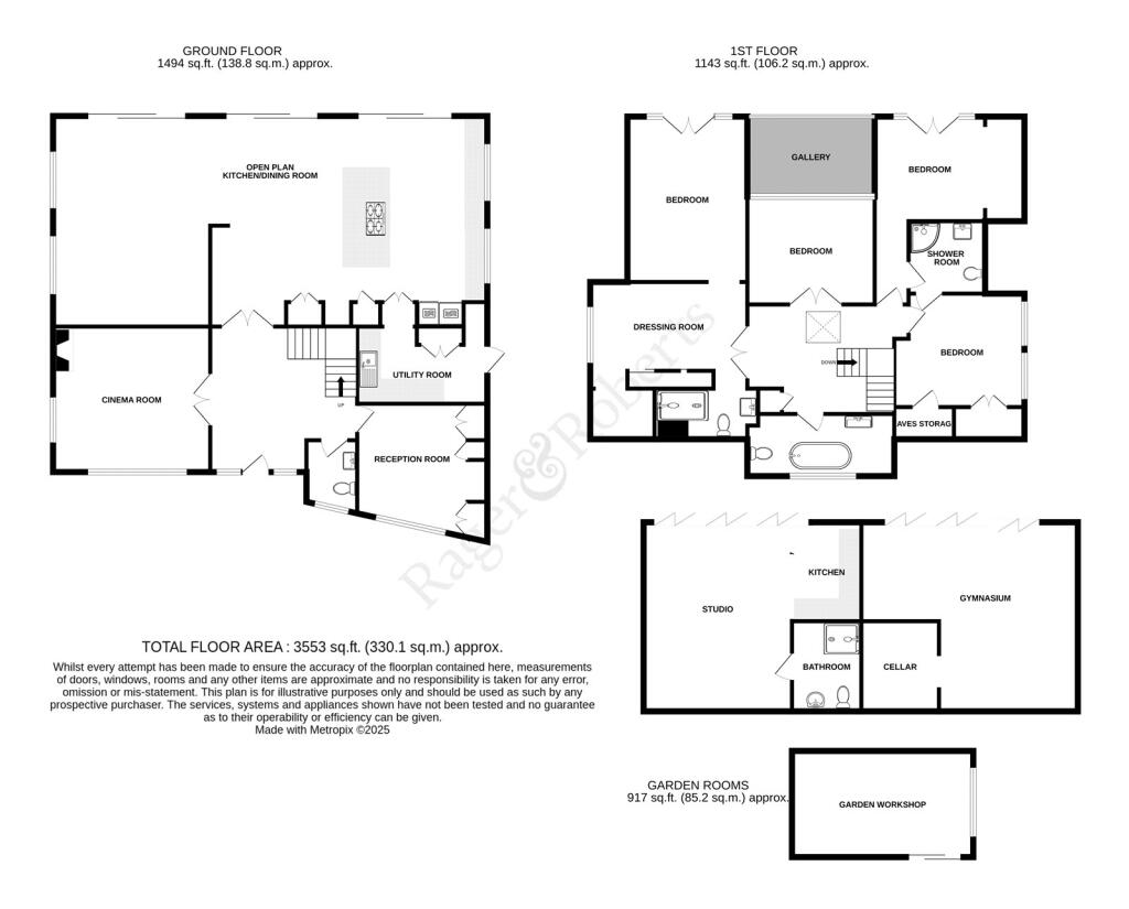
Key Features: • spacious reception hall • sitting room open plan with magnificent kitchen/dining room | separate utility room • cinema room & third reception room/study • 4 bedrooms including master bedroom with dressing room & ensuite shower room • luxurious family bathroom/wc | jack & jill shower room for bedrooms 2 & 3 • multi zone gas fired central heating • garden level gym and separate studio with kitchenette and shower room • southerly rear garden commanding glorious southerly views • newly constructed carport and wide private entrance drive with EV charger
Location: • Nearest Station: N/A • Distance to Station: N/A
Agent Information: • Address: 36 Cornfield Road, Eastbourne, BN21 4QH
Full Description: Affording glorious views from an exclusive Friston location - An outstanding detached house of luxurious contemporary design The property has been extended and extensively refurbished by the current owners and now affords a magnificent 27' kitchen/dining room with vaulted ceiling and glorious downland views. The property is being sold in its present stage of improvement which is nearing completion and offers a unique opportunity for a very stylish and versatile family home in a special location. Only an inspection will convey the quality of the improvements made and potential of this very special home.Within a lovely downland and location Friston and the adjacent picturesque village of East Dean afford local amenities including 2 parish churches, local shopping facilities and the village life of East Dean with its village green and ancient Tiger Inn. The sea is only a few miles distant at Birling Gap and Eastbourne is about 4 miles with its range of private and state schools, newly constructed shopping complex, theatres and seafront. Trains are from Eastbourne or Polegate to London Victoria and to Gatwick. Friston sits within miles of scenic downland countryside of the South Downs National Park.-The property is approached by its wide Private Entrance Drive. Front door toSpacious Reception Hallwith under stairs storage recess, timber flooring, large radiator.Cloakroomwith low level wc, wash basin with cupboards below, window.Sitting Room5.94m x 4.72m (19' 6" x 15' 6")and affording wonderful downland views, range of built in storage cabinets, under floor heating, sliding glazed door to the Large Southerly Terrace which measures 40' in width and secures breathtaking views.Cinema Room4.57m x 4.42m (15' 0" x 14' 6")with concealed ceiling lighting, radiator.Third Reception Room4.1m x 3.8m (13' 5" x 12' 6")including the depth of the range of built in wardrobe cupboards, radiator.Magnificent Kitchen/Dining Room8.38m x 6.25m (27' 6" x 20' 6")with vaulted ceiling, outstanding views and luxuriously equipped with extensive range of bespoke ceramic working surfaces with soft closing drawers and cupboards below and matching range of cabinets above, inset sink unit with instant boiling water tap, range of integrated appliances including the 2 eye level steam ovens, coffee maker, space and plumbing for dishwasher and washing machine. Large island unit with breakfast bar, integrated Elica induction hob with inset extraction unit, space for American style fridge/freezer. Multi Zone under floor heating. Sliding glazed door to terrace and door toUtility Roomwith working surface and inset double bowl sink unit and mixer tap, range of storage cupboards, space for tumble dryer. Side door to garden.-The glass and oak staircase rises from the reception hall to the First Floor Landing with vaulted ceiling and velux windows, store cupboard housing the large hot water cylinder.Spacious Master Bedroom Suite comprising Bedroom 17.82m x 4.57m (25' 8" x 15' 0")affording spectacular downland views toward Belle Tout Lighthouse. under eaves walk in storage area, 2 large radiators, Juliette balcony.En suite Shower Roomwith suite comprising large shower unit with wall mounted shower fittings and rainfall shower head, wash basin, low level wc, heated towel rail, recessed storage area.Bedroom 23.8m x 3.35m (12' 6" x 11' 0")with westerly downland views. Door to large under eaves storage area, radiator.Jack and Jill Shower Roomwith provision for shower, wash basin and wc.Bedroom 33.66m x 3.05m (12' 0" x 10' 0")with fine downland views, radiator.Bedroom 42.97m x 2.74m (9' 9" x 9' 0")excluding the deep door recess, and the under eaves recess for a single or cot bed with outstanding downland views, Juliette balcony, radiator.Luxurious Bathroomrefitted with white suite comprising stand alone bath with mixer tap, wash basin with drawers below, low level wc, heated towel rail.OutsideA feature of this property is the rear garden, which secures some of the finest views from Friston. The rear garden is landscaped to provide a level area of level lawn which measures approximately 50' in depth with flower beds and borders. A further area of garden continues to give a total depth in excess of 120' and there was a plan to create a pond in this part of the garden. The garden secures a southerly aspect and there is gated side access.-At garden level there is a large Gym measuring 21' x 15'2 and a Studio (with provision for a kitchenette and shower room with wc) measuring 20'6 x 15'2 both with bi folding doors accessing the rear garden.Large Garden Workshop5.28m x 3.05m (17' 4" x 10' 0")-The wide private entrance drive affords off road parking for several vehicles and there is a newly constructed carport and EV charger.BrochuresParticulars
Location
Address
The Brow, Friston, Eastbourne, East Sussex, BN20
City
East Dean and Friston
Features and Finishes
spacious reception hall, sitting room open plan with magnificent kitchen/dining room | separate utility room, cinema room & third reception room/study, 4 bedrooms including master bedroom with dressing room & ensuite shower room, luxurious family bathroom/wc | jack & jill shower room for bedrooms 2 & 3, multi zone gas fired central heating, garden level gym and separate studio with kitchenette and shower room, southerly rear garden commanding glorious southerly views, newly constructed carport and wide private entrance drive with EV charger
Legal Notice
Our comprehensive database is populated by our meticulous research and analysis of public data. MirrorRealEstate strives for accuracy and we make every effort to verify the information. However, MirrorRealEstate is not liable for the use or misuse of the site's information. The information displayed on MirrorRealEstate.com is for reference only.