The Office, Muirskie Grange, Denside of Durris, Aberdeen, AB31 6EB

GBP 70000 For Sale

Property Details

Property Type

Residential Development

Description

Property Details: • Type: Residential Development • Tenure: N/A • Floor Area: N/A

Key Features:

Location: • Nearest Station: N/A • Distance to Station: N/A

Agent Information: • Address: 38 Holburn Street, Aberdeen, AB10 6BT

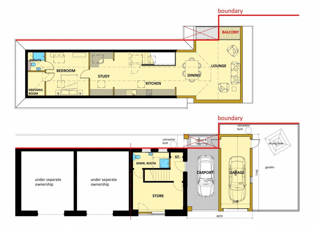
Full Description: McEwan Fraser Legal is excited to present a rare opportunity to purchase a former office complex with full planning permission for conversion into a stunning one-bedroom dwelling, located within the sought-after hamlet of Denside of Durris.

The property is a traditional stone and slate building that was previously used as a small office for a financial services business. Now, with new architectural plans in place, the space will be transformed into a modern, executive one-bedroom home, ideal for residential use or as a highly desirable Airbnb or holiday let, thanks to its scenic countryside location.

Currently, the property comprises a ground-floor entrance reception, a small galley kitchen, and toilet facilities, with stairs leading up to the first floor, which consists of open office space. Velux windows provide natural light and beautiful views.

The new plans incorporate an extension, which will add a carport and garage. Access from the carport leads to the upper level, where you'll find a spacious open-plan layout. A modern lounge with a glass gable-end wall will open onto a balcony, offering stunning countryside views. The upper level also includes a luxurious master bedroom with an en-suite bathroom and dressing room.

Outside, ample parking will be provided by the carport and garage, with additional guest parking available at the property, there is also a south facing garden consisting completely of lawn which is common ground for residents.

Please note: Two separate garage spaces on the ground floor of the building are not included in the sale.BrochuresBrochure 1

Location

Address

The Office, Muirskie Grange, Denside of Durris, Aberdeen, AB31 6EB

City

Aberdeen

Legal Notice

Our comprehensive database is populated by our meticulous research and analysis of public data. MirrorRealEstate strives for accuracy and we make every effort to verify the information. However, MirrorRealEstate is not liable for the use or misuse of the site's information. The information displayed on MirrorRealEstate.com is for reference only.

Real Estate Broker
McEwan Fraser Legal, Aberdeen
Brokerage
McEwan Fraser Legal, Aberdeen
Top Tags
residential use beautiful views
Likes

0

Views

28

This website uses cookies to ensure you get the best experience. Learn more