The Reef, 16 Boscombe Spa Road, Bournemouth
Property Details
3
2
Apartment
Description
Property Details: • Type: Apartment • Tenure: N/A • Floor Area: N/A
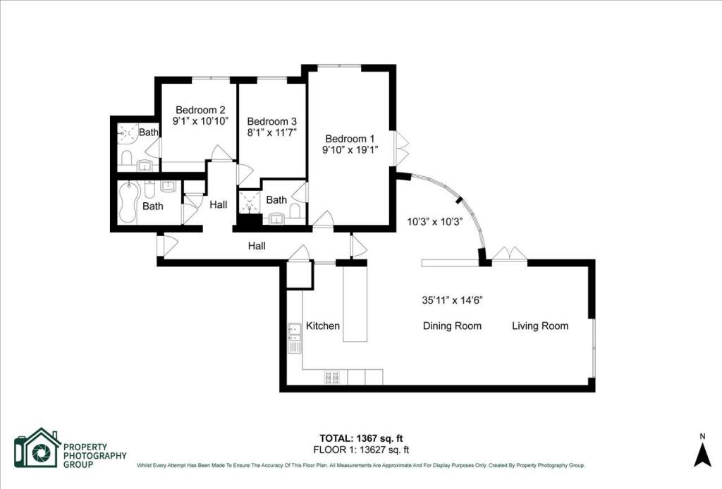
Key Features: • NO CHAIN • GROUND FLOOR FLAT WITH PATIO GARDEN • THREE DOUBLE BEDROOMS • TWO BATHROOMS • ALLOCATED SECURE PARKING • 1367 SQUARE FEET
Location: • Nearest Station: N/A • Distance to Station: N/A
Agent Information: • Address: 13 Malvern Road, Bournemouth, BH9 3AE
Full Description: ** GROUND FLOOR GARDEN FLAT ** 1367 SQ FEET ** THREE BEDROOMS ** ALLOCATED PARKING ** NO CHAIN **Heritage Sales and Lettings are pleased to be able to offer for sale with no forward chain this three double bedroom ground floor garden flat located in the sought after prestigious development of he Reef, just a stone's throw away from Boscombe's sandy beach and local restaurants and bars. This property offers a wealth of accommodation to include, a spacious open plan lounge, modern kitchen with breakfast bar and diner giving direct access via patio doors to the patio garden, perfect for the all important al fresco dining. There are three double bedrooms of which the master bedroom has it's own en-suite shower. Externally there is a good sized partially covered patio garden laid to paving slabs and an allocated parking space. A viewing is highly recommended to appreciate the accommodation on offer.EPC rating CCouncil Tax Band DGround rent - £250 per annumService Charges - £2200 x 2 total £4400 per annum
Location
Address
The Reef, 16 Boscombe Spa Road, Bournemouth
City
Bournemouth
Features and Finishes
NO CHAIN, GROUND FLOOR FLAT WITH PATIO GARDEN, THREE DOUBLE BEDROOMS, TWO BATHROOMS, ALLOCATED SECURE PARKING, 1367 SQUARE FEET
Legal Notice
Our comprehensive database is populated by our meticulous research and analysis of public data. MirrorRealEstate strives for accuracy and we make every effort to verify the information. However, MirrorRealEstate is not liable for the use or misuse of the site's information. The information displayed on MirrorRealEstate.com is for reference only.