The Retreat, Frome, BA11

GBP 875000 For Sale

Property Details

Bedrooms

4

Bathrooms

3

Property Type

Detached

Description

Property Details: • Type: Detached • Tenure: Freehold • Floor Area: N/A

Key Features: • Custom Build Home • Stunning Riverside Location • Extensive Gardens • High Energy Efficiency • Fishing Rights • Exciting & Rare Opportunity

Location: • Nearest Station: N/A • Distance to Station: N/A

Agent Information: • Address: 6 The Bridge, Frome, BA11 1AR

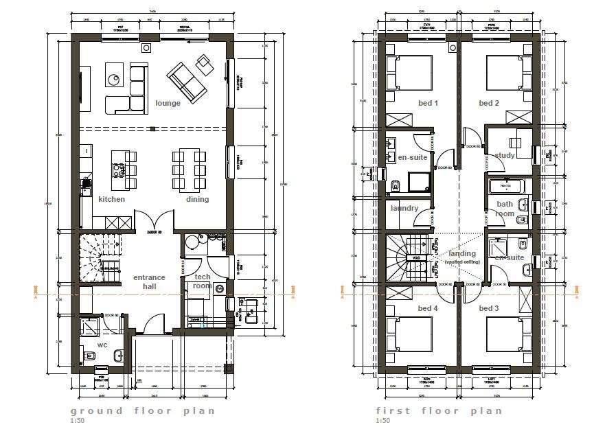
Full Description: DESCRIPTIONLightning House is an exciting and rare opportunity to purchase one of three detached new build houses measuring approximately 2,000 square feet with large gardens and river frontage, in central Frome.The interiors are designed with modern elegance, featuring high quality finishes, expansive living spaces, and bespoke options to create your dream home.Positioned within a serene and exclusive community, these homes offer the perfect combination of breathtaking natural beauty and yet being within 5 minutes stroll of the Train Station and 15 minutes stroll of the Town Centre.The front door of the homes will lead into a spacious and bright entrance hall with access to the downstairs W.C, the utility room and stairs lead to the first floor. Beyond the entrance hall is the high spec, open planned, naturally bright kitchen/dining/living space which enjoys views across the gardens and represents an excellent entertaining area for families and those that enjoy hosting dinner parties. Doors spill out to the gardens, a perfect arrangement for al-fresco dining in the warm weather.On the first floor there are four good size bedrooms, a study and a family bathroom. Bedrooms 1 & 2 also benefit from en-suite facilities.To the front of the house there is driveway parking for two vehicles. The gardens predominantly lie to the rear and are an excellent size extending down to a wildlife area and the river with the bonus of fishing rights!The outdoor space and the position of these houses is what makes this a very special opportunity.LOCATIONRiver Sidings is the most perfect location for those that enjoy wildlife and a green outlook whilst being close to amenities. The three houses are being constructed beside a community wildlife area within a short walk from the Town centre and its many independent cafés and boutique shops, including Rye Bakery, Projects Frome, Moo and Two, Frome Hardware, Little Walcot and Frome Reclamation Yard. Frome’s popularity has surged in recent years; the town is routinely named one of the best places to live in the UK, thanks to its thriving cultural scene, historic architecture, and beautiful surrounding countryside. The Frome Independent, a monthly market showcasing local artisans and food producers, has helped put Frome on the map, attracting over 80,000 visitors annually.Transport links are also very good. A mainline railway service runs direct services from Frome to London Paddington.Access to the national motorway network is via the A303 (M3) and Bristol Airport is less than 30 miles away.AGENTS NOTESThe properties are not yet under construction, the works will begin once a purchaser has exchanged contracts on the land, enabling any buyers to work closely with the developer and builder.There will be a management company set up between residents to deal with communal area’s post completion.AN INTRODUCTION TO THE DEVELOPERSVANMARK DEVELOPMENTS LTDWith over 35 years of experience in property development, Vanmark is a South-West based company built on the belief that successful development demands a blend of expertise, precision, and care. From land acquisition and planning to design, construction, finance, and management, Vanmark delivers a fully integrated, in-house service. Their holistic approach ensures clients receive exceptional quality and results - with guidance at every stage of the journey. At River Sidings, Vanmark brings this vision to life, offering exclusive plots with custom build homes tailored to your needs, within this remarkable locationDAN WOOD HOMESDan Wood homes is one of Europe's most respected custom home builders, with over 17,000 homes completed and a reputation for precision manufacturing, energy efficiency, and design flexibility. Their homes are built off-site using cutting-edge technology, allowing for faster construction, lower energy costs and a smoother experience for buyers. Every home comes with customised layouts, quality finishes, and a 20-year structural warranty, all delivered on a fixed price, fully managed timeline - making dream homes a reality with confidence and ease.INTRODUCING CUSTOM BUILDSDESIGN FREEDOM• Influence the internal and external design of your home• Agree on the full property design before construction• Personalise finishes and specifications to suit your lifestyleFINANCIAL CLARITY• Fixed price construction with no unexpected costs• Budget and funding agreed from the start• Tax-saving opportunities by purchasing the plot and build separatelyNO STRESS• Planning already approved• Includes roads, utilities, and drainage• Professionally landscaped gardens and communal areas• Backed by a 10-year new build warranty and a 20-year structural warrantyFULLY MANAGED EXPERIENCE• End to end project management creating a stress-free process• Built to the highest standards by Dan Wood homes• Fast, efficient construction with approximately 6-month build time• A complete turn-key solutionBrochuresBrochure 1

Location

Address

The Retreat, Frome, BA11

City

Frome

Features and Finishes

Custom Build Home, Stunning Riverside Location, Extensive Gardens, High Energy Efficiency, Fishing Rights, Exciting & Rare Opportunity

Legal Notice

Our comprehensive database is populated by our meticulous research and analysis of public data. MirrorRealEstate strives for accuracy and we make every effort to verify the information. However, MirrorRealEstate is not liable for the use or misuse of the site's information. The information displayed on MirrorRealEstate.com is for reference only.

Real Estate Broker
Cooper & Tanner, Frome
Brokerage
Cooper & Tanner, Frome
Top Tags
Custom Build Home Extensive Gardens Fishing Rights
Likes

0

Views

24

This website uses cookies to ensure you get the best experience. Learn more