The Slough, Warwickshire, B97
Property Details
4
1
Detached
Description
Property Details: • Type: Detached • Tenure: N/A • Floor Area: N/A
Key Features: • An extremely rare opportunity • Historical Detached dwelling built in 1939 • Circa 2 Acres surrounded by woodland and expansive grounds • Approx. 7,000 sq.ft. property including ancillary buildings • Large Detached entertainment complex • Triple Garage with space above • Significant redevelopment has already started • Stratford-on-Avon, Warwickshire District
Location: • Nearest Station: N/A • Distance to Station: N/A
Agent Information: • Address: Estate House, 12 Church Green East, Redditch, B98 8BP
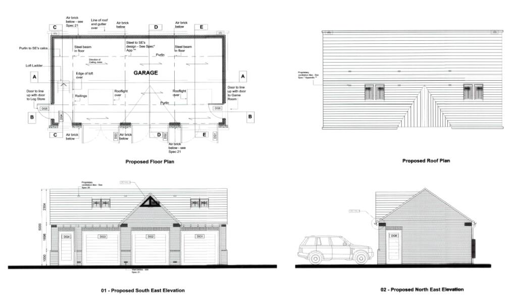
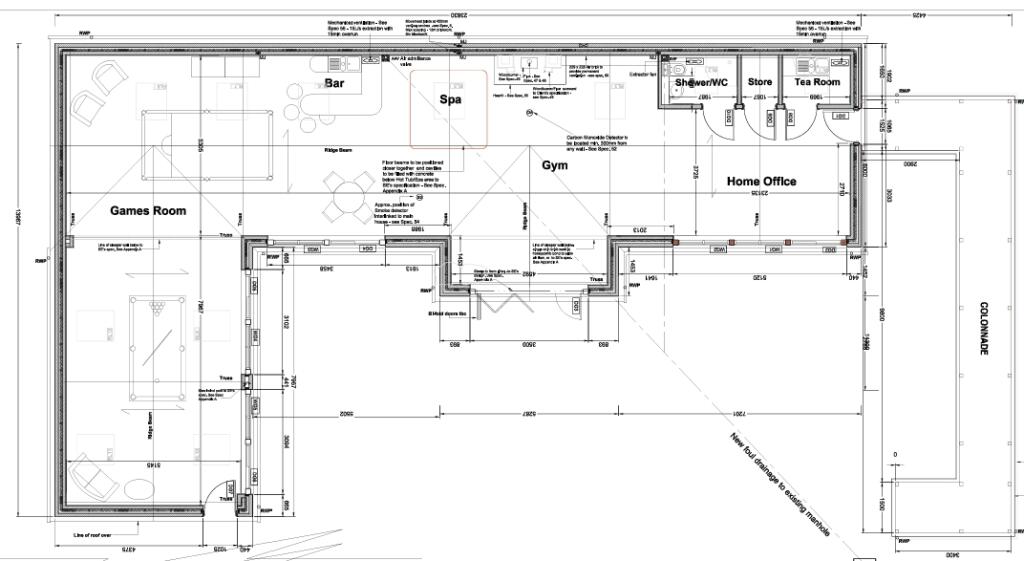
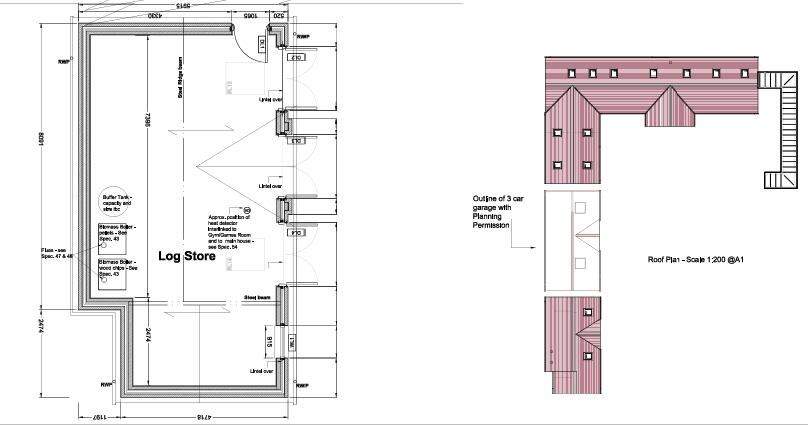
Full Description: VIEWING STRICTLY BY APPOINTMENT ONLY - FOR SALE VIA MODERN METHOD OF AUCTIONA fantastic opportunity to purchase this historical art deco style detached family home set within (circa) 2 acres. This property benefits from additional brick built ancillary buildings, amounting to approximately 7,000 sq. ft. The property sits within a secluded position approached by a sweeping driveway, surrounded by woodland and expansive grounds. Plans are in place and work started to convert the main residence into an impressive six bedroom executive home with detached three car garage with store space above and a large detached entertainment complex with cinema room, gym with spa and home office. Act now to purchase this rare property, whether it’s for redevelopment or to bespoke your perfect family home. The original residence boasts a rich local history, having been built 1939 as a one off. Its design is reputedly inspired by the central Adam-style staircase, with its elegant curves reflected in both the interior and exterior architecture of the home. Significant redevelopment is already underway, including the construction of a new two-storey wing designed to house a master bedroom with an en-suite bathroom, a ground-floor home office, and a new reception hall. Construction has also started on three substantial outbuildings, which will form a comprehensive entertainment complex. This includes a large games room, home cinema, home gym with spa, bar, and an additional home office. The plans also feature a detached three-car garage with an overhead storage room and a spacious detached log store. The Slough is well located on the edge of Warwickshire and is conveniently situated for local amenities, schooling and recreational facilities. The nearby town of Stratford-upon-Avon is home to Shakespeare and the Royal Shakespeare Company, coupled with many restaurants and wine bars offering a lively social scene. There are numerous National Trust properties within a half hour drive along with Ragley Hall providing different entertainment. The property is conveniently located for access to excellent commuting links are available via the M5, M42, and M40 motorways, and railway stations can be found in Bromsgrove, Redditch, Stratford-upon-Avon, and Worcester.This property is for sale by the Modern Method of Auction. Should you view, offer or bid on the property, your information will be shared with the Auctioneer, iamsold.This method of auction requires both parties to complete the transaction within 56 days of the draft contract for sale being received by the buyers solicitor. This additional time allows buyers to proceed with mortgage finance (subject to lending criteria, affordability and survey).The buyer is required to sign a reservation agreement and make payment of a non-refundable Reservation Fee. This being 4.50% of the purchase price including VAT, subject to a minimum of £6,600.00 including VAT. The Reservation Fee is paid in addition to purchase price and will be considered as part of the chargeable consideration for the property in the calculation for stamp duty liability.Buyers will be required to go through an identification verification process with iamsold and provide proof of how the purchase would be funded.This property has a Buyer Information Pack which is a collection of documents in relation to the property. The documents may not tell you everything you need to know about the property, so you are required to complete your own due diligence before bidding. A sample copy of the Reservation Agreement and terms and conditions are also contained within this pack.The buyer will also make payment of £300.00 including VAT towards the preparation cost of the pack, where it has been provided by iamsold.The property is subject to an undisclosed Reserve Price with both the Reserve Price and Starting Bid being subject to change.Referral ArrangementsThe Partner Agent and Auctioneer may recommend the services of third parties to you. Whilst these services are recommended as it is believed they will be of benefit; you are under no obligation to use any of these services and you should always consider your options before services are accepted.Where services are accepted the Auctioneer or Partner Agent may receive payment for the recommendation and you will be informed of any referral arrangement and payment prior to any services being taken by you.No statement in these details is to be relied upon as representation of fact, and purchasers should satisfy themselves by inspection or otherwise as to the accuracy of the statements contained within. These details do not constitute any part of any offer or contract. AP Morgan and their employees and agents do not have any authority to give any warranty or representation whatsoever in respect of this property. These details and all statements herein are provided without any responsibility on the part of AP Morgan or the vendors. Equipment: AP Morgan has not tested the equipment or central heating system mentioned in these particulars and the purchasers are advised to satisfy themselves as to the working order and condition. Measurements: Great care is taken when measuring, but measurements should not be relied upon for ordering carpets, equipment, etc. The Laws of Copyright protect this material. AP Morgan is the Owner of the copyright. This property sheet forms part of our database and is protected by the database right and copyright laws. No unauthorised copying or distribution without permission..Current House Layout***Main House***Reception HallW/COffice3.15m x 6.15mDrawing Room4.7m x 7.65mSitting Room3.53m x 4.14mBoth maxDining Room4.67m x 5.13mKitchen/Breakfast Room4.93m x 4.7mSecond Kitchen6.22m x 4.7mBoth maxLibrary3.23m x 3mFirst Floor Gallery LandingMaster Bedroom7.14m x 5.28mBoth maxMaster En-suite5.03m x 2.8mDressing Room2.77m x 4.22mBedroom Two (Space to include proposed en-suite)4.78m x 7.7mBedroom Three4.98m x 4.27mBedroom Four (Space to include proposed en-suite)4.72m x 5.18mBedroom Five4.47m x 4.67mBedroom Six (Space to include proposed familiy bathroom)6.22m x 6.05m***Entertainment Complex***Home Office (Space to include proposed w/c & shower room)6.65m x 5.3mGym & Spa10.8m x 5.28mBoth maxCinema Room5.44m x 5.61mGames Room5.13m x 7.54mBoth max***Triple Garage***10.57m x 5.4mBoth maxLoft Room10.57m x 5.4mBoth maxLog Store9.86m x 5.92m
Location
Address
The Slough, Warwickshire, B97
City
Kenilworth
Features and Finishes
An extremely rare opportunity, Historical Detached dwelling built in 1939, Circa 2 Acres surrounded by woodland and expansive grounds, Approx. 7,000 sq.ft. property including ancillary buildings, Large Detached entertainment complex, Triple Garage with space above, Significant redevelopment has already started, Stratford-on-Avon, Warwickshire District
Legal Notice
Our comprehensive database is populated by our meticulous research and analysis of public data. MirrorRealEstate strives for accuracy and we make every effort to verify the information. However, MirrorRealEstate is not liable for the use or misuse of the site's information. The information displayed on MirrorRealEstate.com is for reference only.