The Street, Little Clacton, CO16
Property Details
Land
Description
Property Details: • Type: Land • Tenure: N/A • Floor Area: N/A
Key Features: • Land measuring 16.1 acres (STLS) • Planning permission to construct 98 homes, • Planning Ref: 15/01550/OUT • Desirable location • Close to Weeley train station
Location: • Nearest Station: Thorpe-le-Soken Station • Distance to Station: 1.5 miles
Agent Information: • Address: 10 Springfield Lyons Approach, Springfield, Chelmsford, CM2 5LB
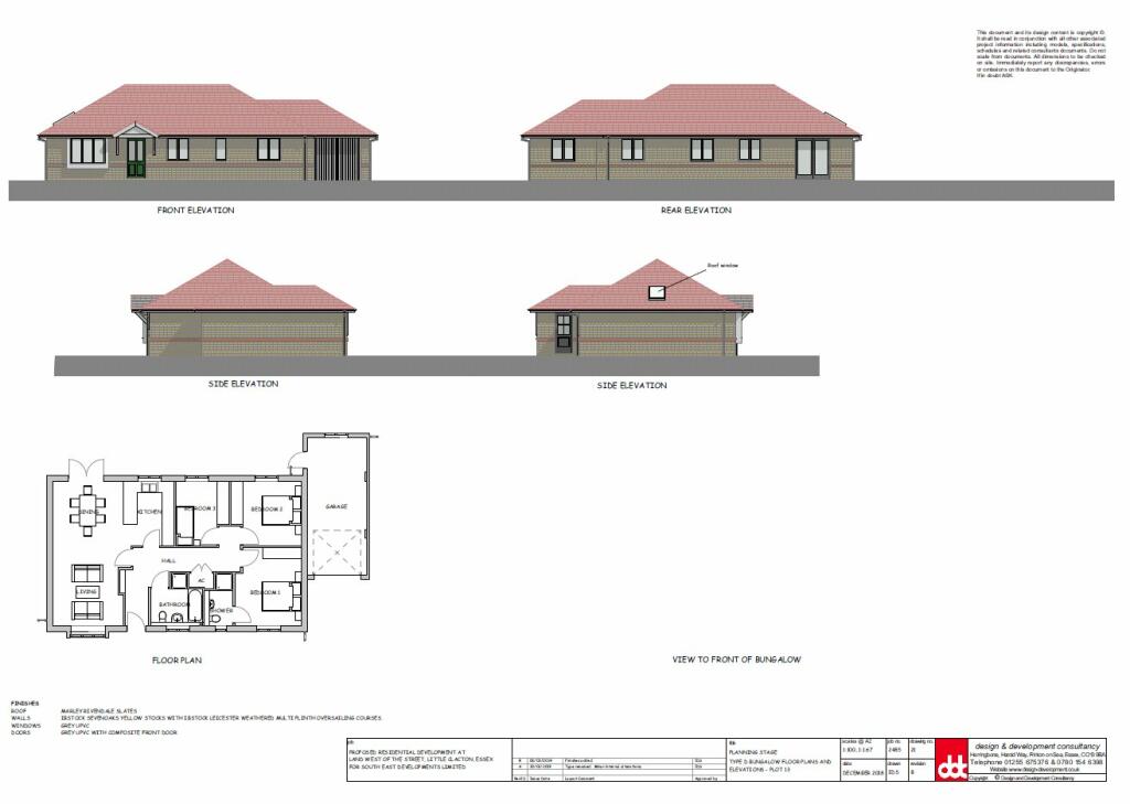
Full Description: A site of circa 16.1 acres (STL S) with consented and implemented planning permission to construct 98 homes.DescriptionAn exciting opportunity to acquire an established plot with consented and implemented planning permission to construct 98 homes, positioned on an overall plot of 16.1 acres. The site is located to the West of The Street, Little Clacton, and can be located under planning reference 15/01550/OUT.PlanningThe consented plans consist of a mixture of three and four bedroom houses and bungalows which will be accessible from a new unadopted access off The Street, with seven one-bedroom Almshouses allocated for social housing forming part of the plans. The consented plans and site layout have been sympathetically designed to enhance the proposed development and the surrounding area, with a blend of property styles and sizes which will appeal to a wide range of purchasers upon completion.A pre-application was submitted with alterations to the current scheme, which will replace some of the larger properties with smaller homes, increasing the total number of units to 122, but this was withdrawn as the owner has contacted the council with a call for site. There is no CIL applied to the site.LocationThe site is located to the North of Little Clacton, less than 2 miles from Weeley Railway Station and Thorpe Le Soken Railway station which are on the branch line off the Great Eastern Mainline. The area features access to local shops and amenities including three general stores and a supermarket. It is located less than 4 miles from the coastal town of Clacton offering a wider range of facilities and amenities. The completed properties will benefit from a desirable semi-rural position on the edge of Little Clacton, whilst benefiting from the various nearby amenities and transport links in the vicinity.Terms of OfferThe land is being sold on an unconditional basis at a price of £10,000,000. For further information or to arrange a viewing, please contact Beresfords Land Director.Beresfords would seek to be instructed as agent on all new homes being sold.BrochuresParticulars
Location
Address
The Street, Little Clacton, CO16
City
Little Clacton
Features and Finishes
Land measuring 16.1 acres (STLS), Planning permission to construct 98 homes,, Planning Ref: 15/01550/OUT, Desirable location, Close to Weeley train station
Legal Notice
Our comprehensive database is populated by our meticulous research and analysis of public data. MirrorRealEstate strives for accuracy and we make every effort to verify the information. However, MirrorRealEstate is not liable for the use or misuse of the site's information. The information displayed on MirrorRealEstate.com is for reference only.