Thornton Common Road, Thornton Hough, Wirral

GBP 225000 For Sale

Property Details

Property Type

Land

Description

Property Details: • Type: Land • Tenure: N/A • Floor Area: N/A

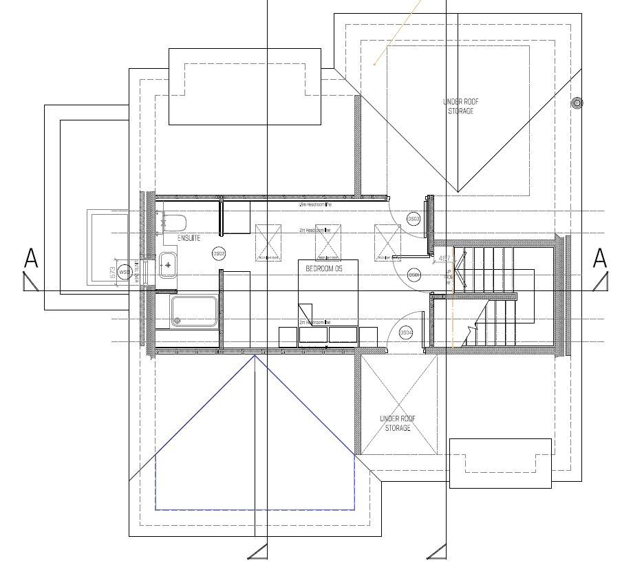
Key Features: • Land for sale • Planning approved • 5 Bedroom detached • 2 Ensuites • 3 Reception rooms • Open plan kitchen • Utility room

Location: • Nearest Station: Heswall Station • Distance to Station: 1.4 miles

Agent Information: • Address: 23 Pensby Road, Heswall, Wirral, CH60 7RA

Full Description: Land for sale! Planning has been approved for a five bedroom detached house in the picturesque Thornton Hough. Floorplan is to be arranged over three floors and offer, two ensuite bathrooms and three receptions rooms.Accommodation - 5 double bedrooms, 3.5 bathrooms, 2 reception rooms, open plan kitchen diner, utility room. Off road parking, Southerly facing garden.Proposed house = 2147 sq. ft / 199.5 sq. mAPP/19/01642 - Erection of one detached dwelling with associated access parking and landscaping.DIS/22/00584 - Application for approval of details reserved by conditions 4 (schedule of tree works with tree protection plan and arboriculturally method statement) and 11 (stone boundary wall dismantling and re-erection method statement) of planning permission APP/19/01642 - erection of one detached dwelling with associated access, parking and landscaping. NMA/22/00802 - Application for non-material amendments to planning permission APP/19/01642 to allow the swapping of ground floor windows and bi-fold doors between the front and rear elevation, and the installation of three rooflight windows to the rear roof slope and a window into the south east side elevation to facilitate a roof space bedroom and en-suite bathroom. DIS/22/01006 - Application for approval of details reserved by condition 3 (archaeological written scheme of investigation) of planning permission APP/19/01642 (Erection of one detached dwelling with associated access, parking, and landscaping)For further details and to arrange a viewing, please call Karl Tatler Estate Agents Heswall.

Location

Address

Thornton Common Road, Thornton Hough, Wirral

City

Thornton Hough

Features and Finishes

Land for sale, Planning approved, 5 Bedroom detached, 2 Ensuites, 3 Reception rooms, Open plan kitchen, Utility room

Legal Notice

Our comprehensive database is populated by our meticulous research and analysis of public data. MirrorRealEstate strives for accuracy and we make every effort to verify the information. However, MirrorRealEstate is not liable for the use or misuse of the site's information. The information displayed on MirrorRealEstate.com is for reference only.

Real Estate Broker
Karl Tatler Estate Agents, Heswall
Brokerage
Karl Tatler Estate Agents, Heswall
Top Tags
5 Bedroom detached 2 Ensuites 3 Reception rooms Open plan kitchen
Likes

0

Views

82

This website uses cookies to ensure you get the best experience. Learn more