Three Cross Road, West Moors, Wimborne, Dorset, BH21

GBP 350000 For Sale

Property Details

Property Type

Land

Description

Property Details: • Type: Land • Tenure: N/A • Floor Area: N/A

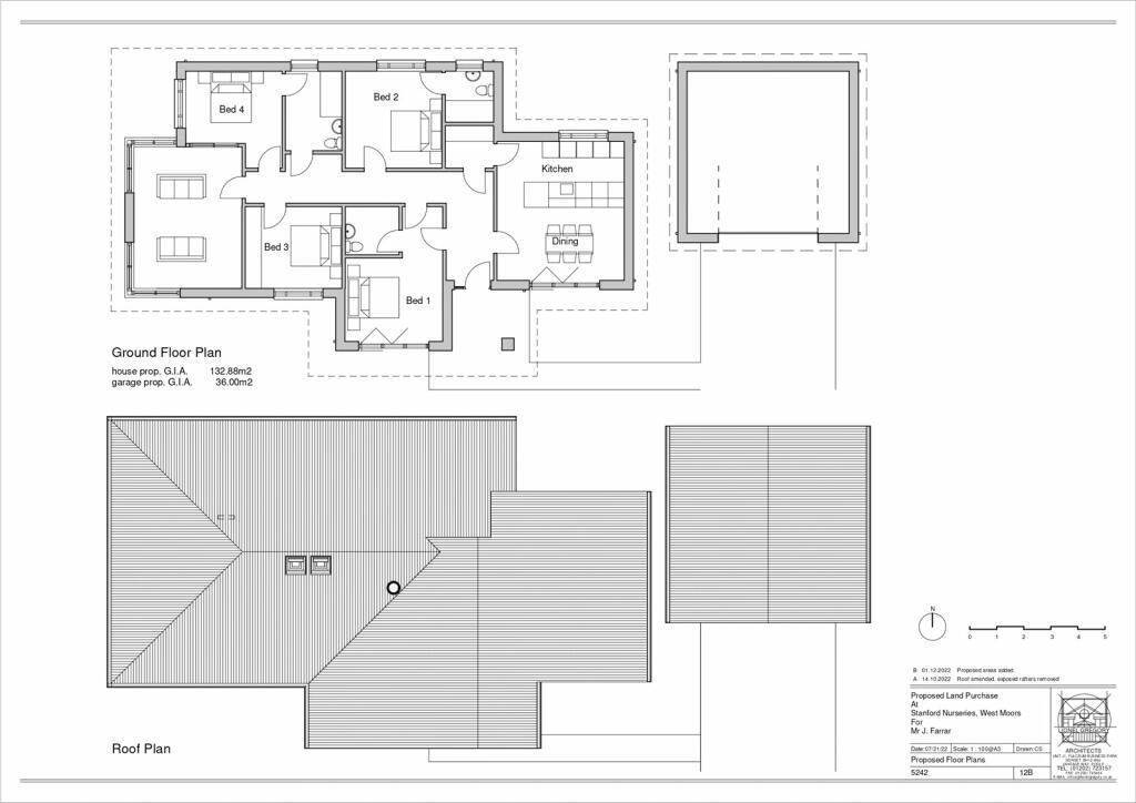
Key Features: • Planning consent for 1500ft2 bungalow • Plot totalling 0.92 of an acre • Semi rural location

Location: • Nearest Station: N/A • Distance to Station: N/A

Agent Information: • Address: 14A The Furlong, Ringwood, BH24 1AT

Full Description: A rare opportunity to acquire a single building plot (0.92 of an acre), with planning consent to demolish the existing and replace with single storey dwelling with a gross internal area of 1430 sq.ft. plus garage of 387 sq.ft. See Dorset Council Planning, Ref: P/FUL/2023/00234. DIRECTIONAL NOTE:From the Ashley Heath roundabout proceed along the Horton Road to the village of Three Legged Cross (passing Moors Valley country park and Hilliers garden centre). Proceed across the first mini-roundabout and at the second roundabout turn left onto Three Cross Road in the direction of West Moors. Continue for approximately one third of a mile, whereupon the entrance to Stanford Nurseries (no longer operational) is on the right hand side, prior to Gundrymoor trading estate and the West Moors military fuel depot.

Location

Address

Three Cross Road, West Moors, Wimborne, Dorset, BH21

City

Dorset

Features and Finishes

Planning consent for 1500ft2 bungalow, Plot totalling 0.92 of an acre, Semi rural location

Legal Notice

Our comprehensive database is populated by our meticulous research and analysis of public data. MirrorRealEstate strives for accuracy and we make every effort to verify the information. However, MirrorRealEstate is not liable for the use or misuse of the site's information. The information displayed on MirrorRealEstate.com is for reference only.

Real Estate Broker
Grants Of Ringwood, Ringwood
Brokerage
Grants Of Ringwood, Ringwood
Top Tags
Likes

0

Views

72

This website uses cookies to ensure you get the best experience. Learn more