Tilstock Crescent, Prenton
Property Details
3
1
Semi-Detached
Description
Property Details: • Type: Semi-Detached • Tenure: N/A • Floor Area: N/A
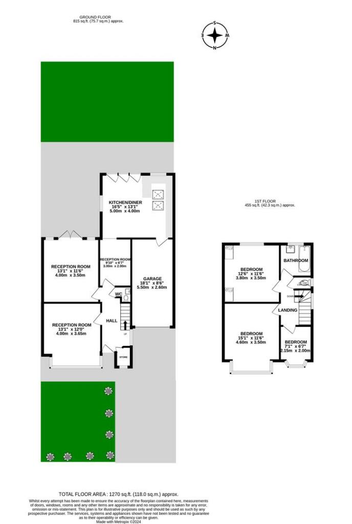
Key Features: • Stunning Ground Floor Extension To This 3 Bedroomed Semi • Extension Creates a Kitchen Dining Room • Original House with Two Separate Reception Rooms • An Open Plan Snug/Work Place • Cloakroom & Integral Garage • Three Bedrooms and Bathroom With Separate WC to First Floor • A 'NO CHAIN' SALE • Beautiful Gardens Including Patio for Outdoor Dining • With Central South Facing Orientation to Garden • Tilstock is Arguably the Prettiest Tree Lined and Less Used Crescent
Location: • Nearest Station: N/A • Distance to Station: N/A
Agent Information: • Address: 377 Woodchurch Road, Birkenhead, CH42 8PE
Full Description: A combination of ‘the best with THE very best’- We think so, given Tilstock Crescent has always been recognised as one of, if not the very favoured road within the established Prenton neighbourhood - for its tree lined pavements and minimal reasons for traffic to pass through - and ‘best’ too for the accommodation which lies within this spectacular semi. Of course, if you haven’t already, you’ll go straight the photo slide show and floorplan to check out what makes us describe this beautiful home so. …BUY THIS BEAUTIFUL HOME IN THE KNOWLEDGE THERE WILL BE NO ONWARD PROPERTY CHAIN DELAYSFor there is an impressive and substantial ground floor extension to the rear of the property; designed by MGMA Studio Architects of Liverpool; providing a superb family kitchen-dining room. Sensing this is more than just an add on room; this space has been the star attraction to family and the envy of friends. Not only eye catching (you catch a glimpse of this space and its bifold doors to the garden as soon as you cross the threshold); it is hugely practical and at the same time it's design maximises views and natural light. Given the garden is south facing - and considerably private - this feature is fundamental to the overall design of this family hub. . .In fact you’ll soon appreciate the extra large skylight to the roof line too, ensuring good light whatever the time of day…and if it’s good and sunny when you come to view, see how the bi folds bring house and garden together.So from that glimpse at the front door of the house, take stock of the beautiful engineered wood flooring that runs from the hall, through to what our client calls their ‘snug’ -(where family members can sit, relax, read or listen to music; where there’s box seating with a clever use of storage below) and into the extension and rear reception room.This reception room, south facing and with it's own access to a private patio quarter; is one of two, with the front room having a smart laminate floor covering a view down the tree lined avenue.Back to the extension, and to confirm how the room is clearly split into both working kitchen with island divider, to the dining room area. Plenty of units, work surfaces, lighting and open views - a pleasure to both prepare meals and dine in, no doubt.Pass on back down the hall (note the under the stairs cloakroom suite) and take the stairs to first floor. Smart internal doors both at ground and at this level lead to three very pleasant bedrooms with the smallest having a pretty oriel window. The bathroom, with its separate WC, services these three rooms.This house comes with a garage too, integral to the house; whilst there’s a smart frontage to the house, and a very attractive landscaped rear garden with its various patio areas, all south facing.Locator - Tilstock Crescent runs from the top of Broxton Avenue and mid way into Pulford Avenue, pretty much in the heart of the traditional and hugely popular semi detached estate built in the thirties - that location is likely why this charming road is used by residents and deliveries and very few else, other than the lost driver perhaps. Central to Prenton, Sat Nav: CH43 0STBrochuresTilstock Crescent, PrentonBrochure
Location
Address
Tilstock Crescent, Prenton
City
Prenton
Features and Finishes
Stunning Ground Floor Extension To This 3 Bedroomed Semi, Extension Creates a Kitchen Dining Room, Original House with Two Separate Reception Rooms, An Open Plan Snug/Work Place, Cloakroom & Integral Garage, Three Bedrooms and Bathroom With Separate WC to First Floor, A 'NO CHAIN' SALE, Beautiful Gardens Including Patio for Outdoor Dining, With Central South Facing Orientation to Garden, Tilstock is Arguably the Prettiest Tree Lined and Less Used Crescent
Legal Notice
Our comprehensive database is populated by our meticulous research and analysis of public data. MirrorRealEstate strives for accuracy and we make every effort to verify the information. However, MirrorRealEstate is not liable for the use or misuse of the site's information. The information displayed on MirrorRealEstate.com is for reference only.