Trafalgar Street, Brighton
Property Details
Industrial Development
Description
Property Details: • Type: Industrial Development • Tenure: N/A • Floor Area: N/A
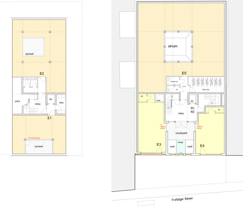
Key Features: • Open plan warehouse circa 475 sq m • Located in central Brighton • Planning application submitted for a 4 storey mixed commercial and residential building • Freehold • Vacant possession • Proposal for 9 class E (office/retail) commercial units with 2 residential units • Walking distance to Brighton Station
Location: • Nearest Station: Brighton Station • Distance to Station: 0.0 miles
Agent Information: • Address: 37 Vernon Terrace, Brighton, BN1 3JH
Full Description: Prime City Centre Development Site For SaleVacant Possession – Sole AgentsPlanning Approval (On Appeal) For Commercial / Retail Building (Class E) Approved 20 December 2024Prime City Centre Development Site For SaleVacant Possession – Sole AgentsPlanning Approval (On Appeal) For Commercial / Retail Building (Class E) Approved 20 December 2024Description - The existing building is an open plan warehouse formed of corrugated steel sheets with a tall, rendered parapet wall to the street elevation. The existing building footprint is circa 475 sq.m. The property offers a unique opportunity to acquire a prime city centre site.Situation - 47 Trafalgar Street is located on the South side of Trafalgar Street, in the North Laine Conservation Area within St Peter's and North Laine Ward. It was formerly in use as a car rental facility ("Thrifty"), assumed to be in use class sui generis and has recently become vacant. The site is located adjacent to the Grade II listed Prince Albert Public House (48 Trafalgar Street) to the West and 45/46 Trafalgar Street to the East, a mixed-use building containing a shop, cafe and multiple dwellings above. The current building is a warehouse set back 6.0m from the frontage of 45/46.Planning - A planning application has recently been submitted to Brighton & Hove Council for the demolition of the existing building and erection of a 4 storey (plus basement) commercial building. The planning application reference is BH2022/02492. The proposal is for 1357 sq.m. (GIA) of Class E commercial (office/retail) floor space. The application was refused but went to appeal and was allowed. A copy of the Appeal Decision (APP/Q1445/W/24/3343603) dated 20 December 2024 is available upon request and is subject to certain conditions.Rateable Value - £48,250Notes - FULL PROPOSED PLANS AND INFORMATION PACK AVAILABLE UPON REQUESTFreehold - Vacant PossessionInterested parties to satisfy themselves on net/gross floor areas and lettable space.For further information please contact the sole agentsBrochuresTrafalgar Street, BrightonBrochure
Location
Address
Trafalgar Street, Brighton
City
Brighton
Features and Finishes
Open plan warehouse circa 475 sq m, Located in central Brighton, Planning application submitted for a 4 storey mixed commercial and residential building, Freehold, Vacant possession, Proposal for 9 class E (office/retail) commercial units with 2 residential units, Walking distance to Brighton Station
Legal Notice
Our comprehensive database is populated by our meticulous research and analysis of public data. MirrorRealEstate strives for accuracy and we make every effort to verify the information. However, MirrorRealEstate is not liable for the use or misuse of the site's information. The information displayed on MirrorRealEstate.com is for reference only.