Turves Green, Birmingham, West Midlands, B31

GBP 160000 For Sale

Property Details

Bedrooms

2

Bathrooms

1

Property Type

Maisonette

Description

Property Details: • Type: Maisonette • Tenure: Ask agent • Floor Area: N/A

Key Features:

Location: • Nearest Station: N/A • Distance to Station: N/A

Agent Information: • Address: 899 Bristol Road South, Northfield, Birmingham, B31 2PA

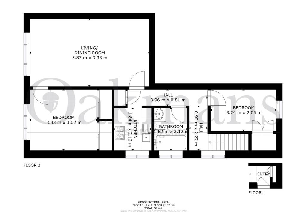
Full Description: ** Two Bedroom Maisonette - First Floor - Garage - 126 Years On Lease - Beautifully Presented ***A fantastic opportunity to purchase a first floor two-bedroom maisonette ideally situated for access to local amenities, public transport links and Northfield train station. The property has been modernised throughout and offers; Entrance hall with stairs rising to the first floor;. There is a modern fitted kitchen with integrated fridge, freezer, oven, hob, extractor hood and space for a washing machine. There is a spacious lounge and two well-proportioned bedrooms with built in storage. There is a low maintenance front garden with flower beds and lawned area. The property benefits from double glazing and electric central heating and a garage en-bloc. Viewing is highly advised on this beautiful two-bedroom property ideal for first time buyers, downsizers and buy to let investors. Call Oakmans today!Please note all information within this advert needs verifying via a solicitor and Oakmans cannot be held responsible.Lease Term - Approx 126 YearsGround Rent - NilService Charge - Nil

Location

Address

Turves Green, Birmingham, West Midlands, B31

City

West Midlands

Legal Notice

Our comprehensive database is populated by our meticulous research and analysis of public data. MirrorRealEstate strives for accuracy and we make every effort to verify the information. However, MirrorRealEstate is not liable for the use or misuse of the site's information. The information displayed on MirrorRealEstate.com is for reference only.

Real Estate Broker
Oakmans Estate Agents, Northfield
Brokerage
Oakmans Estate Agents, Northfield
Top Tags
First Floor Spacious Lounge
Likes

0

Views

22

This website uses cookies to ensure you get the best experience. Learn more