Ty-draw Road, Pontprennau, Cardiff

GBP 475000 For Sale

Property Details

Property Type

Land

Description

Property Details: • Type: Land • Tenure: N/A • Floor Area: N/A

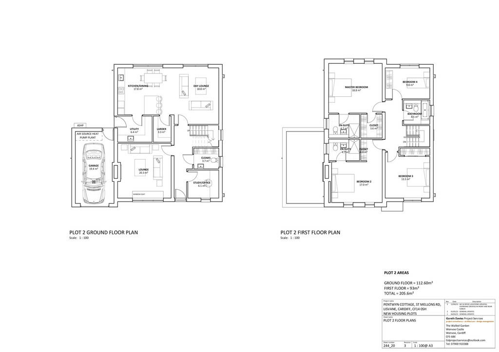
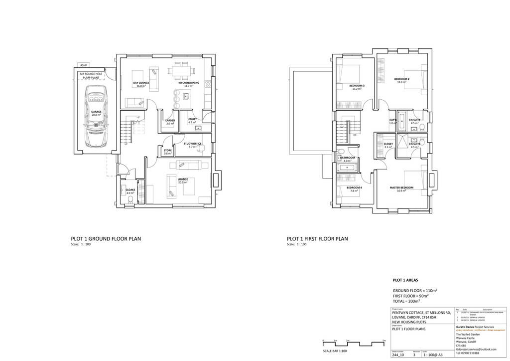
Key Features: • Two Building Plots For Sale • Full Planning Permission • For Two, 4 Bedroom Detached Dwellings Of Approx 2,150 sq.ft. • 0.28 Acre Development Site

Location: • Nearest Station: Llanishen Station • Distance to Station: 1.6 miles

Agent Information: • Address: 6 Station Road, Radyr, Cardiff, CF15 8AA

Full Description: DESCRIPTION ** TWO BUILDING PLOTS FOR SALE ** WITH FULL PLANNING PERMISSION ** Situated on a prime corner position on Ty-Draw Road, Pontprennau, bordering Lisvane, are two building plots offered with full planning permission for two, four bedroom detached dwellings, each with single garage (planning no. 22/02903/FUL). The site measures 0.28 acres (0.11 ha) and is conveniently located to local amenities, with ideal transport links to the M4 Motorway and Cardiff City Centre. The proposed dwellings measure approximately 2150 sq.ft. each, over two storeys. Section 106 contribution of approximately £63,000. No services have been tested. Additional information available on request. LOCATION This property is located in the sought after area of Pontprennau, bordering Lisvane which is a short distance from Lisvane village with St Denys church, The Griffin public house, convenience store and hairdressers. Well regarded schools and regular public transport to the city centre plus links to the M4 Motorway. TENURE We are advised that the site is freehold. ADDITIONAL INFORMATION Please note the adjacent property Pentwyn Cottage is not included in the sale. BrochuresA4 Portrait 4pp A...

Location

Address

Ty-draw Road, Pontprennau, Cardiff

City

Cardiff

Features and Finishes

Two Building Plots For Sale, Full Planning Permission, For Two, 4 Bedroom Detached Dwellings Of Approx 2,150 sq.ft., 0.28 Acre Development Site

Legal Notice

Our comprehensive database is populated by our meticulous research and analysis of public data. MirrorRealEstate strives for accuracy and we make every effort to verify the information. However, MirrorRealEstate is not liable for the use or misuse of the site's information. The information displayed on MirrorRealEstate.com is for reference only.

Real Estate Broker
MGY, Radyr
Brokerage
MGY, Radyr
Top Tags
150 sq.ft Pontprennau
Likes

0

Views

131

This website uses cookies to ensure you get the best experience. Learn more