Tything Road East, Alcester B49 6ER
Property Details
None
Description
Property Details: • Type: N/A • Tenure: N/A • Floor Area: N/A
Key Features: • 509 sq ft (47.30 m2) • Two Offices Rooms • Gated Site • Private Car Park • £495 pm + VAT (£5,940 pa + VAT)
Location: • Nearest Station: N/A • Distance to Station: N/A
Agent Information: • Address: 1st Floor Offices 3 Trinity Street Stratford upon Avon WARKS CV37 6BL
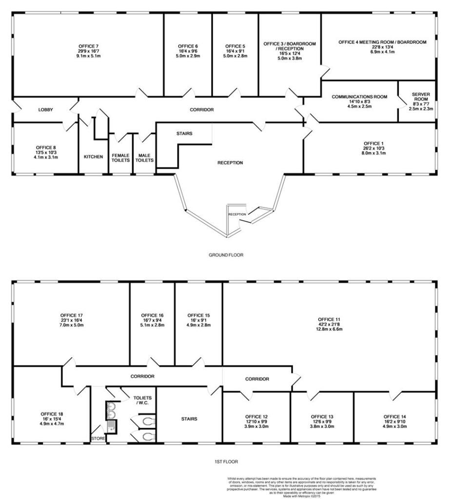
Full Description: TO LET - A versatile ground floor office space which includes two interconnecting office rooms known as Office 3 and Office 4 located within a secure gated site just off Tything Road on the popular Arden Forest Industrial Estate. £495 pm + VAT with a service charge payable of £107.74 pm + VAT.From the main reception area is the ground floor corridor that takes you to the door of Office 3. Office 3 measures approximately 16.5 ft by 12.4 ft (5 m x 3.8 m) with carpeted floor freshly painted walls and a window to the rear elevation. The main door has a five lever mortice lock on it making the office self-contained and there are 13 amp sockets in various locations as well as a suspended ceiling. From Office 3 is the door way to office 4 which is a longer room measuring 22.8 ft long by 13.4 ft wide (6.9 m by 4.1 m). The office has carpeted floor, painted walls windows on the rear and side elevation, 13 am sockets, electric heaters and a suspended ceiling. The general utility running costs are covered by a service charge which includes: Water & Sewerage, Buildings Insurance, Communal Heating & Lighting, Communal Cleaning, Communal Gardening, Heating & Lighting in Office, Communal Window Cleaning Externally & Re-stock of facilities i.e. soap & toilet paper. The Service charge is £107.74 pm + VAT. 16.5 ft x 12.4 ft = 204 sq ft 5 m x 3.8 mOffice 422.8 ft x 13.4 ft = 305 sq ft 6.9 m x 4.1 m
Location
Address
Tything Road East, Alcester B49 6ER
City
Alcester
Features and Finishes
509 sq ft (47.30 m2), Two Offices Rooms, Gated Site, Private Car Park, £495 pm + VAT (£5,940 pa + VAT)
Legal Notice
Our comprehensive database is populated by our meticulous research and analysis of public data. MirrorRealEstate strives for accuracy and we make every effort to verify the information. However, MirrorRealEstate is not liable for the use or misuse of the site's information. The information displayed on MirrorRealEstate.com is for reference only.