Tything Road, Kinwarton, Alcester B49 6EX

GBP 4080 For Rent

Property Details

Property Type

7,533 sq ft

Description

Property Details: • Type: 7,533 sq ft • Tenure: N/A • Floor Area: N/A

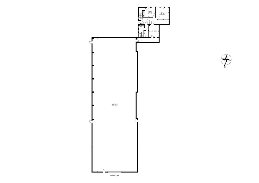
Key Features: • 7,533 sq ft (700.12 m2) • 9 Parking Spaces • Two Office Rooms • Kitchen/Breakout Room • 4m Eaves Height • 9m Ridge Height • Rear Yard • £48,964 per annum + VAT

Location: • Nearest Station: Wooton Wawen Station • Distance to Station: 4.2 miles

Agent Information: • Address: 1st Floor Offices 3 Trinity Street Stratford upon Avon WARKS CV37 6BL

Full Description: TO LET - A 7,533 sq ft (700.12 m2) Industrial/Warehouse Unit situated on the popular Arden Forest Industrial Estate, Alcester. Priced at £6.50 per sq ft which equates to £48,964 per annum + VAT.An Industrial/Warehouse building constructed from a steel portal frame with profile roof and wall sheets. The unit is mostly open plan internally with 4.00 m eaves, 9.00 m ridge and a concrete floor slab. There is a roller shutter door at the north end which opens up into a yard area. To the far end of the warehouse are two office rooms, a hallway leading to the toilets as well as a kitchen/break out room and fire exit. Externally there is a generous allocated parking area to the East of the building which would accommodate 9 cars.Energy Performance CertificatesEE RatingEI Rating

Location

Address

Tything Road, Kinwarton, Alcester B49 6EX

City

Kinwarton

Features and Finishes

7,533 sq ft (700.12 m2), 9 Parking Spaces, Two Office Rooms, Kitchen/Breakout Room, 4m Eaves Height, 9m Ridge Height, Rear Yard, £48,964 per annum + VAT

Legal Notice

Our comprehensive database is populated by our meticulous research and analysis of public data. MirrorRealEstate strives for accuracy and we make every effort to verify the information. However, MirrorRealEstate is not liable for the use or misuse of the site's information. The information displayed on MirrorRealEstate.com is for reference only.

Real Estate Broker
Westbridge Commercial Limited, Stratford Upon Avon
Brokerage
Westbridge Commercial Limited, Stratford Upon Avon
Top Tags
£6.50 per sq ft 9 Parking Spaces Two Office Rooms
Likes

0

Views

21

This website uses cookies to ensure you get the best experience. Learn more