Unit 2 Brickworks, Trade Street, Butetown, Cardiff, CF10 5EG
Property Details
Terraced
Description
Property Details: • Type: Terraced • Tenure: N/A • Floor Area: N/A
Key Features:
Location: • Nearest Station: N/A • Distance to Station: N/A
Agent Information: • Address: Desg, 11-13 Penhill Road, Pontcanna, Cardiff, CF11 9PQ
Full Description: FOR SALE BY PUBLIC AUCTION: The auction will take place online on 4th February 2025 at 04:36 PM with registration through our website.
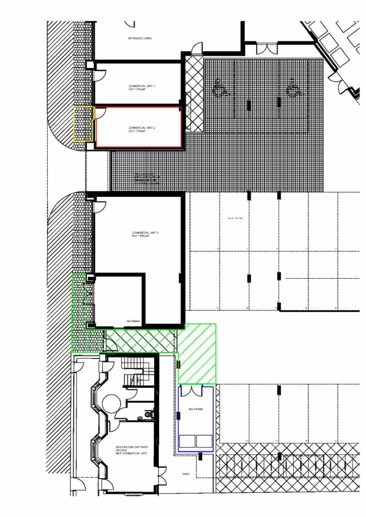
Vacant retail unit extending to 240sqft (22sqm) approx located on the outskirts of Cardiff city centre. Let until very recently for £6500pa representing an Initial gross yield of 14.5%.
Description Investment retail unit extending to 240sqft (22sqm) approx in the ground floor of this popular modern development on the outskirts of Cardiff city centre. Let until very recently for £6500pa representing an Initial gross yield of 14.5%.
The unit itself is a lock up retail unit in the ground floor of the very popular Brickworks development just to the South of Cardiff city centre and within very easy reach of Cardiff central station and the city centre beyond. The area is subject to a huge amount of residential development with Trade street acting as the main thorough road for residents accessing central station and Cardiff city centre beyond.
There is a small hand wash sink to the rear of the shop but there is also plumbing and drainage in situ to add a staff/customer WC to the rear of the shop.
VAT applies to this sale in accordance with the General and Common Auction Conditions.
Please note that the vendor is willing to sell this property as a going concern. (TOGC)
Accommodation GF - Retail lock up unit.
Informed Long Leasehold please refer to legal pack for verification of tenure
Additional Fees Buyer’s Premium – 1.2% with a minimum of 1,200.00 (inc of VAT) payable on exchange of contracts. Please refer to the legal pack for any further disbursements to be paid by the purchaser on completion.
Each property sold is subject to a Reserve Price. The Reserve Price, which is agreed between the seller and the auctioneer just prior to the auction, will be within + or - 10% of the Guide Price. The Guide Price is issued solely as a guide so that a buyer can consider whether or not to pursue their interest. Both the Guide Price and the Reserve Price can be subject to change up to and including the day of the auction.
Further Information Auctioneers Office, Seel and Co
Viewing Viewing by appointment with Seel and CoBrochuresLegal DocumentsOnline Bidding
Location
Address
Unit 2 Brickworks, Trade Street, Butetown, Cardiff, CF10 5EG
City
Cardiff
Features and Finishes
None
Legal Notice
Our comprehensive database is populated by our meticulous research and analysis of public data. MirrorRealEstate strives for accuracy and we make every effort to verify the information. However, MirrorRealEstate is not liable for the use or misuse of the site's information. The information displayed on MirrorRealEstate.com is for reference only.