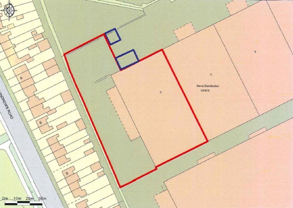
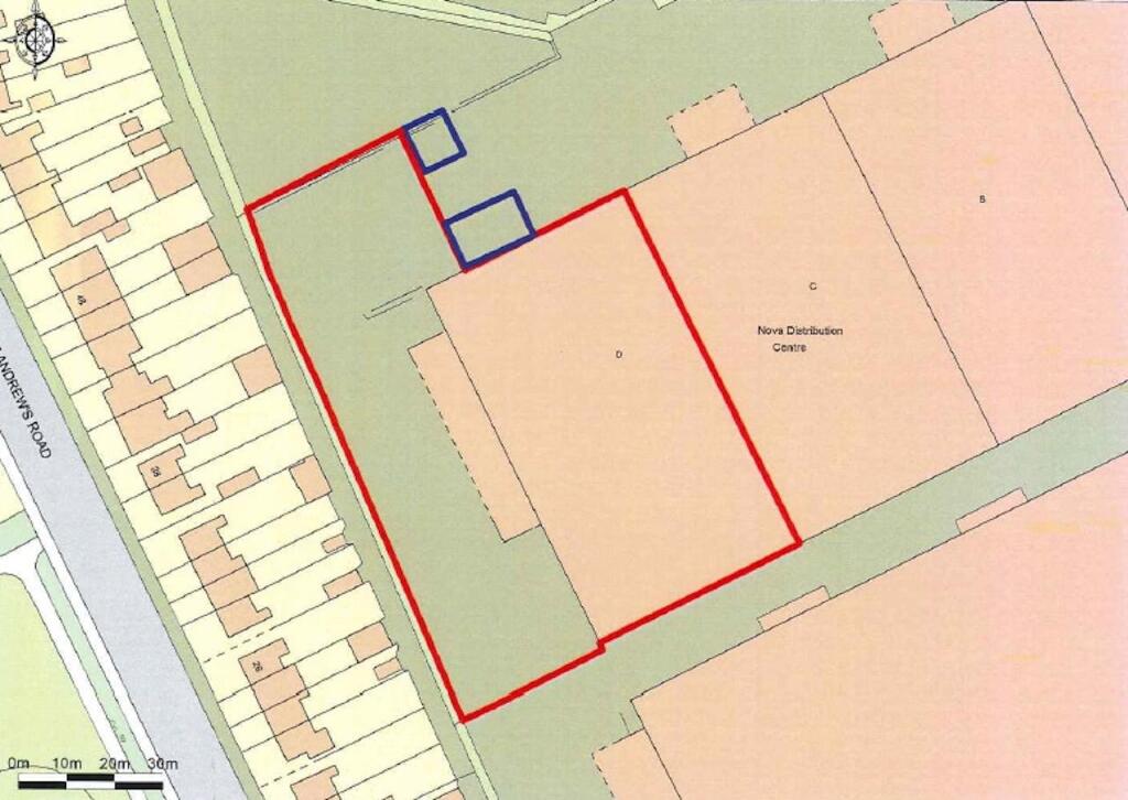
Unit D, Nova Distribution Centre, Avonmouth, Bristol, BS11 9DJ

GBP 17407 For Rent

Property Details

Property Type

41,612 sq ft

Description

Property Details: • Type: 41,612 sq ft • Tenure: N/A • Floor Area: N/A

Key Features: • End of terrace industrial unit with secure yard and barrier system • Excellent road links J.18 of the M5 and A4 Portway • Two storey office accommodation WCs and canteen • 8 Electric roller shutter doors with covered loading area • Three phase electricity & CCTV systems • Building repair works recently undertaken

Location: • Nearest Station: Avonmouth Station • Distance to Station: 0.2 miles

Agent Information: • Address: Embassy House Queens Avenue, Clifton, Bristol, BS8 1SB

Full Description: DescriptionThe property comprises an end of terrace unit, concrete frame with brickwork elevations. There are eight electric roller shutter doors with a covered loading area at the side of the unit. The site is secured with a barrier entry point and gated yard provided good parking.Internally, the warehouse benefits from LED lighting and gas blower heaters. The property also has two storey office accommodation alongside WCs and a canteen on the first floor.LocationUnit D, is located in Avonmouth, the principle industrial distribution location of the South West. Bristol City Centre is located approx. 8 miles from Avonmouth via the Portway (A4). There is also excellent access to the M5 via J18 subsequently providing fast access to the M4.ViewingsPlease contact sole agents, SavillsTermsThe property is available by way of sublease or assignment of an existing protected lease expiring 28th July 2025. A new lease for a term of years would also be considered subject to landlord's consent.Business RatesRateable value is £201,000.Legal CostsEach party will be responsible for their own legal and professional costs incurred on any transaction.EPCThis property has an energy performance rating of D90. The full certificate can be provided on request.PlanningThe property has planning consent for anything within B1,B2 or B8 of the Town and Country Planning (Use Class) Order 1987.

Location

Address

Unit D, Nova Distribution Centre, Avonmouth, Bristol, BS11 9DJ

City

Littleton

Features and Finishes

End of terrace industrial unit with secure yard and barrier system, Excellent road links J.18 of the M5 and A4 Portway, Two storey office accommodation WCs and canteen, 8 Electric roller shutter doors with covered loading area, Three phase electricity & CCTV systems, Building repair works recently undertaken

Legal Notice

Our comprehensive database is populated by our meticulous research and analysis of public data. MirrorRealEstate strives for accuracy and we make every effort to verify the information. However, MirrorRealEstate is not liable for the use or misuse of the site's information. The information displayed on MirrorRealEstate.com is for reference only.

Real Estate Broker
Savills, Bristol Industrial
Brokerage
Savills, Bristol Industrial
Top Tags
Unit D Avonmouth Bristol BS11 9DJ
Likes

0

Views

113

This website uses cookies to ensure you get the best experience. Learn more