Units 14 & 15 Barratt Trading Estate, Denmore Road, Bridge Of Don, Aberdeen, AB23 8JW
Property Details
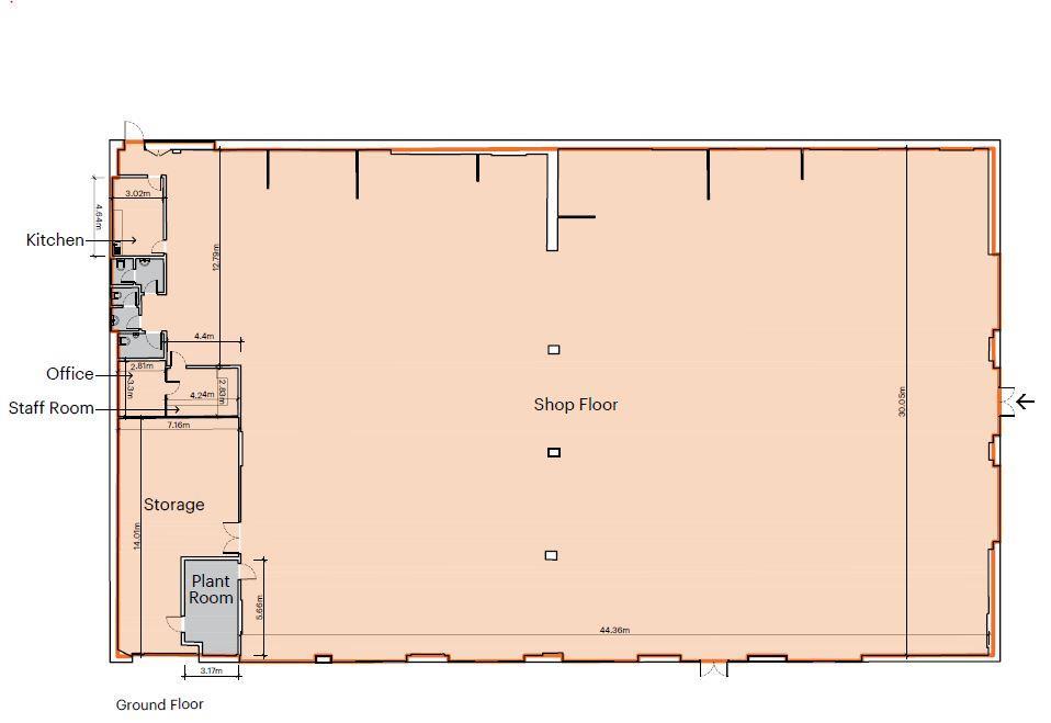
Retail Property (out of town)
Description
*** PRICE ON APPLICATION ***
Property Details: • Type: Retail Property (out of town) • Tenure: N/A • Floor Area: 17429 sqft
Key Features: • Denmore Road Frontage • Toolstation and Screwfix located opposite • Gross Internal Area: 1,629.19 Sq. m (17,429 Sq. ft) • Potential to be split • Established industrial location, approximately 4 miles north of Aberdeen City Centre and with close proximity to the AWPR.
Location: • Nearest Station: Aberdeen Station • Distance to Station: 3.6798891156039018 miles
Agent Information: • Address: 21 Carden Place, Aberdeen, AB10 1UQ
Full Description: The property comprises as single storey building of steel portal frame construction infilled with concrete block dado wall and clad above with flat panels. Generous car parking and loading / unloading facilities are provided adjacent to the unit.
Location
Address
Units 14 & 15 Barratt Trading Estate, Denmore Road, Bridge Of Don, Aberdeen, AB23 8JW
City
Aberdeen
Features and Finishes
Denmore Road Frontage, Toolstation and Screwfix located opposite, Gross Internal Area: 1,629.19 Sq. m (17,429 Sq. ft), Potential to be split, Established industrial location, approximately 4 miles north of Aberdeen City Centre and with close proximity to the AWPR.
Legal Notice
Our comprehensive database is populated by our meticulous research and analysis of public data. MirrorRealEstate strives for accuracy and we make every effort to verify the information. However, MirrorRealEstate is not liable for the use or misuse of the site's information. The information displayed on MirrorRealEstate.com is for reference only.