Units D2 to D5 Quayside, Dolphin Quays, Quay Road, Poole, BH15 1HH
Property Details
None
Description
Property Details: • Type: N/A • Tenure: N/A • Floor Area: N/A
Key Features: • Prominent ground floor corner position • Commanding Quay Position • Approximately 628 sq m (6,755 sq ft) Gross Internal Area with ability to sub-divide • High footfall location • Located close to established operators such as Tesco Express and Paver Shoes • Will be of interest to all E and F class users • New lease terms to be agreed
Location: • Nearest Station: N/A • Distance to Station: N/A
Agent Information: • Address: Savills, Mountbatten House,1 Grosvenor Square Southampton SO15 2BZ
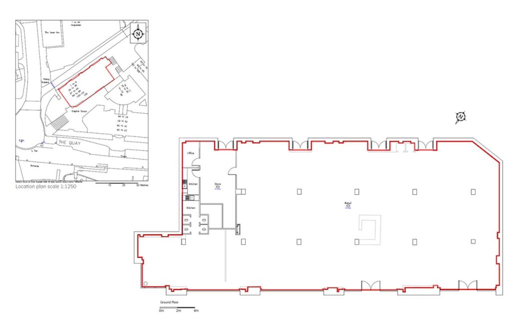
Full Description: DescriptionThe property comprises a mixed use development with the commercial known as Quayside and the residential element as Dolphin Quays. The scheme was completed in July 2004 and provides a total of 27 retail, restaurant and office units located on the ground and first floors of the development. In total the development provides approximately 72,000 sq ft (6,690 sq m) of accommodation with 104 luxury apartments above which have been sold off on long leases. The premises comprise a ground floor retail unit benefitting from a large display frontage to East Quay Road. Internally the specification includes carpeting throughout, lighting, WC facilities. Loading is available via a rear service corridor. The premises also benefit from excellent floor to ceiling heights (we understand other occupiers within the development have successfully installed a mezzanine floor in other similar units).LocationQuayside also known as Dolphin Quays is located immediately on the Waterfront overlooking Europe’s largest natural harbour on the eastern end of The Quay which is situated 0.5 miles (0.75 km) to the south of Poole town centre. It is extremely popular with visitors to Poole looking to take in the opportunity of being on the harbour side. The property is located fronting East Quay Road adjacent to Old Orchard and the former Poole Pottery site currently being redeveloped by Fortitudo.Fixtures and FittingsWe understand that the unit will be delivered partially fitted.PlanningThe property is not listed or within a conservation area. We understand the subject property benefits from ‘Use Class E’ planning consent.Service ChargeThe service charge is weighted on a net internal area basis and is currently in the order of £2.75 per sq ft (subject to annual variation).RatingThe subject property is on the 2023 Rating List with a Rateable Value of £44,750. The Multiplier for 2024/25 is £0.499. Please check for up to date information on rates payable (the Government has recently granted a rates holiday).EPCThe EPC will be provided to seriously interested parties upon request.TenureLeasehold. Offers are invited for a new Full Repairing and Insuring lease with terms to be agreed.Rental Guide - £60,000 per annum (£9 per sq ft)Rental offers will also be considered for sub-divided space to suit the requirements of the particular occupier (subject to status and covenant).AMLIn accordance with anti-money laundering regulations, the successful purchaser will be required to provide identification documents upon request and without delay.ViewingStaff are unaware – no direct approaches. Formal viewings must be arranged strictly by appointment with Savills.
Location
Address
Units D2 to D5 Quayside, Dolphin Quays, Quay Road, Poole, BH15 1HH
City
Poole
Features and Finishes
Prominent ground floor corner position, Commanding Quay Position, Approximately 628 sq m (6,755 sq ft) Gross Internal Area with ability to sub-divide, High footfall location, Located close to established operators such as Tesco Express and Paver Shoes, Will be of interest to all E and F class users, New lease terms to be agreed
Legal Notice
Our comprehensive database is populated by our meticulous research and analysis of public data. MirrorRealEstate strives for accuracy and we make every effort to verify the information. However, MirrorRealEstate is not liable for the use or misuse of the site's information. The information displayed on MirrorRealEstate.com is for reference only.