Walker Road, Aberdeen, AB11

GBP 59000 For Sale

Property Details

Bedrooms

1

Bathrooms

1

Property Type

Flat

Description

Property Details: • Type: Flat • Tenure: Freehold • Floor Area: N/A

Key Features: • Buy-to-let Investment • Tenanted & Fully Compliant • 1 Bedroom • Home Report £63,000 • Rental £550pm • Current Yield 12% • EPC Rating D • 45 sq m • Furnished Let

Location: • Nearest Station: N/A • Distance to Station: N/A

Agent Information: • Address: Portolio Ltd, Westpoint, 4 Redheughs Rigg, Edinburgh, EH12 9DQ

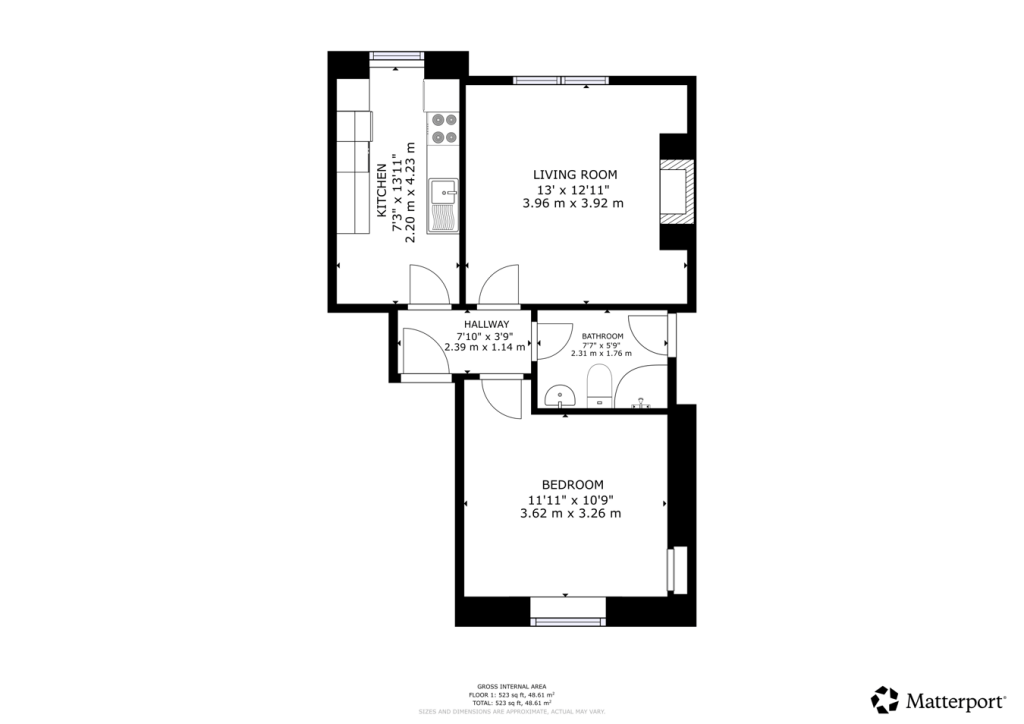
Full Description: An excellent buy-to-let investment opportunity in the popular Torry district, just east of Aberdeen City Centre. This second floor flat is located within a traditional four-storey tenement dating back to circa 1900 and comprises approximately 45 sq m of accommodation. Torry remains a popular area for tenants due to its proximity to Aberdeen City Centre, the harbour, and local amenities, offering consistent rental demand. Accommodation comprises an entrance hallway, living room, kitchen, double bedroom, shower room with three-piece suite. The property benefits from having uPVC double glazed windows, electric heating, hot water supplied by tank system, and being fully compliant for the rental market. The property is being sold with the tenants in situ as a buy-to-let investment property. The property is fully compliant, and the tenant has been resident since 2023, providing rental income on day 1 of purchase. The current tenancy generates an annual rental income of £6,600 (rental increase from 28th Oct 2025), which represents an immediate yield of 12%.  The property is sold as seen, and the sale price includes all the inventory items. The Home Report value is £63K.Torry is one of Aberdeen’s up-and-coming rental areas, offering strong tenant demand thanks to its close proximity to the city centre, harbour developments, and local amenities. With ongoing investment in Aberdeen’s infrastructure and economy, Torry presents attractive long-term potential for buy-to-let landlords seeking reliable returns.BrochuresBrochure 1

Location

Address

Walker Road, Aberdeen, AB11

City

Aberdeen

Features and Finishes

Buy-to-let Investment, Tenanted & Fully Compliant, 1 Bedroom, Home Report £63,000, Rental £550pm, Current Yield 12%, EPC Rating D, 45 sq m, Furnished Let

Legal Notice

Our comprehensive database is populated by our meticulous research and analysis of public data. MirrorRealEstate strives for accuracy and we make every effort to verify the information. However, MirrorRealEstate is not liable for the use or misuse of the site's information. The information displayed on MirrorRealEstate.com is for reference only.

Real Estate Broker
Portolio, Edinburgh
Brokerage
Portolio, Edinburgh
Top Tags
1 Bedroom Property Home Report £63 Rental £550pm
Likes

0

Views

10

This website uses cookies to ensure you get the best experience. Learn more