Warley Mount, Warley, CM14
Property Details
Land
Description
Property Details: • Type: Land • Tenure: N/A • Floor Area: N/A
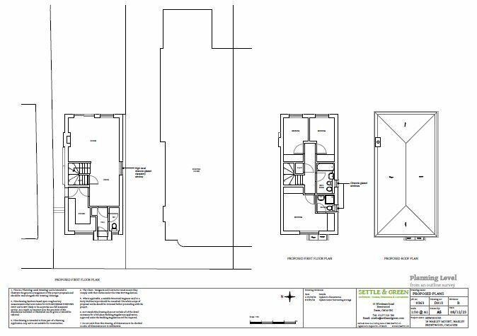
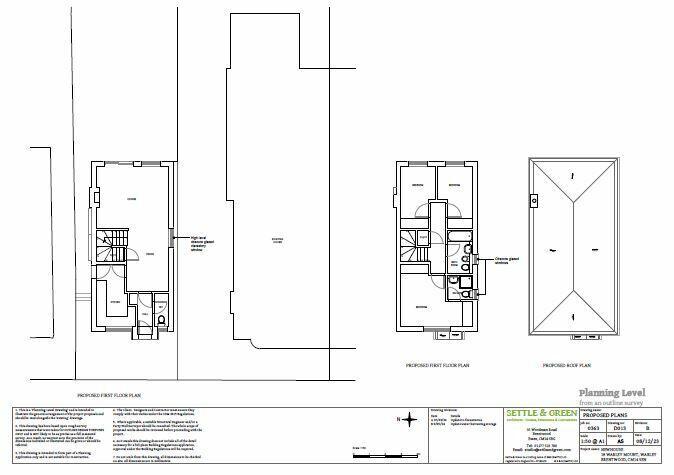
Key Features: • Development ppportunity • Planning permission for a detached dwelling • Planning ref: 24/00547/FUL • Easy reach of Station • 0.6 miles from High Street • Good access to schools • No onward chain
Location: • Nearest Station: Brentwood Station • Distance to Station: 0.1 miles
Agent Information: • Address: 10 Springfield Lyons Approach, Springfield, Chelmsford, CM2 5LB
Full Description: Development opportunity with planning permission granted (24/00547/FUL) to build a detached dwelling. Offered with no onward chain, a deceptive semi-detached house with four bedrooms and three reception rooms, with modernisation and remodelling required and easy access to Brentwood Station.Fantastic opportunity to acquire a four bedroom semi-detached house with planning permission to build a detached house within the grounds for investment or build for a family member. The current house is deceptive and boasts four generously sized bedrooms, three reception rooms and perfect for those seeking space and something to put their own stamp on. There is a rear garden, off-street parking and a garage.Conveniently located in a sought-after neighbourhood and close to Brentwood Mainline Railway Station, this property is also close to local amenities, schools including Holly Trees Primary and Warley Primary. Brentwood High Street is within 0.6 miles. Don't miss this opportunity to make this house and development your home.(Ref: NBC230433)
Location
Address
Warley Mount, Warley, CM14
City
Brentwood
Features and Finishes
Development ppportunity, Planning permission for a detached dwelling, Planning ref: 24/00547/FUL, Easy reach of Station, 0.6 miles from High Street, Good access to schools, No onward chain
Legal Notice
Our comprehensive database is populated by our meticulous research and analysis of public data. MirrorRealEstate strives for accuracy and we make every effort to verify the information. However, MirrorRealEstate is not liable for the use or misuse of the site's information. The information displayed on MirrorRealEstate.com is for reference only.