Wasthill Lane, Birmingham, B38 9ES

GBP 995000 For Sale

Property Details

Bedrooms

4

Bathrooms

2

Property Type

Detached

Description

Property Details: • Type: Detached • Tenure: N/A • Floor Area: N/A

Key Features: • HUGE POTENTIAL for Extension and Redesign

Location: • Nearest Station: N/A • Distance to Station: N/A

Agent Information: • Address: 67 Hewell Road, Barnt Green, B45 8NL

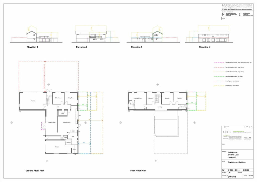
Full Description: SummarySet amidst 1.83 acres (approx.) of stunning private grounds, this remarkable property boasts an impressive 3,700 sq ft of accommodation, with the current versatile layout featuring well proportioned rooms bathed in natural light and and a seamless connection to the lush, mature surroundings.This is a rare opportunity for visionaries to craft their ideal residence in a picturesque location. Whether you envision expanding the existing footprint, adding bespoke features, or creating a contemporary masterpiece, this property provides the perfect foundation to bring your aspirations to life. With permitted development rights already in place, the possibilities for expansion or redesign are huge.DescriptionStep into this impressive home, where spaciousness and natural light combine to create an inviting atmosphere. The huge entrance hall is a grand and welcoming space that sets the tone for the rest of the house. From here, you'll be drawn into the heart of the home, the kitchen/dining room - a sociable and practical space designed for modern living. Ideal for family meals or hosting guests, the room benefits from an adjacent utility room/prep kitchen as well as a guest WC.The large, bright lounge is a standout feature, boasting generous proportions and an abundance of natural light streaming through its expansive sliding glazed doors. The property also includes two further reception rooms, providing versatile spaces that can be tailored to suit your lifestyle. One includes an adjoining room which was previously an en suite and could be reinstated. There are four well proportioned bedrooms on the first floor and a family shower room, with the primary bedroom boasting an en-suite facility.The property benefits from permitted development rights - see plans uploaded in photos. OutsideNestled in a serene and private location, the magnificent garden spans an impressive 1.83 acres (approx.) dotted throughout with mature trees. The grounds are predominantly laid to a lawn, providing a vast, open expanse ideal for outdoor activities, entertaining, or simply basking in the beauty of the outdoors. Access to the property is through a gated driveway, ensuring privacy and exclusivity. The driveway gracefully sweeps towards the front of the house, creating a grand approach and sets a picturesque scene, culminating in a welcoming view of the residence.ServicesMains water and electricity. Oil central heating. Drainage via a septic tank.LocationWasthill Lane on the edge of Kings Norton is a blend of suburban charm and proximity to natural beauty, offering a diverse environment for residents and visitors. Nearby recreational facilities include Wast Hills Golf Centre, Kings Norton Tennis Club and Birmingham City FC Training Grounds! The village of Alvechurch lies approximately 3 miles away and offers shopping and eating facilities, train station, two nurseries and within catchment for Crown Meadow First School and Alvechurch Church of England Middle School. Also, close by are the facilities offered by Barnt Green Village, Redditch, Bromsgrove and Birmingham City Centre (approx. 30 minute drive).Kings Norton itself offers excellent shopping facilities and access to transport links including several bus routes, Kings Norton train station (popular route to Birmingham New Street) and is also conveniently situated for access to motorway links via the M42. Local schools include New Ways Secondary, Kings Norton Girls and Boys Secondary as well as several independent schools within the local vicinity including King Edward VI for boys, Bromsgrove School and Alcester Grammar. Outdoor enthusiasts will appreciate the 524 acres of Lickey Hills Country Park, Kings Norton Nature Reserve as well as the Rea Valley Cycle Route, part of a green corridor through South Birmingham.Room DimensionsLiving Room 8.53m x 5.44m (27'11" x 17'10")Sitting Room 3.65m x 3.62m (11'11" x 11'10")Lounge 4.25m x 3.65m (max) (13'11" x 11'11")Kitchen/Dining Room 6.44m (max) x 9.06m (max) (21'1" x 29'8")Prep Kitchen/Utility 3.22m (max) x 4.07m (max) (10'6" x 13'4")Garage 8.36m (max) x 4m (27'5" x 13'1") Bedroom 1 5.67m (max) x 5.43m (18'7" x 17'9")En Suite 1.93m x 2.98m (6'3" x 9'9")Bedroom 2 4.02m x 3.67m (13'2" x 12'0")Bedroom 3 3.62m x 3.67m (11'10" x 12'0")Bedroom 4 2.62m x 3.67m (8'7" x 12'0")Shower Room 2.6m x 1.65m (8'6" x 5'4")Please read the following: These particulars are for general guidance only and are based on information supplied and approved by the seller. Complete accuracy cannot be guaranteed and may be subject to errors and/or omissions. They do not constitute a contract or part of a contract in any way. We are not surveyors or conveyancing experts therefore we cannot and do not comment on the condition, issues relating to title or other legal issues that may affect this property. Interested parties should employ their own professionals to make enquiries before carrying out any transactional decisions. Photographs are provided for illustrative purposes only and the items shown in these are not necessarily included in the sale, unless specifically stated. The mention of any fixtures, fittings and/or appliances does not imply that they are in full efficient working order and they have not been tested. All dimensions are approximate. We are not liable for any loss arising from the use of these details.

Location

Address

Wasthill Lane, Birmingham, B38 9ES

City

Birmingham

Features and Finishes

HUGE POTENTIAL for Extension and Redesign

Legal Notice

Our comprehensive database is populated by our meticulous research and analysis of public data. MirrorRealEstate strives for accuracy and we make every effort to verify the information. However, MirrorRealEstate is not liable for the use or misuse of the site's information. The information displayed on MirrorRealEstate.com is for reference only.

Real Estate Broker
Arden Estates, Barnt Green
Brokerage
Arden Estates, Barnt Green
Top Tags
impressive 3
Likes

0

Views

21

This website uses cookies to ensure you get the best experience. Learn more