Watchouse Road, Chelmsford, Essex, CM2

GBP 700000 For Sale

Property Details

Bedrooms

4

Bathrooms

1

Property Type

Detached

Description

Property Details: • Type: Detached • Tenure: N/A • Floor Area: N/A

Key Features: • Planning permission for a pair of residential properties • Three miles from the city centre • Exciting development opportunity • Parking and gardens • No onward chain • EPC Rating = D

Location: • Nearest Station: N/A • Distance to Station: N/A

Agent Information: • Address: Parkview House Victoria Road South Chelmsford CM1 1BT

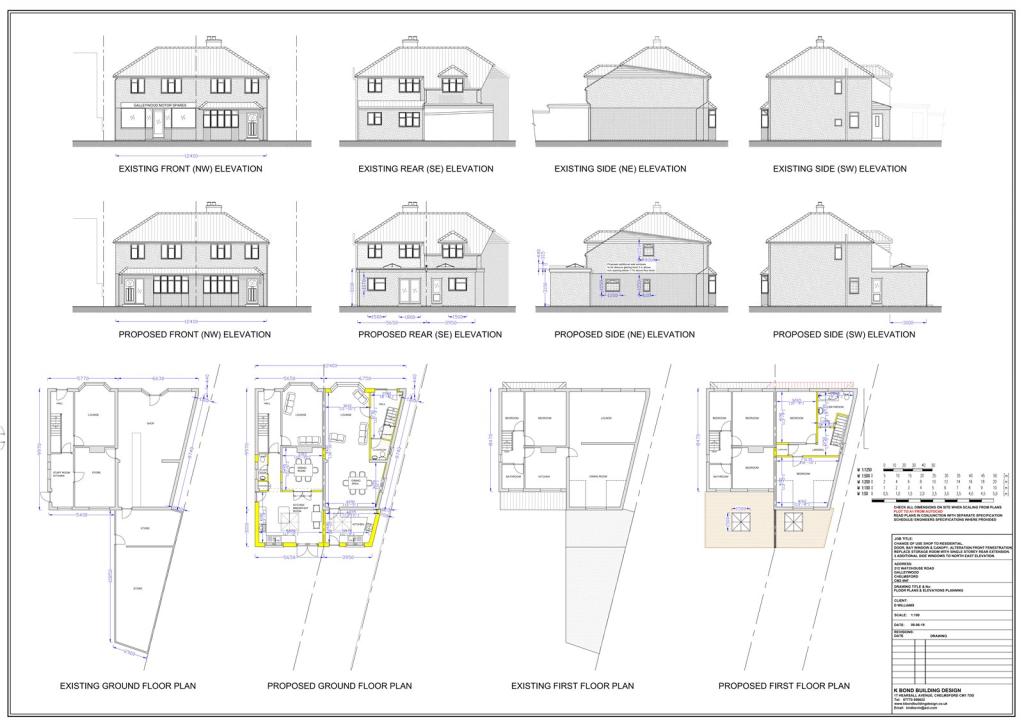
Full Description: A detached building with residential consent. DescriptionAn exciting opportunity to acquire a pair of semi-detached properties with approved planning permission located in a popular residential area on the outskirts of Chelmsford. The detached building comprises a shop with store rooms along with self-contained three bedroom accommodation totalling approximately 2,415 sq ft. Planning permission was granted in June 2022 for change of use from shop (class ea) to a pair of semi-detached residential houses under (class c3). The semi-detached properties will comprise three bedroom and two bedroom houses. The properties will extend to approximately 1,162 sq ft and 1,184 sq ft. OutsideThe building occupies a triangular-shaped plot, set back from the road providing a large area of parking to the front and garden to the rear. All in around 0.20 of an acre.ServicesMains services connected.Local authorityChelmsford City Council. Council tax band = D with improvement indicator.Energy Performance CertificatesResidential = D, Commercial = CLocationA12 (junction 17/A130): 0.5 miles; Chelmsford city: 3.1 miles (rail service to Liverpool Street from 32 minutes); M25 (junction 28): 15 miles (all distances are approximate).The property is set back from Watchhouse Road, Galleywood which comprises a mixture of housing and is a popular area for families, conveniently located 3 miles from Chelmsford city centre. Galleywood offers a popular common providing an area of approximately 175 acres of woodland and open common which borders the River Wid, and was once famous for its racecourse (which was one of the oldest in England) and which has subsequently been declared a local nature reserve. The village provides easy access to the A12 and offers a range of local shops, a library, pubs and primary schools as well as regular bus services into Chelmsford city centre. The city of Chelmsford lies only 3.1 miles away to the north and provides an excellent choice of facilities including a lively shopping centre, two grammar schools and a station on the main line into London Liverpool Street. The property provides excellent links by road to the A130 and A12 serving London to the south and Ipswich and the coast to the north.Square Footage: 2,245 sq ft

Acreage: 0.2 AcresDirectionsFrom the Chelmsford Army & Navy roundabout take the A1114 heading south. At the roundabout (junction 17 of the A12) proceed on the A12 towards Galleywood, exit at junction 16 and continue north on the B1007. At the crossroads turn right into Watchouse Road were the property will be found on the right-hand side after around 1 mile.Postcode: CM2 8NFBrochuresWeb Details

Location

Address

Watchouse Road, Chelmsford, Essex, CM2

City

Chelmsford

Features and Finishes

Planning permission for a pair of residential properties, Three miles from the city centre, Exciting development opportunity, Parking and gardens, No onward chain, EPC Rating = D

Legal Notice

Our comprehensive database is populated by our meticulous research and analysis of public data. MirrorRealEstate strives for accuracy and we make every effort to verify the information. However, MirrorRealEstate is not liable for the use or misuse of the site's information. The information displayed on MirrorRealEstate.com is for reference only.

Real Estate Broker
Savills, Chelmsford
Brokerage
Savills, Chelmsford
Top Tags
Parking and gardens
Likes

0

Views

61

This website uses cookies to ensure you get the best experience. Learn more