Water Lane, Angmering, BN16 4EJ

GBP 2000000 For Sale

Property Details

Property Type

164,657 sq ft

Description

Property Details: • Type: 164,657 sq ft • Tenure: N/A • Floor Area: N/A

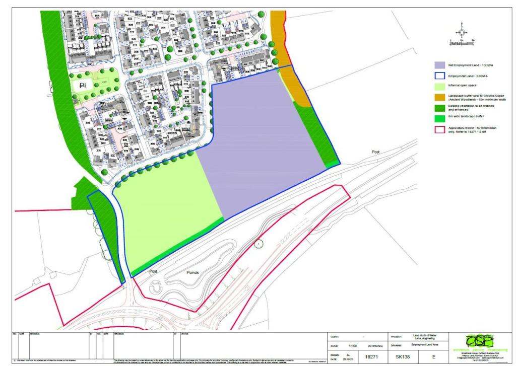
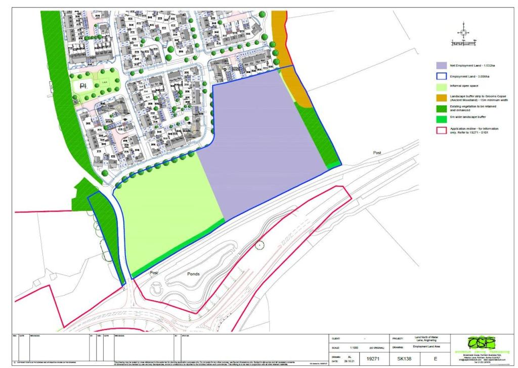
Key Features: • Excellent communication links to A259 and A27 • Freehold • Incredibly rare opportunity to purchase Sussex employment site • 3.78 acres / 1.532 Hectares • Outline planning consent for 60,000 sq ft of Class B1 accommodation • Offers in excess of £2,000,000

Location: • Nearest Station: Angmering Station • Distance to Station: 1.6 miles

Agent Information: • Address: Unit 4 Peveril Court, 6-8 London Road, Crawley, RH10 8JE

Full Description: LocationThe property is located to South-East of the New Cala Homes Water Lane residential development. Water Lane is situated off the Angmering by pass road and provides almost immediate access to the A259. The A27 is located less than two miles which provides communications between Chichester (17 miles), Worthing (6 miles) and Brighton (18 miles).The site will have a single point of access from within the new residential developmentTHE DEVELOPMENTA joint development by Cala Homes and Bellway Homes. Set around a central green and featuring a children’s play area, ponds and open spaces. More than £7 million pounds has been invested in outdoor fitness and leisure, education and infrastructure through Section 106 contributions as part of the planning process.ServicesCala Homes & Bellway Homes will be responsible for delivering the employment land services.AreasThe employment area to be sold comprises 3.78 acres / 1.532 Hectares.The outline consent allows for 6,000 square metres (64,500 sq ft). This reflects a healthy potential site density equivalent to approximately 40%TenureThe property is to be sold freehold with vacant possession.Pricing & TermsWe are instructed to seek offers in excess of £2,000,000 (two million pounds) for the freehold interest subject to contract.TimingCala Homes & Bellway Homes propose to deliver the employment zone road to base course, within seven months of start on site which is currently due for the beginning of Q3 2022. This provides an approximate timeframe for servicing the employment land at the end of Q2 2023.PlanningUnder planning reference A/40/18/OUT the site benefits from employment use under Class B1 Use. No development within use Classes B2 or B8 are currently permitted.Other uses may be considered subject to gaining the necessary consents.EPCWe understand the property to be EPC exempt.VATWe understand that the property is not elected for VAT.Anti-Money Laundering RequirementsIn accordance with Anti-Money Laundering requirements, two forms of identification will be required from the purchaser or tenant and any beneficial owner together with evidence/proof identifying the source of funds being relied upon to complete the transaction.

Location

Address

Water Lane, Angmering, BN16 4EJ

City

Angmering

Features and Finishes

Excellent communication links to A259 and A27, Freehold, Incredibly rare opportunity to purchase Sussex employment site, 3.78 acres / 1.532 Hectares, Outline planning consent for 60,000 sq ft of Class B1 accommodation, Offers in excess of £2,000,000

Legal Notice

Our comprehensive database is populated by our meticulous research and analysis of public data. MirrorRealEstate strives for accuracy and we make every effort to verify the information. However, MirrorRealEstate is not liable for the use or misuse of the site's information. The information displayed on MirrorRealEstate.com is for reference only.

Real Estate Broker
Vail Williams, Crawley
Brokerage
Vail Williams, Crawley
Top Tags
Likes

0

Views

29

This website uses cookies to ensure you get the best experience. Learn more