West Lane, Penrith

GBP 395000 For Sale

Property Details

Property Type

Ask agent

Description

Property Details: • Type: Ask agent • Tenure: N/A • Floor Area: N/A

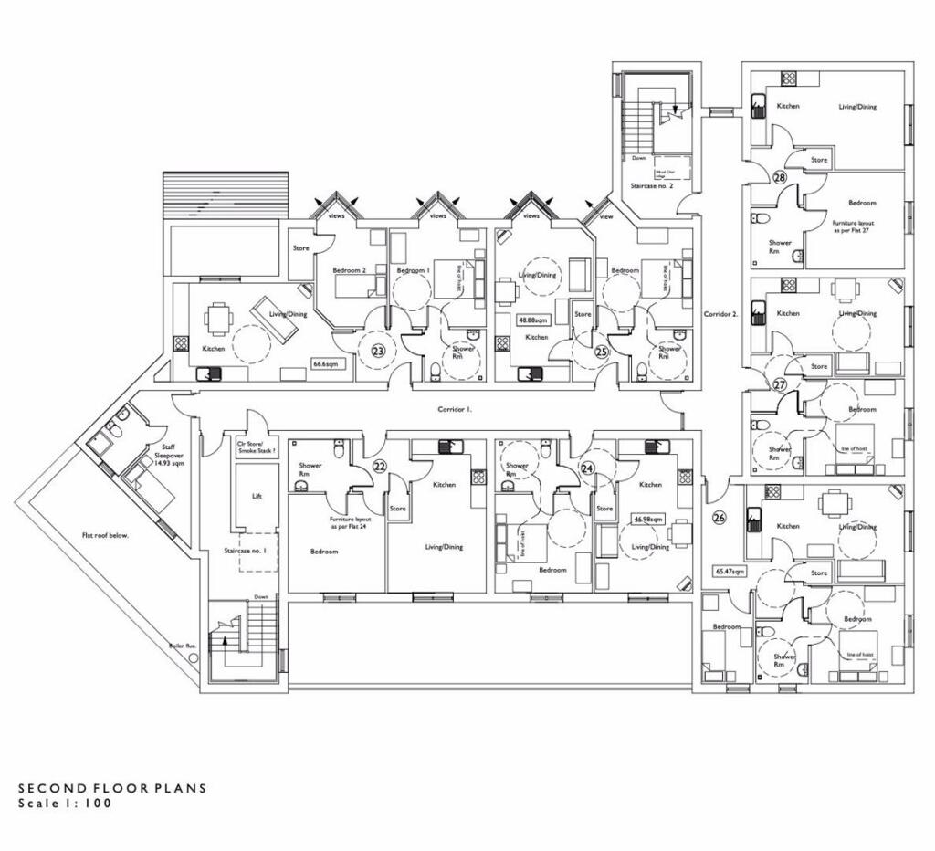
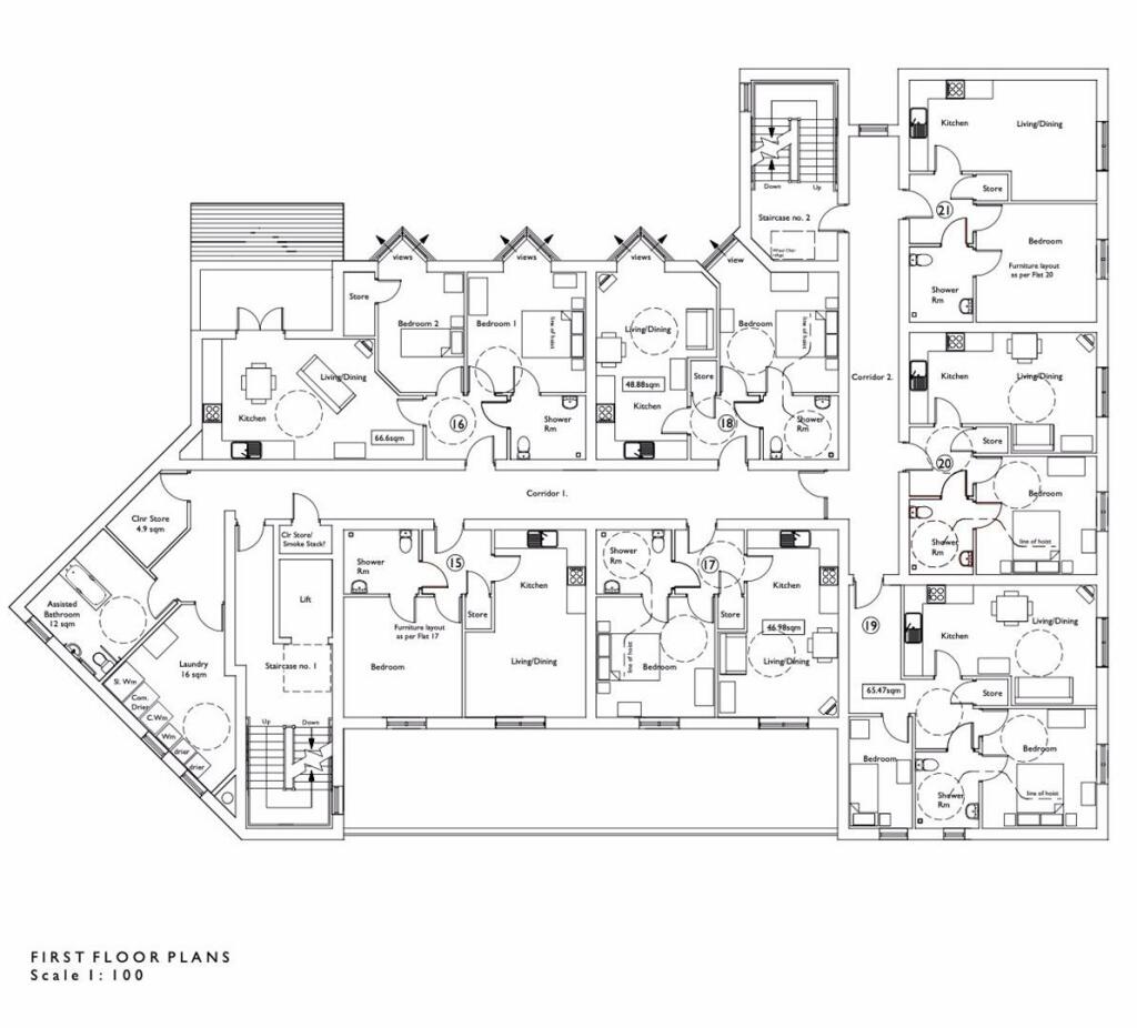
Key Features: • Town Centre Development Opportunity • Planning Permission Granted • Extra Care residential facility • 28 units, combination of 1 and 2 bedrooms • Located in the heart of Penrith Town Centre • Ref - EDC 14/0836

Location: • Nearest Station: Penrith Station • Distance to Station: 0.2 miles

Agent Information: • Address: Unit 3 Mason Court Gillan Way, Penrith 40 Business Park, Penrith, CA11 9GR

Full Description: Located in the heart of Penrith town centre is a fantastic development opportunity!  Formerly the BBC Club, this central site has planning permission granted for an extra care residential scheme consisting of 28 individual units arrange over three floors, with the majority of the units being one bedroom and some two bedroom with communal areas.  Planning permission was granted in 2014 with conditions discharged in 2017, making the permission extant.This site sits just a stones throw from the popular New Squares area of the town and is close to the large array of local amenities that Penrith offers including shops, pubs, restaurants, cafes, schools, leisure facilities, doctors surgery, hospital and a train station.  Penrith has easy access to the M6, A66 and the Lake District National Park is just a short drive away.Planning - Eden District Council Planning reference – 14/0836The planning permission was passed in 2014 is for an extra care scheme consisting of 28 units, with the majority being one bed and some two. In 2017, conditions 4 (sample of external materials) and 5 (foul and surface water drainage strategy) were discharged. The current owners have installed a drain on site and building control have confirmed the permission is extant.Epc & Council Tax - EPC - N/ACouncil Tax - N/ADisclaimer - These particulars, whilst believed to be accurate are set out as a general guideline and do not constitute any part of an offer or contract. Intending Purchasers should not rely on them as statements of representation of fact, but must satisfy themselves by inspection or otherwise as to their accuracy. The services, systems, and appliances shown may not have been tested and has no guarantee as to their operability or efficiency can be given. All floor plans are created as a guide to the lay out of the property and should not be considered as a true depiction of any property and constitutes no part of a legal contract.

Location

Address

West Lane, Penrith

City

West Lane

Features and Finishes

Town Centre Development Opportunity, Planning Permission Granted, Extra Care residential facility, 28 units, combination of 1 and 2 bedrooms, Located in the heart of Penrith Town Centre, Ref - EDC 14/0836

Legal Notice

Our comprehensive database is populated by our meticulous research and analysis of public data. MirrorRealEstate strives for accuracy and we make every effort to verify the information. However, MirrorRealEstate is not liable for the use or misuse of the site's information. The information displayed on MirrorRealEstate.com is for reference only.

Real Estate Broker
David Britton Estates Commercial, Penrith
Brokerage
David Britton Estates Commercial, Penrith
Top Tags
28 units
Likes

0

Views

62

This website uses cookies to ensure you get the best experience. Learn more