West Lane, Sutton-In-Craven, BD20

GBP 425000 For Sale

Property Details

Bedrooms

3

Bathrooms

1

Property Type

Bungalow

Description

Property Details: • Type: Bungalow • Tenure: N/A • Floor Area: N/A

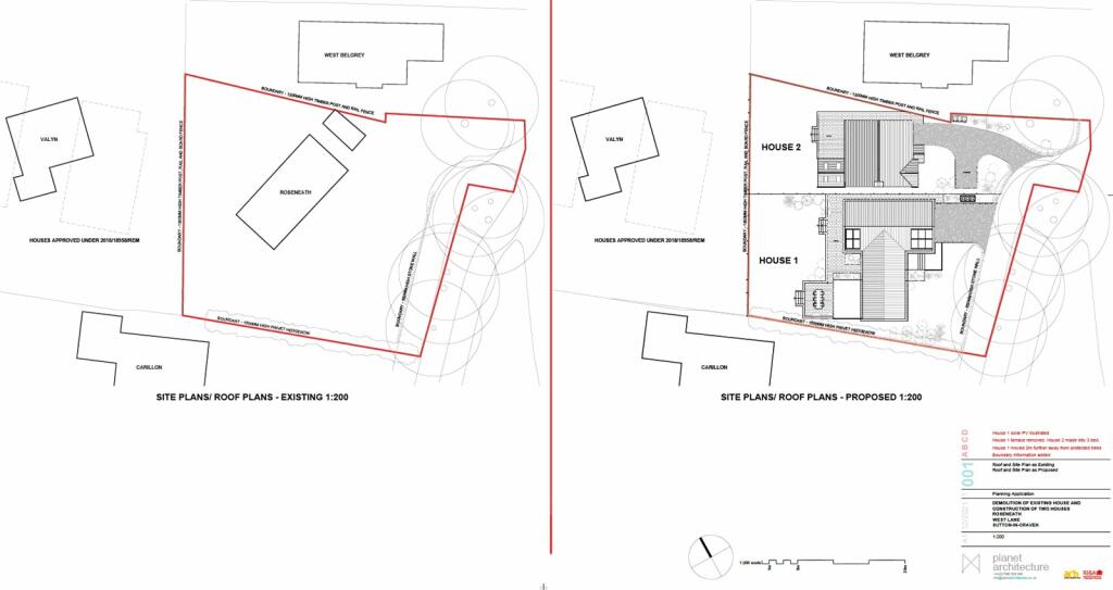
Key Features: • Detached bungalow • Three bedrooms • Ample parking and garage • Sought after location • Large garden • PP to demolish existing and build two detached homes

Location: • Nearest Station: N/A • Distance to Station: N/A

Agent Information: • Address: 31 Main Street, Cross Hills, Keighley, BD20 8TA

Full Description: Looking for a spacious three-bedroom home with immense potential? This detached bungalow, standing on a large plot in a sought-after part of the village offers planning permission for two new dwellings or the opportunity to extend and personalise your dream home. This three-bedroom detached bungalow, standing on a large plot with well-maintained lawn gardens and ample parking, offers an exceptional opportunity for both development and personalisation. With planning permission already granted for demolishing the existing home and garage to construct two detached dwellings, the property is a prime investment for developers. Alternatively, it will appeal to those looking to extend and customise their home, subject to the necessary approvals.Upon entering, you are welcomed into a spacious central entrance hall featuring a charming fireplace. To the left, the bright and airy bay-fronted living room leads into a conservatory extension, currently used as a formal dining area. This space enjoys a lovely view over the garden and adjacent is the versatile third bedroom, which is presently a playroom but could easily function as a home office or guest room.At the opposite end of the house, the kitchen is well-equipped with an integrated double oven and gas hob, along with plumbing for a washing machine and dishwasher. An external door opens out to the rear lawn garden, offering a high degree of privacy and an ideal space for outdoor activities and relaxation. The accommodation is completed by a large double bedroom at the front, a second double bedroom at the rear, and a house bathroom.Situated on one of the most sought-after streets in the village, this property combines charm, potential, and prime location. It is a fantastic opportunity for builders looking to develop or for owner-occupiers eager to create their dream home. Whether you are drawn by the development potential or the chance to extend and personalise, this bungalow is sure to capture your interest and imagination.BrochuresParticulars

Location

Address

West Lane, Sutton-In-Craven, BD20

City

Glusburn and Cross Hills

Features and Finishes

Detached bungalow, Three bedrooms, Ample parking and garage, Sought after location, Large garden, PP to demolish existing and build two detached homes

Legal Notice

Our comprehensive database is populated by our meticulous research and analysis of public data. MirrorRealEstate strives for accuracy and we make every effort to verify the information. However, MirrorRealEstate is not liable for the use or misuse of the site's information. The information displayed on MirrorRealEstate.com is for reference only.

Real Estate Broker
Leightons Estate Agency, Cross Hills
Brokerage
Leightons Estate Agency, Cross Hills
Top Tags
Detached bungalow Three bedrooms Large garden
Likes

0

Views

88

This website uses cookies to ensure you get the best experience. Learn more