Western Avenue, Branksome Park

GBP 1950000 For Sale

Property Details

Bedrooms

6

Bathrooms

4

Property Type

Detached

Description

Property Details: • Type: Detached • Tenure: N/A • Floor Area: N/A

Key Features: • Huge potential • Very rare to find • Beautiful 0.75 acre plot • Currently an oversize bungalow • Highly prestigious address • Potential to redevelop • Could suit contemporary or traditional design • Sunny aspect • Level garden • Secluded setting

Location: • Nearest Station: N/A • Distance to Station: N/A

Agent Information: • Address: 28a Haven Road, Canford Cliffs, Poole, BH13 7LF

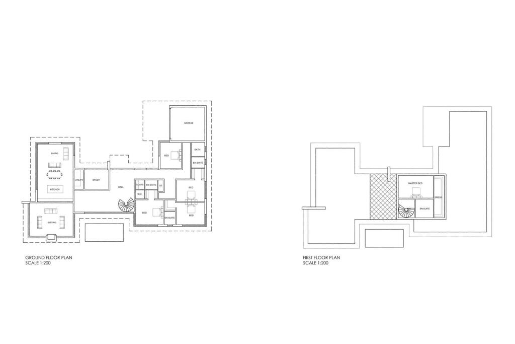
Full Description: A WONDERFUL POTENTIAL BUILDING PLOT in one of Branksome Parks most acclaimed roads. Currently a huge bungalow with indoor pool but RIPE FOR REDEVELOPMENT subject to the necessary consents. Could possibly suit ultra contemporary or traditional but so RARE to find with a LEVEL GARDEN & SUNNY aspect.This is currently a huge bungalow complete with indoor swimming pool situated in Western Avenue - one of the area's most prestigious roads - and on a simply beautiful plot of around 0.75 acres. The existing bungalow is oversized and with an indoor pool complex but in need of complete modernisation. However, for many potential purchasers the value will sit purely and simply in the land which is ripe for redevelopment. Interested parties are advised to make their own enquiries as to its suitability for redevelopment and the consents required (including planning permission) but included in our listing are feasibility plans and a 3D visualisation of what an ultra contemporary house might look like on the site. The design is by leading architects ARC who can potentially advise interested parties on planning matters but the proposal as currently drawn extends to over 5,700 square feet. We understand that a more traditional design could be proposed if preferred and potentially for a much larger dwelling. Potential building plots in the Branksome Park Conservation Area are very rare now and especially in premium locations such as this one.Please Check Out Our Video - All of our properties feature a professionally produced one minute video, personally introduced by a member of our team.Brochures31 Western Avenue - eBrochure.pdf

Location

Address

Western Avenue, Branksome Park

City

Park

Features and Finishes

Huge potential, Very rare to find, Beautiful 0.75 acre plot, Currently an oversize bungalow, Highly prestigious address, Potential to redevelop, Could suit contemporary or traditional design, Sunny aspect, Level garden, Secluded setting

Legal Notice

Our comprehensive database is populated by our meticulous research and analysis of public data. MirrorRealEstate strives for accuracy and we make every effort to verify the information. However, MirrorRealEstate is not liable for the use or misuse of the site's information. The information displayed on MirrorRealEstate.com is for reference only.

Real Estate Broker
Luxury & Prestige, Canford Cliffs
Brokerage
Luxury & Prestige, Canford Cliffs
Top Tags
Likes

0

Views

104

This website uses cookies to ensure you get the best experience. Learn more