White House, Leesons Hill, St. Pauls Cray, Orpingt

GBP 995000 For Sale

Property Details

Property Type

Land

Description

Property Details: • Type: Land • Tenure: N/A • Floor Area: N/A

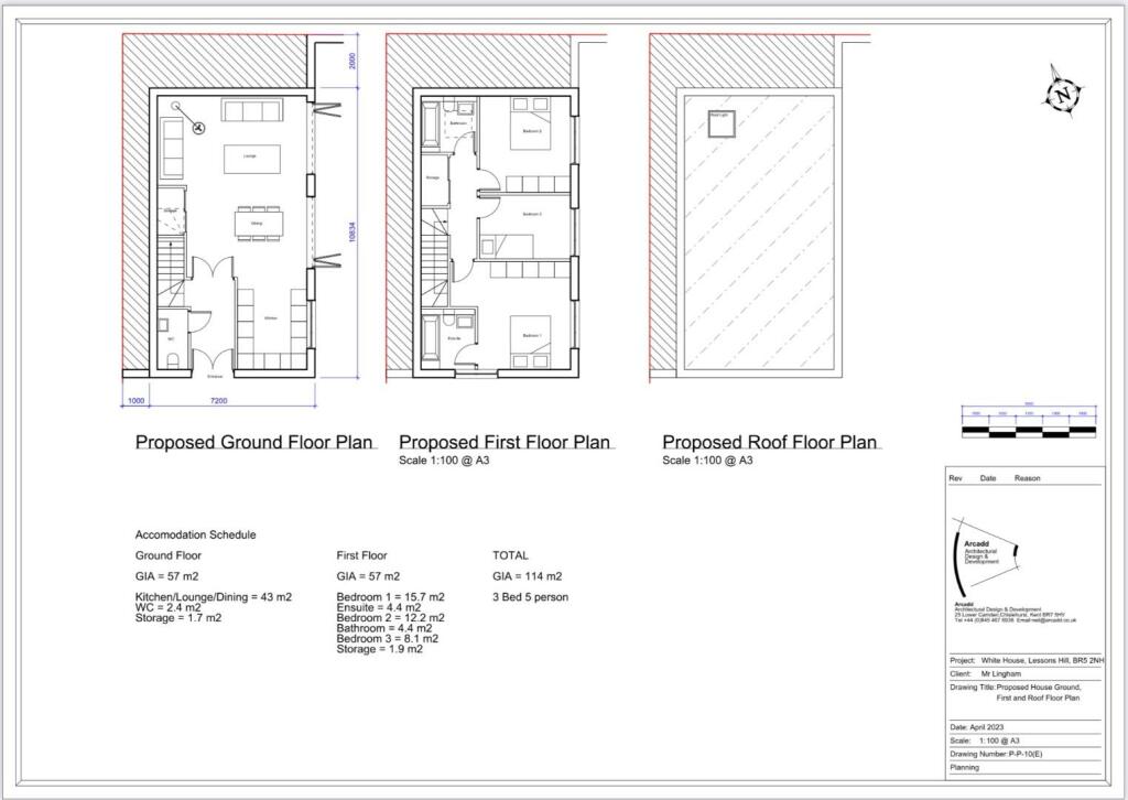
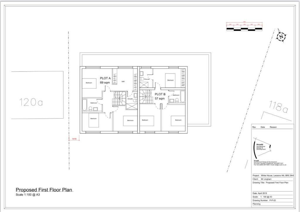
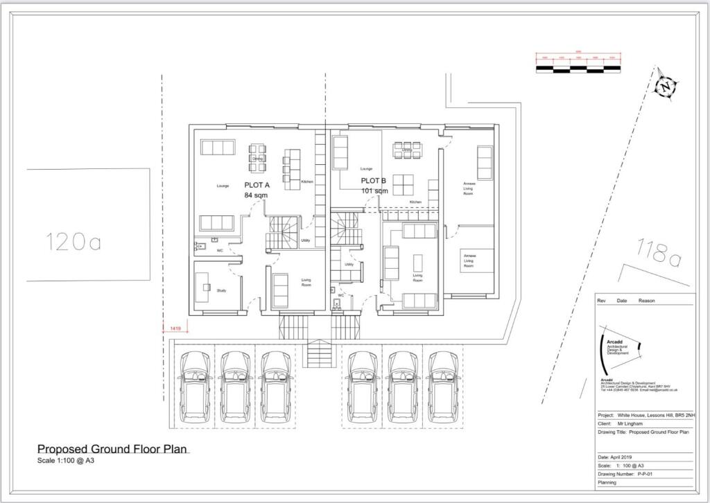
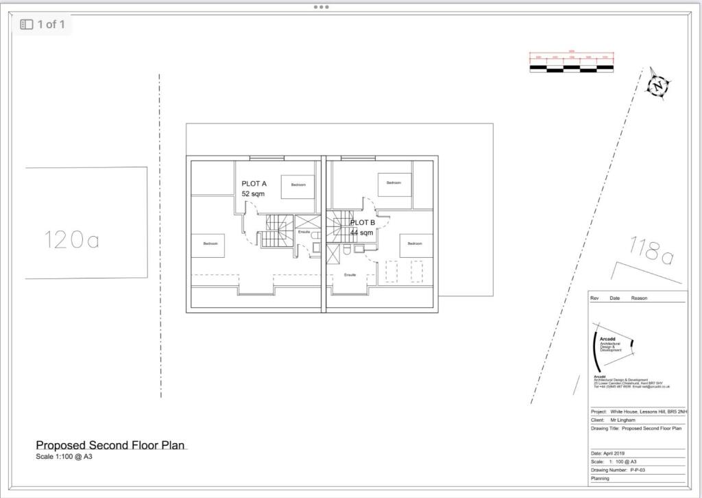
Key Features: • Planning permission granted • Three dwellings • Two X 5 bedroom semi detached houses • One detached, three bedroom dwelling

Location: • Nearest Station: St. Mary Cray Station • Distance to Station: 0.3 miles

Agent Information: • Address: 2 Deodar House, 4 Pines Road, Bromley, BR1 2AA

Full Description: PLANNING PERMISSION GRANTED Plot A - 205 sq m, Five bedroom, three bathroom semi detached house.Plot B - 202 sqm. Five bedroom, three bathroom semi detached housePlot c - 114 sqm. Three bedroom, two bathroom detached dwelling.The land currently houses a circa 2500 sqft detached house. The planning permission is to extend the current property and then to be split into two semi detached houses, plot A & B. Plot C has permission for a detached dwelling, which is to the side of the current detached house.Link to planning permission below. BrochuresWhite House, Leesons Hill, St. Pauls Cray, OrpingtBrochure

Location

Address

White House, Leesons Hill, St. Pauls Cray, Orpingt

City

London

Features and Finishes

Planning permission granted, Three dwellings, Two X 5 bedroom semi detached houses, One detached, three bedroom dwelling

Legal Notice

Our comprehensive database is populated by our meticulous research and analysis of public data. MirrorRealEstate strives for accuracy and we make every effort to verify the information. However, MirrorRealEstate is not liable for the use or misuse of the site's information. The information displayed on MirrorRealEstate.com is for reference only.

Real Estate Broker
Pullen Estate Agents, Chislehurst
Brokerage
Pullen Estate Agents, Chislehurst
Top Tags
Five bedroom
Likes

0

Views

91

This website uses cookies to ensure you get the best experience. Learn more