White Rock QLD 4306
Property Details
4
2
New House & Land
Description
Property Details: • Type: New House & Land
• Bedrooms: 4 • Bathrooms: 2
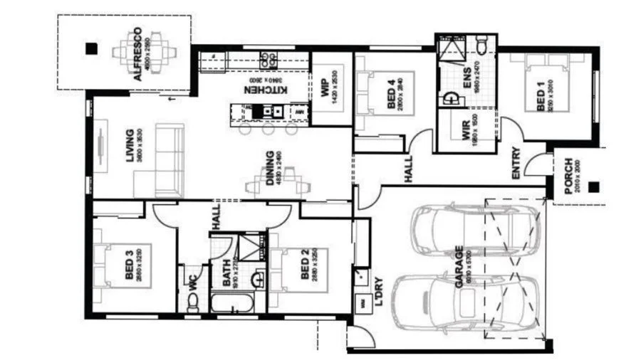
Description: Low-Maintenance New Home with Solid Rental Returns = Smart Investing Modern design. Premium inclusions. Nothing more to spend. This is one of White Rock's most complete house & land opportunities. This fixed-price house and land package in Providence Estate, White Rock delivers a rare blend of quality, certainty and rental performance in a rapidly expanding Ipswich growth corridor. Built to a higher standard than the typical project home, this Flinders - Modern façade design offers space, comfort and strong street appeal, making it equally attractive to owner-occupiers and long-term tenants. The home features four well-proportioned bedrooms, open-plan kitchen, living and dining 178sqm under roof on a 322sqm allotment, the layout is practical, low-maintenance and highly liveable. Inside, the finish level immediately stands out. The kitchen is fitted with Caesarstone benchtops, stainless steel appliances and quality cabinetry, while the bathrooms include a freestanding bath, semi-frameless shower screens and frameless mirrors. Neutral colour schemes, carpet and tiling throughout ensure broad appeal and durability. Delivered as a true full turnkey package, everything is included - from driveway to landscaping - so there are no hidden costs after contract. Property & investment snapshot: 4 bedrooms, 2 bathrooms, 2-car garage Flinders design with Modern façade Total home size approx. 178sqm Land size 322sqm Fixed total price $940,815 Estimated rental return $660-$710 per week 7-star energy rating Fixed site costs included Land Is Registered and ready to build. Turnkey inclusions include: - Upgraded façade for strong street appeal - Colorbond steel roof with anticon blanket - Exposed aggregate driveway & porch - Integrated concrete alfresco slab - Turf, fencing & landscaped garden bed - Council application fees - Clothesline & letterbox Located in White Rock, part of the wider Providence master-planned community, the area continues to attract strong demand due to new infrastructure, schools, parks and easy access to Ipswich CBD and major transport links. Tight rental conditions and population growth underpin the suburb's long-term outlook. This opportunity is ideal for buyers who want: - A low-maintenance, high-quality new build - Fixed pricing and zero construction surprises - Strong rental income potential - Exposure to a proven growth corridor Contact Us Now For More Information Aaron Weaver on 0412828702 HOW WE CAN HELP YOU Through our trusted network of builders and land developers across South East Queensland, Asset Property Partners offers a no cost service that helps everyday Australian's make smarter property choices. Let us help you save time and money whilst taking the hassle out of building! Contact Aaron Weaver on 0412828702 or [email protected] to help you find the most suitable property option for you. Disclaimer: Disclaimer: All images and descriptions are indicative and may vary from the final product. All information contained herein is gathered from sources we believe to be reliable. Intending purchasers should satisfy themselves by clarification prior to purchase. Prices stated are subject to availability. All plans are copyright in whole and in part.
Location
Address
White Rock QLD 4306
City
White Rock
Features and Finishes
None
Legal Notice
Our comprehensive database is populated by our meticulous research and analysis of public data. MirrorRealEstate strives for accuracy and we make every effort to verify the information. However, MirrorRealEstate is not liable for the use or misuse of the site's information. The information displayed on MirrorRealEstate.com is for reference only.