Whitehorse Road, Croydon, London, CR0
Property Details
Shop
Description
Property Details: • Type: Shop • Tenure: N/A • Floor Area: N/A
Key Features: • Prominent location • A Freehold sale may be considered.
Location: • Nearest Station: West Croydon Station • Distance to Station: 0.6 miles
Agent Information: • Address: 36 Sydenham Road, Croydon, CR0 2EF
Full Description: LOCATION: - The property is situated with an 11.5m frontage to Whitehorse Road, a major link road between Croydon and Thornton heath. The property is accessible to both west and east Croydon stations. and Croydon town center. The property is highly visible to passing vehicular and there is an amount of pedestrian flow generated by nearby occupiers including Tesco and Halfords.
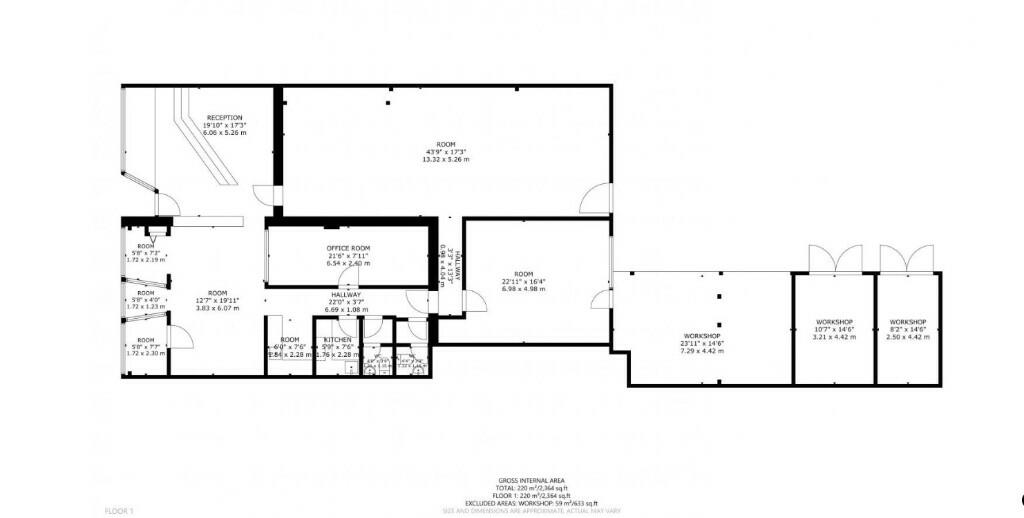
DESCRIPTION: - The property comprises a single-story commercial premises with a large rear yard. The yard is accessed via a small service road to the side of a neighboring property providing access for small commercial vehicles, cars and motorcycles. Internally, the property is arranged as a front sales/reception area, rear stores, workshops and offices. The property is considered to be suitable for a variety of potential uses
ACCOMMODATION: - Gross Frontage 11.5m Gross internal area 219.615m² (2,364ft²) approx. Yard x 2
TENURE: - The property is to be offered by way of a new lease, the length of which is to be negotiated. A Freehold sale may be considered.
USE/PLANNING: - We understand the property currently falls within Class E of the Town & Country Planning (Use Classes) Order. We consider the property may have development potential in the event of a freehold sale. Interested parties should make their own enquiries of the local planning authority in this regard. A sale will only be considered on an unconditional basis however. Interested parties should make enquiries of the local authority in respect of their intended use prior to offer.
RENT/PRICE: - An initial rent of £55,000 per annum exclusive is sought. Interested parties should make enquiries of the selling agents to discuss the freehold price.
BUSINESS RATES: - The property has a ratable value of £31,750. Interested parties should contact the local authority to confirm the rates PAYABLE.
EPC RATING: - The property currently has an EPC rating of 'F' and will be updated upon successful completion of a lease.
VAT: - We understand that the property is not currently elected to VAT and VAT will, therefore, not be applicable.
VIEWINGS: -Viewings by prior arrangement - please telephone .BrochuresBrochure 1
Location
Address
Whitehorse Road, Croydon, London, CR0
City
None
Features and Finishes
Prominent location, A Freehold sale may be considered.
Legal Notice
Our comprehensive database is populated by our meticulous research and analysis of public data. MirrorRealEstate strives for accuracy and we make every effort to verify the information. However, MirrorRealEstate is not liable for the use or misuse of the site's information. The information displayed on MirrorRealEstate.com is for reference only.